関内新井ビル(物件No:51880886)
関内新井ビルは、神奈川県横浜市中区尾上町にある地下1階、地上11階建ての貸店舗/賃貸事務所です。最寄駅はJR京浜東北線の関内駅から徒歩2分、みなとみらい線の日本大通り駅から徒歩6分です。1988年9月竣工の鉄骨鉄筋コンクリート造です。設備としては、エレベーターが3基あり、駐車場もあり、貸会議室もあります。トイレは室外男女別です。空調は個別空調です。天高は2550mmです。耐震設計となっている、最寄駅から近くて便利な神奈川県横浜市中区尾上町の貸店舗/賃貸オフィスです。
- 
                    物件情報
- 
                        設備情報- トイレ
- 室外男女別
- 床
- -
- 空調
- 個別空調
- セキュリティ
- -
- 駐車場
- 有
- 会議室
- 有
- エレベーター
- 3基
- 天井高
- 2550mm
 
- 
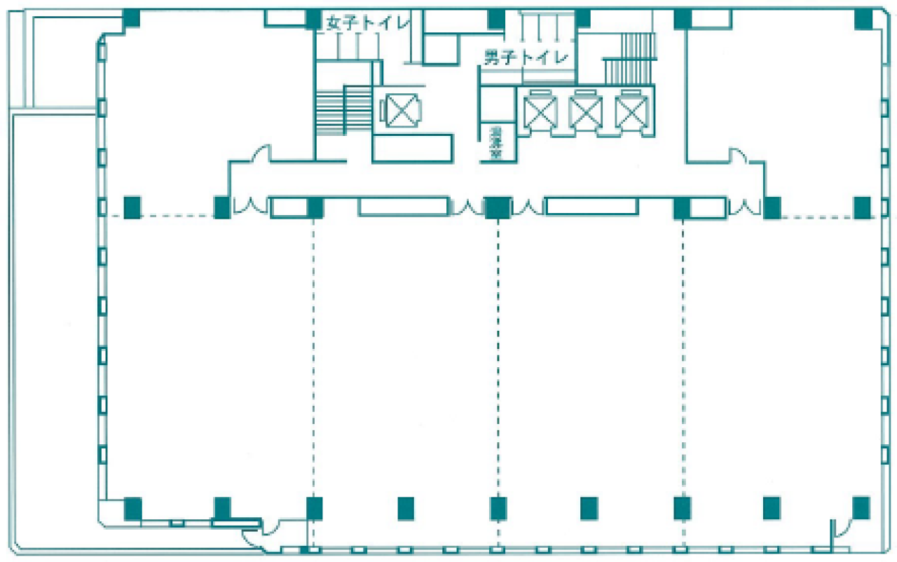
                        間取り図
- 
                    近隣相場情報尾上町1丁目(100坪以上)の相場 調査中 
周辺地図
関内新井ビルは、神奈川県横浜市中区尾上町にある地下1階、地上11階建ての貸店舗/賃貸事務所です。最寄駅はJR京浜東北線の関内駅から徒歩2分、みなとみらい線の日本大通り駅から徒歩6分です。1988年9月竣工の鉄骨鉄筋コンクリート造です。設備としては、エレベーターが3基あり、駐車場もあり、貸会議室もあります。トイレは室外男女別です。空調は個別空調です。天高は2550mmです。耐震設計となっている、最寄駅から近くて便利な神奈川県横浜市中区尾上町の貸店舗/賃貸オフィスです。
全フロア情報
更新日:2024年10月9日
| 階 | 面積 | 賃料 | 共益費 | 敷金 | 入居日 | お問合せ | お気に入り | |
|---|---|---|---|---|---|---|---|---|
| B1F | 55.54 坪 183.6 ㎡ | ※現在空室情報はございません | ※現在空室情報は 確認する | |||||
| 3F | 299.99 坪 991.7 ㎡ | ※現在空室情報はございません | ※現在空室情報は 確認する | |||||
| 3F (CDF区画) | 130.27 坪 430.63 ㎡ | ※現在空室情報はございません | ※現在空室情報は 確認する | |||||
| 4F | 222.42 坪 735.27 ㎡ | ※現在空室情報はございません | ※現在空室情報は 確認する | |||||
| 4F (1区画) | 99 坪 327.27 ㎡ | ※現在空室情報はございません | ※現在空室情報は 確認する | |||||
| 4F (BC区画) | 99.21 坪 327.97 ㎡ | ※現在空室情報はございません | ※現在空室情報は 確認する | |||||
| 5F | 294.52 坪 973.62 ㎡ | ※現在空室情報はございません | ※現在空室情報は 確認する | |||||
| 6F | 262.73 坪 868.53 ㎡ | ※現在空室情報はございません | ※現在空室情報は 確認する | |||||
| 8F (1区画) | 102 坪 337.19 ㎡ | ※現在空室情報はございません | ※現在空室情報は 確認する | |||||
| 8F (2区画) | 50.09 坪 165.59 ㎡ | ※現在空室情報はございません | ※現在空室情報は 確認する | |||||
| 8F (J区画) | 50.09 坪 165.59 ㎡ | ※現在空室情報はございません | ※現在空室情報は 確認する | |||||
| 9F | 204.54 坪 676.16 ㎡ | ※現在空室情報はございません | ※現在空室情報は 確認する | |||||
| 9F (1区画) | 27.93 坪 92.33 ㎡ | ※現在空室情報はございません | ※現在空室情報は 確認する | |||||
| 10F | 260.97 坪 862.71 ㎡ | ※現在空室情報はございません | ※現在空室情報は 確認する | |||||
 
         
    