いろいろ聞いてみる

尾上町の賃貸オフィス

関内新井ビル(物件No:51880886)

関内新井ビルは、神奈川県横浜市中区尾上町にある地下1階、地上11階建ての貸店舗/賃貸事務所です。最寄駅はJR京浜東北線の関内駅から徒歩2分、みなとみらい線の日本大通り駅から徒歩6分です。1988年9月竣工の鉄骨鉄筋コンクリート造です。設備としては、エレベーターが3基あり、駐車場もあり、貸会議室もあります。トイレは室外男女別です。空調は個別空調です。天高は2550mmです。耐震設計となっている、最寄駅から近くて便利な神奈川県横浜市中区尾上町の貸店舗/賃貸オフィスです。

  • 関内新井ビル
  • 関内新井ビル
  • 関内新井ビル
  • 関内新井ビル
面積 賃料 共益費 敷金 入居日 お問合せ お気に入り
6F

262.73 坪

868.53 ㎡

※現在空室情報はございません

※現在空室情報は
ございません

最新情報を
確認する
  • 物件情報

    住所
    神奈川県横浜市中区尾上町1-8
    最寄り駅
    JR京浜東北線 関内駅 徒歩2分
    みなとみらい線 日本大通り駅 徒歩6分
    竣工
    1988年
    耐震
    新耐震基準
    規模・構造
    B1F - 11F  鉄骨鉄筋コンクリート造
  • 設備情報

    トイレ
    室外男女別
    -
    空調
    個別空調
    セキュリティ
    -
    駐車場
    会議室
    エレベーター
    3基
    天井高
    2550mm
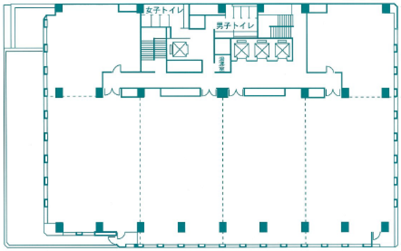
  • 間取り図

    間取り図

  • 近隣相場情報

    尾上町1丁目(100坪以上)の相場

    調査中

周辺地図

関内新井ビルは、神奈川県横浜市中区尾上町にある地下1階、地上11階建ての貸店舗/賃貸事務所です。最寄駅はJR京浜東北線の関内駅から徒歩2分、みなとみらい線の日本大通り駅から徒歩6分です。1988年9月竣工の鉄骨鉄筋コンクリート造です。設備としては、エレベーターが3基あり、駐車場もあり、貸会議室もあります。トイレは室外男女別です。空調は個別空調です。天高は2550mmです。耐震設計となっている、最寄駅から近くて便利な神奈川県横浜市中区尾上町の貸店舗/賃貸オフィスです。

全フロア情報

更新日:2024年10月9日

面積 賃料 共益費 敷金 入居日 お問合せ お気に入り
B1F

55.54 坪

183.6 ㎡

※現在空室情報はございません

※現在空室情報は
ございません

最新情報を
確認する
3F

299.99 坪

991.7 ㎡

※現在空室情報はございません

※現在空室情報は
ございません

最新情報を
確認する
3F

(CDF区画)

130.27 坪

430.63 ㎡

※現在空室情報はございません

※現在空室情報は
ございません

最新情報を
確認する
4F

222.42 坪

735.27 ㎡

※現在空室情報はございません

※現在空室情報は
ございません

最新情報を
確認する
4F

(1区画)

99 坪

327.27 ㎡

※現在空室情報はございません

※現在空室情報は
ございません

最新情報を
確認する
4F

(BC区画)

99.21 坪

327.97 ㎡

※現在空室情報はございません

※現在空室情報は
ございません

最新情報を
確認する
5F

294.52 坪

973.62 ㎡

※現在空室情報はございません

※現在空室情報は
ございません

最新情報を
確認する
6F

262.73 坪

868.53 ㎡

※現在空室情報はございません

※現在空室情報は
ございません

最新情報を
確認する
8F

(1区画)

102 坪

337.19 ㎡

※現在空室情報はございません

※現在空室情報は
ございません

最新情報を
確認する
8F

(2区画)

50.09 坪

165.59 ㎡

※現在空室情報はございません

※現在空室情報は
ございません

最新情報を
確認する
8F

(J区画)

50.09 坪

165.59 ㎡

※現在空室情報はございません

※現在空室情報は
ございません

最新情報を
確認する
9F

204.54 坪

676.16 ㎡

※現在空室情報はございません

※現在空室情報は
ございません

最新情報を
確認する
9F

(1区画)

27.93 坪

92.33 ㎡

※現在空室情報はございません

※現在空室情報は
ございません

最新情報を
確認する
10F

260.97 坪

862.71 ㎡

※現在空室情報はございません

※現在空室情報は
ございません

最新情報を
確認する

お問い合わせ

必須
必須
必須
必須
必須

お問い合わせ

物件に関してのお問い合わせ

「失敗しないオフィス移転サポート」物件探しから移転までスムーズで担当者様がとにかく楽になるサービスです。

050-7587-0049平日 9:00~18:00

メールでお問い合わせ

フリーワード検索