正直屋ビル(物件No:51880124)
正直屋ビルは、港区西新橋にある貸事務所物件です。最寄り駅は、JR、ゆりかもめ、東京メトロ銀座線、都営浅草線の新橋駅、東京メトロ銀座線の虎ノ門駅、東京メトロ日比谷線、丸ノ内線の、霞ヶ関駅、都営三田線の内幸町駅です。1985年竣工の賃貸オフィスビルです。天高は2300mmとなっております。空調は個別空調で、トイレは室内にあり、男女共用です。機械警備で、エレベーターは1基あります。複数路線利用可能な、アクセスの良い港区西新橋の貸事務所です。
-
物件情報
-
設備情報
- トイレ
- 室内男女共用
- 床
- -
- 空調
- 個別空調
- セキュリティ
- 有
- 駐車場
- -
- 会議室
- -
- エレベーター
- 1基
- 天井高
- 2300mm
-
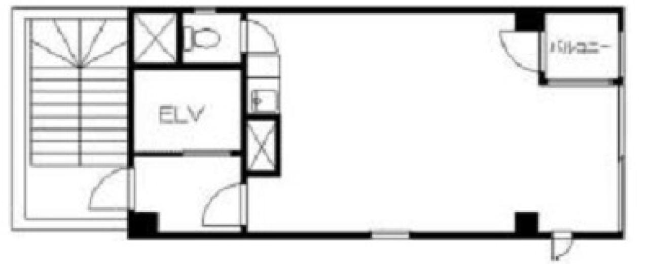
間取り図
-
近隣相場情報
西新橋1丁目(20坪以下)の相場
20617 円 (坪)
※ビルサク調べ
周辺施設情報
| コンビニ |
ローソン/ナチュラル 虎ノ門一丁目/240m(徒歩3分) ファミリーマート/西新橋一丁目店/240m(徒歩3分) |
|---|---|
| 郵便局/銀行 |
イーネット/ファミリーマート日比谷中日ビル/[営業時間]8:30~20:30/500m(徒歩7分) ローソン銀行/西新橋愛宕下通共同出張所/[営業時間]24時間 [取扱]海外発行カード対応、視覚障害者対応 [備考]ご利用可能な金融機関 当店のATM管理はローソン銀行です/160m(徒歩2分) |
| 飲食店 |
桑の木/11時30分~13時45分/300m(徒歩4分) 銀座 若会席 大和館/11時30分~22時00分/600m(徒歩8分) |
| カフェ |
プロント/espressamente illy illyBar霞ヶ関店/[営業時間]平日:カフェ 7:00~21:00 [休業日]土日祝 [備考]74席/全席禁煙/250m(徒歩4分) 草枕/10時00分~23時00分/36m(徒歩1分) |
| コインパーキング |
コインパーク/西新橋 [料金] 【月~土】 ■通常料金 【 0:00~24:00 】 15分/300円 【 日祝 】 ■通常料金 【 0:00~24:00 】 15分/300円 [最大料金] 【月~土】 ■最大料金 【 8:00~18:00 】 3800円 【 18:00~8:00 】 900円 【 日祝 】 ■最大料金 【 8:00~18:00 】 1500円 【 18:00~8:00 】 900円 [台数][車: 2台] タイムズ駐車場/西新橋第13 [料金] [月~土]通常料金 / 8:00~22:00 15分 300円 22:00~8:00 60分 100円 [日・祝]通常料金 / 8:00~22:00 60分 300円 22:00~8:00 60分 100円 [台数]1 |
周辺地図
正直屋ビルは、港区西新橋にある貸事務所物件です。最寄り駅は、JR、ゆりかもめ、東京メトロ銀座線、都営浅草線の新橋駅、東京メトロ銀座線の虎ノ門駅、東京メトロ日比谷線、丸ノ内線の、霞ヶ関駅、都営三田線の内幸町駅です。1985年竣工の賃貸オフィスビルです。天高は2300mmとなっております。空調は個別空調で、トイレは室内にあり、男女共用です。機械警備で、エレベーターは1基あります。複数路線利用可能な、アクセスの良い港区西新橋の貸事務所です。
全フロア情報
更新日:2025年12月1日
| 階 | 面積 | 賃料 | 共益費 | 敷金 | 入居日 | お問合せ | お気に入り | |
|---|---|---|---|---|---|---|---|---|
| B1-1F |
20.31 坪 67.14 ㎡ |
※現在空室情報はございません |
※現在空室情報は 確認する |
|||||
| B1-2F |
26.08 坪 86.21 ㎡ |
※現在空室情報はございません |
※現在空室情報は 確認する |
|||||
| 1F |
26.08 坪 86.21 ㎡ |
※現在空室情報はございません |
※現在空室情報は 確認する |
|||||
| 3F |
10.74 坪 35.5 ㎡ |
※現在空室情報はございません |
※現在空室情報は 確認する |
|||||
| 5F |
10.74 坪 35.5 ㎡ |
※現在空室情報はございません |
※現在空室情報は 確認する |
|||||
| 6F |
10.74 坪 35.5 ㎡ |
※現在空室情報はございません |
※現在空室情報は 確認する |
|||||
| 7F |
10.74 坪 35.5 ㎡ |
※現在空室情報はございません |
※現在空室情報は 確認する |
|||||
| 8F |
10.74 坪 35.5 ㎡ |
※現在空室情報はございません |
※現在空室情報は 確認する |
|||||
| 9F |
10.74 坪 35.5 ㎡ |
※現在空室情報はございません |
※現在空室情報は 確認する |
|||||
お問い合わせ
似た条件の物件はこちら
-
上村ビル
東京都港区新橋5-27-6
坪数:12 坪
坪単価:10,000 円(坪)
-
K&W新橋
東京都港区新橋6-6-9
坪数:11.25 坪
坪単価:13,689 円(坪)
-
田村町Shinshodoh BLDG
東京都港区新橋4-27-7
坪数:14.17 坪
坪単価:25,000 円(坪)
-
三沢ビル
東京都港区新橋6-12-8
坪数:12.5 坪
坪単価:15,000 円(坪)
-
アソルティ新橋ビル
東京都港区新橋4-24-11
坪数:14.7 坪
坪単価:13,000 円(坪)
-
第2一松ビル
東京都港区新橋5-25-3
坪数:14.78 坪
坪単価:15,562 円(坪)
-
日吉ビル
東京都港区新橋3-6-4
坪数:13.85 坪
坪単価:15,884 円(坪)
-
丸忠ビル
東京都港区新橋1-8-4
坪数:14.95 坪
坪単価:18,000 円(坪)
-
NTビル
東京都港区新橋5-9-5
坪数:14 坪
坪単価:11,000 円(坪)
-
虎ノ門ファーストビル
東京都港区虎ノ門1-12-11
坪数:12.83 坪
坪単価:15,588 円(坪)