赤坂有馬ビル(物件No:51787104)
赤坂有馬ビルは港区赤坂にある地下1階、地上6階建ての貸店舗事務所です。最寄駅は東京メトロ丸ノ内線の赤坂見附駅から徒歩3分、東京メトロ銀座線の赤坂見附駅から徒歩3分です。1993年8月竣工の鉄骨鉄筋コンクリート造です。設備としては、エレベーターが1基あります。空調は個別空調です。耐震設計となっている、最寄駅から近くて便利な港区赤坂の貸店舗事務所です。
-
物件情報
-
設備情報
- トイレ
- 室内男女共用
- 床
- -
- 空調
- 個別空調
- セキュリティ
- -
- 駐車場
- -
- 会議室
- -
- エレベーター
- 1基
- 天井高
- -
-
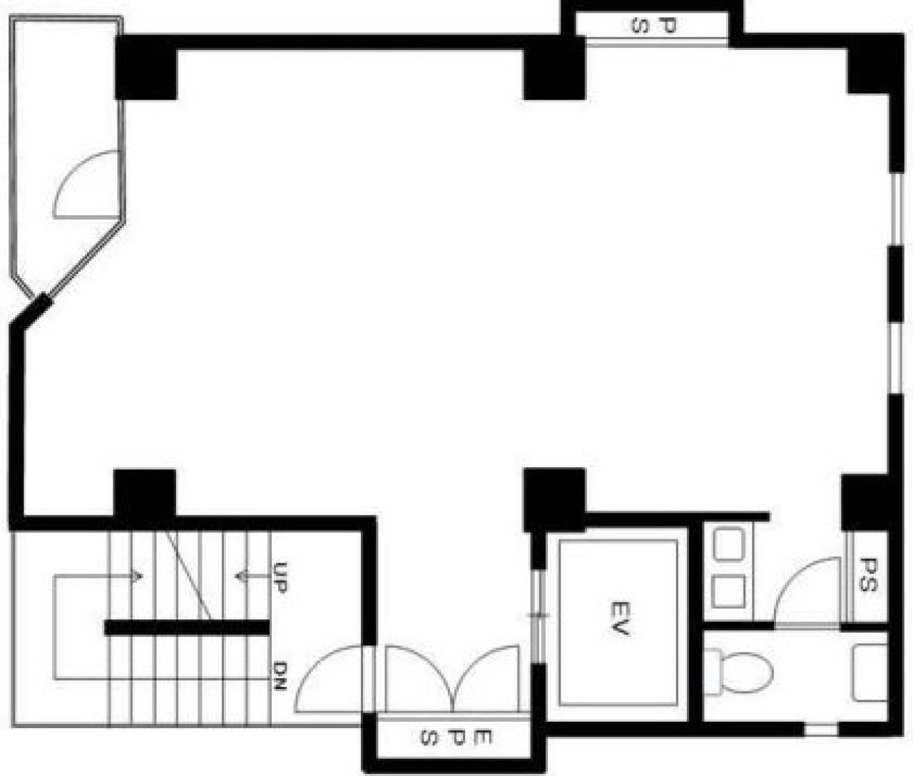
間取り図
-
近隣相場情報
赤坂4丁目(20坪以下)の相場
14473 円 (坪)
※ビルサク調べ
周辺施設情報
| コンビニ |
セブンイレブン/赤坂東急プラザ/220m(徒歩3分) ファミリーマート/赤坂見附駅前店/180m(徒歩2分) |
|---|---|
| 郵便局/銀行 |
バンクタイム/ATM ファミリーマート 永田町店/[営業時間]全日/24H営業 ※毎週日曜日23:00~翌日7:00 および 毎月第二土曜日23:00~翌日8:00はご利用になれません。※店舗の営業時間により、ATM営業時間が変更となる場合があります/350m(徒歩5分) 郵便局/都道府県会館内/[駐車場]なし [取扱]郵便/貯金/保険/ATM/600m(徒歩9分) |
| 飲食店 |
おむすび権米衛 赤坂店/7時00分~20時00分/260m(徒歩3分) 九遠 赤坂本店/16時00分~1時00分/200m(徒歩2分) |
| カフェ |
プロント 赤坂TBS店/8時00分~21時00分/700m(徒歩9分) しろたえ/10時30分~20時30分/10m(徒歩1分) |
| コインパーキング |
三井のリパーク/赤坂4丁目第8 [料金] 全日 00:00~24:00 15分/300円 [最大料金] 【全日】最大料金入庫後6時間以内2600円 [台数]3 タイムズ駐車場/ビックカメラ赤坂見附駅店 [料金] [月~金]通常料金 / 06:30-23:00 60分 800円 (ただし60分以降30分 400円) 23:00-06:30 60分 100円 [土・日・祝]通常料金 / 08:30-23:00 60分 800円 (ただし60分以降30分 400円) 23:00-08:30 60分 100円 [最大料金] [月~金]06:30-23:00 最大料金2000円 [土・日・祝]08:30-23:00 最大料金2000円 [台数]30 |
周辺地図
赤坂有馬ビルは港区赤坂にある地下1階、地上6階建ての貸店舗事務所です。最寄駅は東京メトロ丸ノ内線の赤坂見附駅から徒歩3分、東京メトロ銀座線の赤坂見附駅から徒歩3分です。1993年8月竣工の鉄骨鉄筋コンクリート造です。設備としては、エレベーターが1基あります。空調は個別空調です。耐震設計となっている、最寄駅から近くて便利な港区赤坂の貸店舗事務所です。
全フロア情報
更新日:2025年10月10日
| 階 | 面積 | 賃料 | 共益費 | 敷金 | 入居日 | お問合せ | お気に入り | |
|---|---|---|---|---|---|---|---|---|
| 1F |
15.1 坪 49.92 ㎡ |
513,400 円 34,000 円(坪) |
無 |
4,107,200 円 8 ヶ月 |
即日 |
|
|
|
| 2F |
16.6 坪 54.88 ㎡ |
※現在空室情報はございません |
※現在空室情報は 確認する |
|||||
| 3F |
16.6 坪 54.88 ㎡ |
※現在空室情報はございません |
※現在空室情報は 確認する |
|||||
お問い合わせ
似た条件の物件はこちら
-
SP赤坂ビル
東京都港区赤坂3-15-10
坪数:16.25 坪
坪単価:26,462 円(坪)
-
赤坂Kマンション
東京都港区赤坂2-15-7
坪数:15.81 坪
坪単価:16,302 円(坪)
-
第4文成ビル
東京都港区赤坂7-10-9
坪数:17 坪
坪単価:20,000 円(坪)
-
赤坂余湖ビル
東京都港区赤坂4-8-6
坪数:18.48 坪
坪単価:15,000 円(坪)
-
氷川アネックス2号館
東京都港区赤坂6-9-5
坪数:14.89 坪
坪単価:13,298 円(坪)
-
赤坂ASビル
東京都港区赤坂7-11-10
坪数:20.8 坪
坪単価:16,000 円(坪)
-
ゴールド赤坂
東京都港区赤坂3-12-11
坪数:17.58 坪
坪単価:23,891 円(坪)
-
赤坂栄ビル
東京都港区赤坂6-6-4
坪数:14.97 坪
坪単価:10,488 円(坪)
-
第2中田ビル
東京都港区赤坂1-3-15
坪数:21 坪
坪単価:15,952 円(坪)
-
笠松千代田ビル
東京都千代田区永田町2-17-4
坪数:11.42 坪
坪単価:23,993 円(坪)