日証館(物件No:51681161)
日証館は、中央区日本橋兜町にある貸事務所物件です。最寄り駅は、東京メトロ日比谷線、都営浅草線の人形町駅、東京メトロ銀座線の日本橋駅、東京メトロ日比谷線、東京メトロ東西線の茅場町駅です。1928年竣工の賃貸オフィスビルです。床はOAフロアとなっております。トイレは男女別です。機械警備で、エレベーターは3基あります。複数路線利用可能な、アクセスの良い中央区日本橋兜町の貸事務所です。
| 階 | 面積 | 賃料 | 共益費 | 敷金 | 入居日 | お問合せ | お気に入り |
|---|---|---|---|---|---|---|---|
|
2F
(00-01区画) |
21.16 坪 69.95 ㎡ |
相談 |
込 |
12ヶ月 |
相談 |
|
|
| 階 | 面積 | 賃料 | 共益費 | 敷金 | 入居日 | お問合せ | お気に入り |
|---|---|---|---|---|---|---|---|
|
2F
(00-01区画) |
21.16 坪 69.95 ㎡ |
相談 |
込 |
12ヶ月 |
相談 |
|
|
-
物件情報
-
設備情報
- トイレ
- 室外男女別
- 床
- フリーアクセス
- 空調
- 個別空調
- セキュリティ
- 有
- 駐車場
- 無
- 会議室
- -
- エレベーター
- 3基
- 天井高
- 2700mm
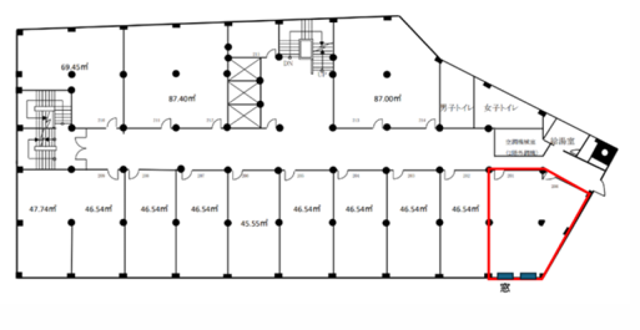
-
間取り図
-
近隣相場情報
日本橋兜町1丁目(20~30坪)の相場
25650 円 (坪)
※ビルサク調べ
周辺施設情報
| コンビニ |
セブンイレブン/兜町東証前/170m(徒歩2分) ファミリーマート/日本橋兜町店/240m(徒歩3分) |
|---|---|
| 郵便局/銀行 |
郵便局/日本橋/[駐車場]なし [取扱]郵便/貯金/保険/ゆうゆう/ATM/140m(徒歩2分) みずほ銀行/兜町支店/[営業時間] [窓口]平日9:00~15:00/180m(徒歩2分) |
| 飲食店 |
アサヒナガストロノーム/18時00分~23時30分/75m(徒歩1分) もつ千 日本橋兜町店/11時30分~14時00分 17時00分~2時00分/210m(徒歩3分) |
| カフェ |
シアトルズベスト/ヴァション日本橋兜町店/[営業時間]月~金 7:30~22:00(L.O. 21:30)土・日・祝 貸切のみ営業/200m(徒歩3分) ベローチェ/日本橋一丁目店/[営業時間]7:00~23:00(土22:00、日・祝21:00閉店)/260m(徒歩3分) |
| コインパーキング |
三井のリパーク/日本橋兜町第4 [料金] [料金]平日 08:00~20:00 15分/300円 平日 20:00~08:00 60分/100円 最大料金 【月~土】8:00~20:00以内 最大料金3500円 [最大料金] [料金]日祝 08:00~20:00 15分/300円 日祝 20:00~08:00 60分/100円 最大料金 【日 祝】8:00~20:00以内 最大料金2200円 [台数]4 タイムズ駐車場/TNS日本橋茅場町 [料金] [月~土]通常料金 / 8:00~20:00 20分 400円 20:00~8:00 60分 100円 [日・祝]通常料金 / 8:00~20:00 30分 300円 20:00~8:00 60分 100円 [最大料金] [月~土]当日1日最大料金3800円(24時迄) [日・祝]当日1日最大料金1500円(24時迄) [台数]48 |
周辺地図
日証館は、中央区日本橋兜町にある貸事務所物件です。最寄り駅は、東京メトロ日比谷線、都営浅草線の人形町駅、東京メトロ銀座線の日本橋駅、東京メトロ日比谷線、東京メトロ東西線の茅場町駅です。1928年竣工の賃貸オフィスビルです。床はOAフロアとなっております。トイレは男女別です。機械警備で、エレベーターは3基あります。複数路線利用可能な、アクセスの良い中央区日本橋兜町の貸事務所です。
全フロア情報
更新日:2026年1月22日
| 階 | 面積 | 賃料 | 共益費 | 敷金 | 入居日 | お問合せ | お気に入り | |
|---|---|---|---|---|---|---|---|---|
|
1F
(1区画) |
56.67 坪 187.34 ㎡ |
※現在空室情報はございません |
※現在空室情報は 確認する |
|||||
|
1F
(2区画) |
14.07 坪 46.51 ㎡ |
※現在空室情報はございません |
※現在空室情報は 確認する |
|||||
|
2F
(00-01区画) |
21.16 坪 69.95 ㎡ |
相談 |
込 |
12ヶ月 |
相談 |
|
|
|
|
2F
(1区画) |
21 坪 69.42 ㎡ |
※現在空室情報はございません |
※現在空室情報は 確認する |
|||||
|
2F
(11+12区画) |
26.43 坪 87.37 ㎡ |
※現在空室情報はございません |
※現在空室情報は 確認する |
|||||
|
2F
(2区画) |
14.07 坪 46.51 ㎡ |
※現在空室情報はございません |
※現在空室情報は 確認する |
|||||
|
2F
(3区画) |
14.07 坪 46.51 ㎡ |
※現在空室情報はございません |
※現在空室情報は 確認する |
|||||
|
3F
(00+01区画) |
21.16 坪 69.95 ㎡ |
※現在空室情報はございません |
※現在空室情報は 確認する |
|||||
|
3F
(1区画) |
26.43 坪 87.37 ㎡ |
相談 |
込 |
12ヶ月 |
2026/2 |
|
|
|
|
3F
(2区画) |
35.24 坪 116.5 ㎡ |
※現在空室情報はございません |
※現在空室情報は 確認する |
|||||
|
3F
(3区画) |
35.24 坪 116.5 ㎡ |
※現在空室情報はございません |
※現在空室情報は 確認する |
|||||
|
3F
(4区画) |
25.9 坪 85.62 ㎡ |
相談 |
込 |
12ヶ月 |
2026/4 |
|
|
|
|
4F
(1区画) |
13.32 坪 44.03 ㎡ |
※現在空室情報はございません |
※現在空室情報は 確認する |
|||||
|
4F
(2区画) |
31.31 坪 103.5 ㎡ |
※現在空室情報はございません |
※現在空室情報は 確認する |
|||||
|
4F
(3区画) |
4.87 坪 16.1 ㎡ |
※現在空室情報はございません |
※現在空室情報は 確認する |
|||||
|
4F
(4区画) |
28.51 坪 94.25 ㎡ |
※現在空室情報はございません |
※現在空室情報は 確認する |
|||||
|
4F
(5区画) |
28.15 坪 93.06 ㎡ |
※現在空室情報はございません |
※現在空室情報は 確認する |
|||||
|
5F
(1区画) |
8.28 坪 27.37 ㎡ |
※現在空室情報はございません |
※現在空室情報は 確認する |
|||||
|
5F
(2区画) |
8.28 坪 27.37 ㎡ |
※現在空室情報はございません |
※現在空室情報は 確認する |
|||||
お問い合わせ
似た条件の物件はこちら
-
AUBE新川ビル
東京都中央区新川2-18-10
坪数:20.82 坪
坪単価:14,000 円(坪)
-
NOVEL WORK 京橋
東京都中央区八丁堀3-5-4
坪数:24.89 坪
坪単価:28,500 円(坪)
-
第5山京ビル
東京都中央区新川1-2-8
坪数:21.25 坪
坪単価:17,082 円(坪)
-
塩部ビル
東京都中央区八丁堀4-9-6
坪数:24.06 坪
坪単価:12,500 円(坪)
-
ASビル
東京都中央区新川2-18-5
坪数:18.19 坪
坪単価:13,144 円(坪)
-
KSビル
東京都中央区八丁堀3-9-5
坪数:25.06 坪
坪単価:12,000 円(坪)
-
石川ビル
東京都中央区日本橋茅場町2-14-5
坪数:22 坪
坪単価:8,000 円(坪)
-
TKヤマダビル
東京都中央区八丁堀4-10-6
坪数:17.99 坪
坪単価:10,006 円(坪)
-
第1井上ビル
東京都中央区日本橋茅場町2-14-1
坪数:20.82 坪
坪単価:28,000 円(坪)
-
ニューリバータワー
東京都中央区新川1-6-11
坪数:16.2 坪
坪単価:22,000 円(坪)