ハイシティ湯島(物件No:51588156)
ハイシティ湯島は、文京区湯島にある貸事務所物件です。最寄駅は、JR、東京メトロ丸ノ内線御茶ノ水駅、千代田線湯島駅、銀座線末広町駅です。1991年竣工で基準階が65.38坪の貸事務所物件です。床は2WAYとなっています。トイレは男女別で、空調は個別空調です。エレベーターは1基あり、駐車場が利用可能です。複数路線利用可能で交通アクセスの良い、文京区湯島の貸事務所です。
| 階 | 面積 | 賃料 | 共益費 | 敷金 | 入居日 | お問合せ | お気に入り |
|---|---|---|---|---|---|---|---|
|
3F
(301区画) |
65.38 坪 216.13 ㎡ |
646,800 円 9,893 円(坪) |
無 |
1,940,400 円 3 ヶ月 |
即日 |
|
|
| 階 | 面積 | 賃料 | 共益費 | 敷金 | 入居日 | お問合せ | お気に入り |
|---|---|---|---|---|---|---|---|
|
3F
(301区画) |
65.38 坪 216.13 ㎡ |
646,800 円 9,893 円(坪) |
無 |
1,940,400 円 3 ヶ月 |
即日 |
|
|
-
物件情報
-
設備情報
- トイレ
- 男女別
- 床
- 2WAY
- 空調
- 個別空調
- セキュリティ
- -
- 駐車場
- 有
- 会議室
- -
- エレベーター
- 1基
- 天井高
- -
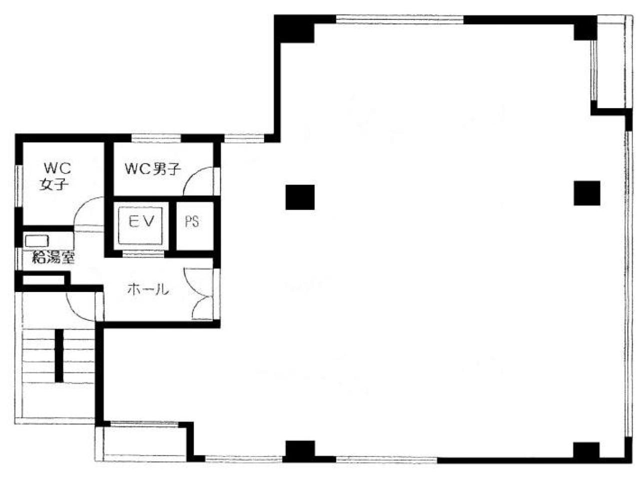
-
間取り図
-
近隣相場情報
湯島3丁目(50~100坪)の相場
11946 円 (坪)
※ビルサク調べ
周辺地図
ハイシティ湯島は、文京区湯島にある貸事務所物件です。最寄駅は、JR、東京メトロ丸ノ内線御茶ノ水駅、千代田線湯島駅、銀座線末広町駅です。1991年竣工で基準階が65.38坪の貸事務所物件です。床は2WAYとなっています。トイレは男女別で、空調は個別空調です。エレベーターは1基あり、駐車場が利用可能です。複数路線利用可能で交通アクセスの良い、文京区湯島の貸事務所です。
全フロア情報
更新日:2026年1月30日
| 階 | 面積 | 賃料 | 共益費 | 敷金 | 入居日 | お問合せ | お気に入り | |
|---|---|---|---|---|---|---|---|---|
| 3F |
65.38 坪 216.13 ㎡ |
※現在空室情報はございません |
※現在空室情報は 確認する |
|||||
|
3F
(301区画) |
65.38 坪 216.13 ㎡ |
646,800 円 9,893 円(坪) |
無 |
1,940,400 円 3 ヶ月 |
即日 |
|
|
|
お問い合わせ
似た条件の物件はこちら
-
三共小石川THビル
東京都文京区小石川5-36-5
坪数:59.49 坪
坪単価:12,000 円(坪)
-
ITP本郷オフィス
東京都文京区湯島2-25-7
坪数:53.51 坪
坪単価:14,000 円(坪)
-
IS弓町ビル
東京都文京区本郷1-28-24
坪数:57.24 坪
坪単価:11,500 円(坪)
-
ソフィアお茶の水
東京都文京区湯島2-4-3
坪数:77.23 坪
坪単価:14,089 円(坪)
-
本郷天理ビル
東京都文京区本郷3-16-4
坪数:53.03 坪
坪単価:10,500 円(坪)
-
本郷BNビル
東京都文京区本郷2-27-18
坪数:73.48 坪
坪単価:24,000 円(坪)
-
全水道会館
東京都文京区本郷1-4-1
坪数:65 坪
坪単価:14,091 円(坪)
-
ACN小石川スクエア
東京都文京区小日向4-2-6
坪数:71.06 坪
坪単価:20,000 円(坪)
-
UT本郷ビル
東京都文京区本郷2-12-10
坪数:56.84 坪
坪単価:25,114 円(坪)