広尾AKビル(物件No:51588027)
広尾AKビルは渋谷区広尾にある地上9階建ての賃貸事務所です。最寄駅は東京メトロ日比谷線の広尾駅から徒歩6分、JR線の恵比寿駅から徒歩12分です。1990年2月竣工の基準階面積が22.79坪の鉄骨鉄筋コンクリート造です。設備としては、エレベーターが1基あります。トイレは男女別です。空調は個別空調です。床仕様は2WAYです。天高は2500mmです。耐震設計となっている、複数路線利用可能なアクセスの良い渋谷区広尾の賃貸オフィスです。
-
物件情報
-
設備情報
- トイレ
- 室外男女別
- 床
- -
- 空調
- 個別空調
- セキュリティ
- 有
- 駐車場
- -
- 会議室
- -
- エレベーター
- 1基
- 天井高
- 2500mm
-
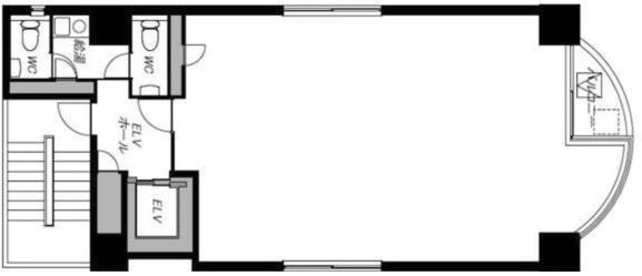
間取り図
-
近隣相場情報
広尾5丁目(20~30坪)の相場
20971 円 (坪)
※ビルサク調べ
周辺施設情報
| コンビニ |
ローソン/広尾南/500m(徒歩7分) セブンイレブン/渋谷恵比寿1丁目/650m(徒歩9分) |
|---|---|
| 郵便局/銀行 |
セブン銀行/渋谷広尾5丁目店/[営業時間]24時間営業 [ATM台数]1/47m(徒歩1分) ローソン銀行/ローソン銀行ATM NL 広尾五丁目共同出張所/[営業時間]24時間 [備考]ご利用可能な金融機関 当店のATM管理はローソン銀行です/170m(徒歩3分) |
| 飲食店 |
居間 IMA/18時00分~3時00分/29m(徒歩1分) うち津/18時00分~23時00分/41m(徒歩1分) |
| カフェ |
スターバックス/東京都立広尾病院店/[営業時間]月~金: 07:30~20:00 土日祝: 09:00~17:00 [休業日]不定休/230m(徒歩3分) CafeRacers Stand/12時00分~20時00分/210m(徒歩3分) |
| コインパーキング |
パークジャパン/広尾第7 [料金] 300円/20分 [最大料金] 8:00~22:00 最大料金3,600円 22:00~8:00 最大料金500円 [台数]2台 NPC24H/広尾第3 [料金] 15分/300円(8時~24時) 60分/100円(0時~8時) [最大料金] No.6~8のみ 4時間毎 2400円(8時~22時) 全車室 500円(22時~8時) [台数]8台 |
周辺地図
広尾AKビルは渋谷区広尾にある地上9階建ての賃貸事務所です。最寄駅は東京メトロ日比谷線の広尾駅から徒歩6分、JR線の恵比寿駅から徒歩12分です。1990年2月竣工の基準階面積が22.79坪の鉄骨鉄筋コンクリート造です。設備としては、エレベーターが1基あります。トイレは男女別です。空調は個別空調です。床仕様は2WAYです。天高は2500mmです。耐震設計となっている、複数路線利用可能なアクセスの良い渋谷区広尾の賃貸オフィスです。
全フロア情報
更新日:2025年11月10日
| 階 | 面積 | 賃料 | 共益費 | 敷金 | 入居日 | お問合せ | お気に入り | |
|---|---|---|---|---|---|---|---|---|
| 2F |
22.78 坪 75.32 ㎡ |
※現在空室情報はございません |
※現在空室情報は 確認する |
|||||
| 6F |
22.78 坪 75.32 ㎡ |
※現在空室情報はございません |
※現在空室情報は 確認する |
|||||
| 7F |
22.07 坪 72.96 ㎡ |
※現在空室情報はございません |
※現在空室情報は 確認する |
|||||
| 8-9F |
25.71 坪 85 ㎡ |
※現在空室情報はございません |
※現在空室情報は 確認する |
|||||
お問い合わせ
似た条件の物件はこちら
-
プラザ恵比寿南
東京都渋谷区恵比寿南2-8-3
坪数:21.02 坪
坪単価:26,641 円(坪)
-
コマンドプロンプト広尾
東京都渋谷区広尾5-17-9
坪数:23.65 坪
坪単価:36,490 円(坪)
-
ウインズビル
東京都渋谷区恵比寿西2-7-2
坪数:19.81 坪
坪単価:18,021 円(坪)
-
センチュリーハウス広尾Part3
東京都渋谷区広尾5-3-2
坪数:17.41 坪
坪単価:11,488 円(坪)
-
プロフィットマート代官山
東京都渋谷区恵比寿西2-6-2
坪数:18.73 坪
坪単価:16,000 円(坪)
-
鈴円代官山ビル
東京都渋谷区猿楽町4-3
坪数:23.74 坪
坪単価:26,032 円(坪)
-
デリス第2ビル
東京都渋谷区恵比寿1-16-29
坪数:20.01 坪
坪単価:19,490 円(坪)
-
代官山コーポラス
東京都渋谷区猿楽町12-1
坪数:20.89 坪
坪単価:15,231 円(坪)
-
ゼネラルビル恵比寿西
東京都渋谷区恵比寿西1-16-3
坪数:26.31 坪
坪単価:21,665 円(坪)
-
レジデンス広尾
東京都渋谷区広尾3-5-27
坪数:22.54 坪
坪単価:16,327 円(坪)