東京建物神保町ビル(物件No:51480029)
東京建物神保町ビル(旧:九段富士ビル)は、千代田区神田神保町にある貸事務所物件です。最寄り駅は東京メトロ半蔵門線、都営新宿線、三田線神保町駅、東京メトロ東西線九段下駅です。1978年竣工で基準階が209.07坪の賃貸オフィスビルです。床はOAフロアとなっています。トイレは男女別で、空調は個別空調です。エレベーターは2基あり、セキュリティは有人警備、機械警備となっています。駐車場が利用可能です。複数路線利用可能で、交通アクセスの良い、千代田区神田神保町の貸事務所です。
| 階 | 面積 | 賃料 | 共益費 | 敷金 | 入居日 | お問合せ | お気に入り |
|---|---|---|---|---|---|---|---|
|
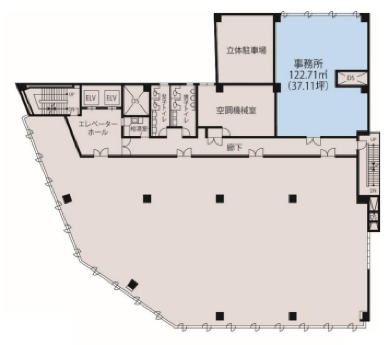
5F
(2区画) |
37.11 坪 122.68 ㎡ |
相談 |
相談 |
相談 |
相談 |
|
|
| 階 | 面積 | 賃料 | 共益費 | 敷金 | 入居日 | お問合せ | お気に入り |
|---|---|---|---|---|---|---|---|
|
5F
(2区画) |
37.11 坪 122.68 ㎡ |
相談 |
相談 |
相談 |
相談 |
|
|
-
物件情報
-
設備情報
- トイレ
- -
- 床
- -
- 空調
- 個別空調
- セキュリティ
- 有
- 駐車場
- 有
- 会議室
- -
- エレベーター
- 2基
- 天井高
- -
-
間取り図
-
近隣相場情報
神田神保町2丁目(30~40坪)の相場
15684 円 (坪)
※ビルサク調べ
周辺施設情報
| コンビニ |
ローソン/神田神保町二丁目/61m(徒歩1分) ファミリーマート/専大通り店/86m(徒歩1分) |
|---|---|
| 郵便局/銀行 |
みずほ銀行/九段支店/[営業時間] [窓口]平日9:00~15:00 [ATM]平日 6:00~26:00 土曜日 8:00~22:00 日曜日 8:00~21:00 祝日・振替休日 8:00~21:00 備考 *月曜日の6:00~7:00はご利用いただけません [駐車場]東京建物神保町ビル駐車場/2m(徒歩1分) ローソン銀行/神田神保町二丁目共同出張所/[営業時間]24時間(設置している店舗等の営業時間により、一部時間帯でご利用いただけない場合があります) [取扱]本人確認サービス対応、ATMチャージ/ATM払戻サービス、スマホATM(QR入出金)、海外発行カード/海外送金、視覚障害者対応 [備考]ご利用可能な金融機関 当店のATM管理はローソン銀/61m(徒歩1分) |
| 飲食店 |
雷門き介 神保町店/11時30分~14時15分、16時00分~20時00分/ 焼肉 かいの匠/ |
| カフェ |
ブックカフェ二十世紀+米粉カフェてぃだ/11時00分~19時00分/110m(徒歩2分) 珈琲館/専大前本店/[営業時間]平日 7:30~22:00 / 土日祝 8:00~20:00 [休業日]なし [駐車場]無 [備考]59席/完全分煙/コンセント席有/Wi-Fi環境(au)/69m(徒歩1分) |
| コインパーキング |
コインパーク/神田神保町2丁目 [料金] 【全日】■通常料金【0:00~24:00】20分400円 [最大料金] 【全日】【駐車後3時間以内(1回限り)】2800円 【全日】【21:00~8:00】600円 [台数] [車: 1台] 公社駐車場/神保町 [料金] 12分400円(7:00~24:00) 60分100円(0:00~7:00) [台数]4台 |
周辺地図
東京建物神保町ビル(旧:九段富士ビル)は、千代田区神田神保町にある貸事務所物件です。最寄り駅は東京メトロ半蔵門線、都営新宿線、三田線神保町駅、東京メトロ東西線九段下駅です。1978年竣工で基準階が209.07坪の賃貸オフィスビルです。床はOAフロアとなっています。トイレは男女別で、空調は個別空調です。エレベーターは2基あり、セキュリティは有人警備、機械警備となっています。駐車場が利用可能です。複数路線利用可能で、交通アクセスの良い、千代田区神田神保町の貸事務所です。
全フロア情報
更新日:2025年12月1日
| 階 | 面積 | 賃料 | 共益費 | 敷金 | 入居日 | お問合せ | お気に入り | |
|---|---|---|---|---|---|---|---|---|
|
5F
(2区画) |
37.11 坪 122.68 ㎡ |
相談 |
相談 |
相談 |
相談 |
|
|
|
|
5F
(南区画) |
171.9 坪 568.26 ㎡ |
※現在空室情報はございません |
※現在空室情報は 確認する |
|||||
| 6F |
209.23 坪 691.67 ㎡ |
※現在空室情報はございません |
※現在空室情報は 確認する |
|||||
|
7F
(南区画) |
209.23 坪 691.67 ㎡ |
※現在空室情報はございません |
※現在空室情報は 確認する |
|||||
お問い合わせ
似た条件の物件はこちら
-
山京別館
東京都千代田区飯田橋1-7-10
坪数:33.92 坪
坪単価:10,000 円(坪)
-
日産ビル
東京都千代田区飯田橋4-8-6
坪数:35 坪
坪単価:9,000 円(坪)
-
グラン水道橋
東京都千代田区神田三崎町3-4-4
坪数:31.88 坪
坪単価:26,004 円(坪)
-
神保町カンナビル
東京都千代田区神田神保町2-22-3
坪数:44.42 坪
坪単価:10,000 円(坪)
-
高橋ビル
東京都千代田区神田神保町3-2
坪数:27.17 坪
坪単価:13,930 円(坪)
-
BONMARUSANビル
東京都千代田区神田神保町3-5
坪数:42.5 坪
坪単価:16,500 円(坪)
-
友輪ビル
東京都千代田区神田神保町2-40-7
坪数:27.22 坪
坪単価:11,500 円(坪)
-
サンポウ水道橋ビル
東京都千代田区西神田1-4-11
坪数:46.1 坪
坪単価:15,000 円(坪)
-
山屋ビル
東京都千代田区神田神保町3-17-36
坪数:31.47 坪
坪単価:8,000 円(坪)
-
GLORKS水道橋
東京都千代田区神田三崎町3-2-14
坪数:44.69 坪
坪単価:25,000 円(坪)