ケイティ商会ビル(物件No:51389159)
ケイティ商会ビルは台東区浅草にある地上6階建ての貸店舗事務所です。最寄駅は東武伊勢崎線の浅草駅から徒歩8分、東京メトロ銀座線の浅草駅から徒歩10分、つくばエクスプレスの浅草(つくばEX)駅から徒歩11分、都営浅草線の浅草駅から徒歩11分、都営浅草線の本所吾妻橋駅から徒歩12分です。1973年2月竣工の鉄筋コンクリート造です。複数路線利用可能なアクセスの良い台東区浅草の貸店舗事務所です。
| 階 | 面積 | 賃料 | 共益費 | 敷金 | 入居日 | お問合せ | お気に入り |
|---|---|---|---|---|---|---|---|
|
1F
(102区画) |
21.45 坪 70.91 ㎡ |
170,000 円 7,925 円(坪) |
無し |
510,000 円 3 ヶ月 |
即日 |
|
|
| 階 | 面積 | 賃料 | 共益費 | 敷金 | 入居日 | お問合せ | お気に入り |
|---|---|---|---|---|---|---|---|
|
1F
(102区画) |
21.45 坪 70.91 ㎡ |
170,000 円 7,925 円(坪) |
無し |
510,000 円 3 ヶ月 |
即日 |
|
|
-
物件情報
-
設備情報
- トイレ
- 男女共用
- 床
- -
- 空調
- -
- セキュリティ
- -
- 駐車場
- -
- 会議室
- -
- エレベーター
- -
- 天井高
- -
-
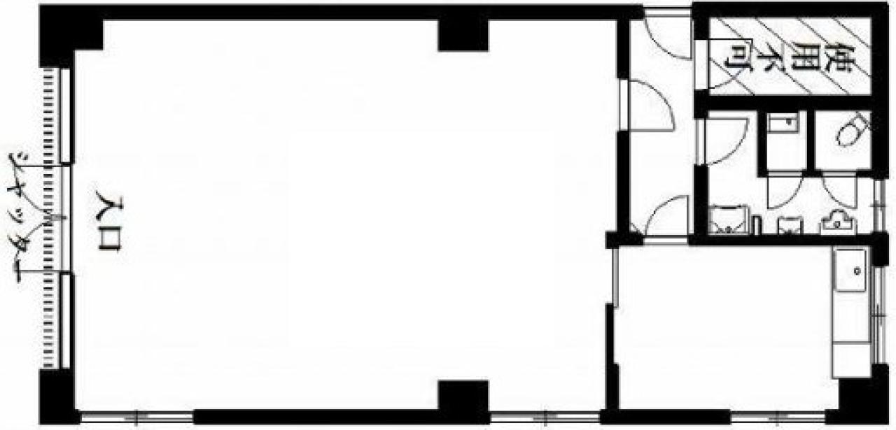
間取り図
-
近隣相場情報
浅草6丁目(20~30坪)の相場
15651 円 (坪)
※ビルサク調べ
周辺地図
ケイティ商会ビルは台東区浅草にある地上6階建ての貸店舗事務所です。最寄駅は東武伊勢崎線の浅草駅から徒歩8分、東京メトロ銀座線の浅草駅から徒歩10分、つくばエクスプレスの浅草(つくばEX)駅から徒歩11分、都営浅草線の浅草駅から徒歩11分、都営浅草線の本所吾妻橋駅から徒歩12分です。1973年2月竣工の鉄筋コンクリート造です。複数路線利用可能なアクセスの良い台東区浅草の貸店舗事務所です。
全フロア情報
更新日:2024年3月25日
| 階 | 面積 | 賃料 | 共益費 | 敷金 | 入居日 | お問合せ | お気に入り | |
|---|---|---|---|---|---|---|---|---|
|
1F
(102区画) |
21.45 坪 70.91 ㎡ |
170,000 円 7,925 円(坪) |
無し |
510,000 円 3 ヶ月 |
即日 |
|
|
|
| 2F |
48.27 坪 159.56 ㎡ |
※現在空室情報はございません |
※現在空室情報は 確認する |
|||||
お問い合わせ
似た条件の物件はこちら
-
大島屋浅草橋ビル
東京都台東区柳橋1-13-5
坪数:16 坪
坪単価:15,625 円(坪)
-
三筋クレセントビル
東京都台東区三筋1-9-4
坪数:19.78 坪
坪単価:7,009 円(坪)
-
堀ビル
東京都台東区浅草橋3-11-1
坪数:18.02 坪
坪単価:9,989 円(坪)
-
花一店舗
東京都台東区花川戸1-10-16
坪数:24.55 坪
坪単価:14,664 円(坪)
-
原田ビル
東京都台東区浅草橋5-9-7
坪数:19.63 坪
坪単価:9,424 円(坪)
-
SCS ASAKUSABASHI
東京都台東区浅草橋3-34-10
坪数:18.45 坪
坪単価:16,500 円(坪)
-
銀座ビル
東京都台東区浅草橋3-1-2
坪数:22.66 坪
坪単価:8,000 円(坪)
-
浅草橋STビル
東京都台東区浅草橋1-13-6
坪数:21.25 坪
坪単価:9,500 円(坪)
-
浅草4丁目店舗
東京都台東区浅草4-33-7
坪数:22.1 坪
坪単価:11,312 円(坪)
-
清水ビル
東京都台東区浅草橋1-1-14
坪数:23.11 坪
坪単価:12,000 円(坪)