KHK池袋ビル(物件No:51188119)
KHK池袋ビルは、豊島区南池袋にある貸事務所物件です。最寄り駅は、JR線、東京メトロ丸ノ内線、東京メトロ有楽町線、東京メトロ副都心線、東武東上線の池袋駅、東京メトロ有楽町線の東池袋駅、都電荒川線の都電雑司が谷駅です。1983年竣工、2013年にリニューアル工事完了で、基準階が94.87坪の賃貸オフィスビルです。天高は2500mmで、床はOAフロアとなっております。空調は個別空調で、トイレは男女別です。駐車場があり 、エレベーターは1基あります。複数路線利用可能な、アクセスの良い豊島区南池袋の貸事務所です。
-
物件情報
-
設備情報
- トイレ
- 男女別
- 床
- フリーアクセス
- 空調
- 個別空調
- セキュリティ
- -
- 駐車場
- 有
- 会議室
- -
- エレベーター
- 1基
- 天井高
- -
-
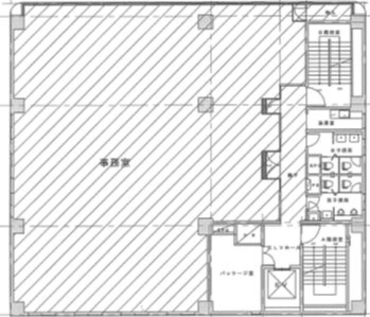
間取り図
-
近隣相場情報
南池袋2丁目(50~100坪)の相場
23509 円 (坪)
※ビルサク調べ
周辺施設情報
| コンビニ |
ファミリーマート/池袋グリーン大通り店/200m(徒歩3分) ファミリーマート/トモニー池袋駅1階改札内店/300m(徒歩4分) |
|---|---|
| 郵便局/銀行 |
西武信用金庫/池袋支店/100m(徒歩1分) みずほ銀行/ATM 豊島区役所出張所/[営業時間]平日 9:00~17:30 土曜日 非稼働 日曜日 非稼働 祝日・振替休日 非稼働 備考 *設置施設の休業日・休業時間帯は、一般のお客さまはご利用いただけません。/450m(徒歩5分) |
| 飲食店 |
地酒遊楽 裏や/17時00分~23時00分/200m(徒歩2分) ヤキニクマフィア池袋店/18時00分~23時00分/220m(徒歩3分) |
| カフェ |
プロント/池袋東口店/[営業時間]平日:カフェ 7:00~17:30 サカバ 17:30~22:00 土曜:カフェ 8:00~17:30 サカバ 17:30~22:00 日祝:カフェ 8:00~17:30 サカバ 17:30~22:00 ※モーニングは10:30まで。カフェ終了30分前がラストオーダー。※夜はキッサカバメニューを提供。サカバ終了30分前がラストオーダー [休業日]無休 [備考]58席/分煙(禁煙席/加熱/250m(徒歩3分) 椿屋珈琲/池袋離れ/[営業時間]月~木 10:00~22:30 土曜日 10:00~23:00 日祝日 10:00~22:30/350m(徒歩5分) |
| コインパーキング |
NTTル・パルク/南池袋第1 [料金] 昼8:00~19:00 20分 300円 夜19:00~8:00 20分 300円 [最大料金] 昼間最大料金(8:00~19:00)2,000円(1回限り) 夜間最大料金(19:00~8:00)300円(1回限り) [台数]:15台 タイムズ/南池袋2丁目 [料金] [全日]0:00~0:00 15分 440円 [台数]1台 |
周辺地図
KHK池袋ビルは、豊島区南池袋にある貸事務所物件です。最寄り駅は、JR線、東京メトロ丸ノ内線、東京メトロ有楽町線、東京メトロ副都心線、東武東上線の池袋駅、東京メトロ有楽町線の東池袋駅、都電荒川線の都電雑司が谷駅です。1983年竣工、2013年にリニューアル工事完了で、基準階が94.87坪の賃貸オフィスビルです。天高は2500mmで、床はOAフロアとなっております。空調は個別空調で、トイレは男女別です。駐車場があり 、エレベーターは1基あります。複数路線利用可能な、アクセスの良い豊島区南池袋の貸事務所です。
全フロア情報
更新日:2022年1月31日
| 階 | 面積 | 賃料 | 共益費 | 敷金 | 入居日 | お問合せ | お気に入り | |
|---|---|---|---|---|---|---|---|---|
| 3F |
82.16 坪 271.60 ㎡ |
※現在空室情報はございません |
※現在空室情報は 確認する |
|||||
| 4F |
94.87 坪 313.62 ㎡ |
※現在空室情報はございません |
※現在空室情報は 確認する |
|||||
| 5F |
94.87 坪 313.62 ㎡ |
※現在空室情報はございません |
※現在空室情報は 確認する |
|||||
| 6F |
94.87 坪 313.62 ㎡ |
※現在空室情報はございません |
※現在空室情報は 確認する |
|||||
お問い合わせ
似た条件の物件はこちら
-
大河内ビル
東京都豊島区池袋2-52-8
坪数:102 坪
坪単価:10,215 円(坪)
-
タカセセントラルビル
東京都豊島区東池袋1-1-4
坪数:76.34 坪
坪単価:23,000 円(坪)
-
オリックス池袋ビル
東京都豊島区南池袋1-19-6
坪数:85.78 坪
坪単価:30,000 円(坪)
-
第2キンズメンビル
東京都豊島区東池袋4-23-15
坪数:89.76 坪
坪単価:18,000 円(坪)
-
千早2丁目一棟貸事務所
東京都豊島区千早2-30-11
坪数:96.69 坪
坪単価:12,411 円(坪)
-
第10野萩ビル
東京都豊島区南池袋2-27-8
坪数:86.25 坪
坪単価:25,055 円(坪)
-
藤久ビル西2号館
東京都豊島区西池袋3-28-1
坪数:76.42 坪
坪単価:15,000 円(坪)
-
タカセビル本館
東京都豊島区東池袋1-25-8
坪数:104.6 坪
坪単価:16,000 円(坪)
-
東信東池袋ビル
東京都豊島区東池袋5-44-15
坪数:76.14 坪
坪単価:12,000 円(坪)
-
三経33ビル
東京都豊島区東池袋1-4-2
坪数:81.73 坪
坪単価:48,000 円(坪)