虎ノ門PFビル(物件No:51182144)
虎ノ門PFビルは、港区虎ノ門にある貸事務所物件です。最寄り駅は、東京メトロ銀座線、JR線の新橋駅、東京メトロ日比谷線の神谷町駅、東京メトロ銀座線の虎ノ門駅、都営三田線の内幸町駅、東京メトロ南北線の六本木一丁目駅、都営三田線の御成門駅、東京メトロ日比谷線の銀座駅、都営大江戸線の赤羽橋駅、都営大江戸線の大門駅、東京メトロ日比谷線、東京メトロ千代田線、東京メトロ丸ノ内線の霞ヶ関駅です。1986年竣工で、基準階が233.69坪の賃貸オフィスビルです。空調は個別空調で、トイレは男女別です。エレベーターは2基あります。複数路線利用可能な、アクセスの良い港区虎ノ門の貸事務所です。
| 階 | 面積 | 賃料 | 共益費 | 敷金 | 入居日 | お問合せ | お気に入り |
|---|---|---|---|---|---|---|---|
| 4F |
197.24 坪 652.03 ㎡ |
相談 |
込 |
12ヶ月 |
2026/07 |
|
|
| 階 | 面積 | 賃料 | 共益費 | 敷金 | 入居日 | お問合せ | お気に入り |
|---|---|---|---|---|---|---|---|
| 4F |
197.24 坪 652.03 ㎡ |
相談 |
込 |
12ヶ月 |
2026/07 |
|
|
-
物件情報
-
設備情報
- トイレ
- 男女別
- 床
- -
- 空調
- セントラル空調
- セキュリティ
- -
- 駐車場
- 有
- 会議室
- -
- エレベーター
- 2基
- 天井高
- 2450mm
-
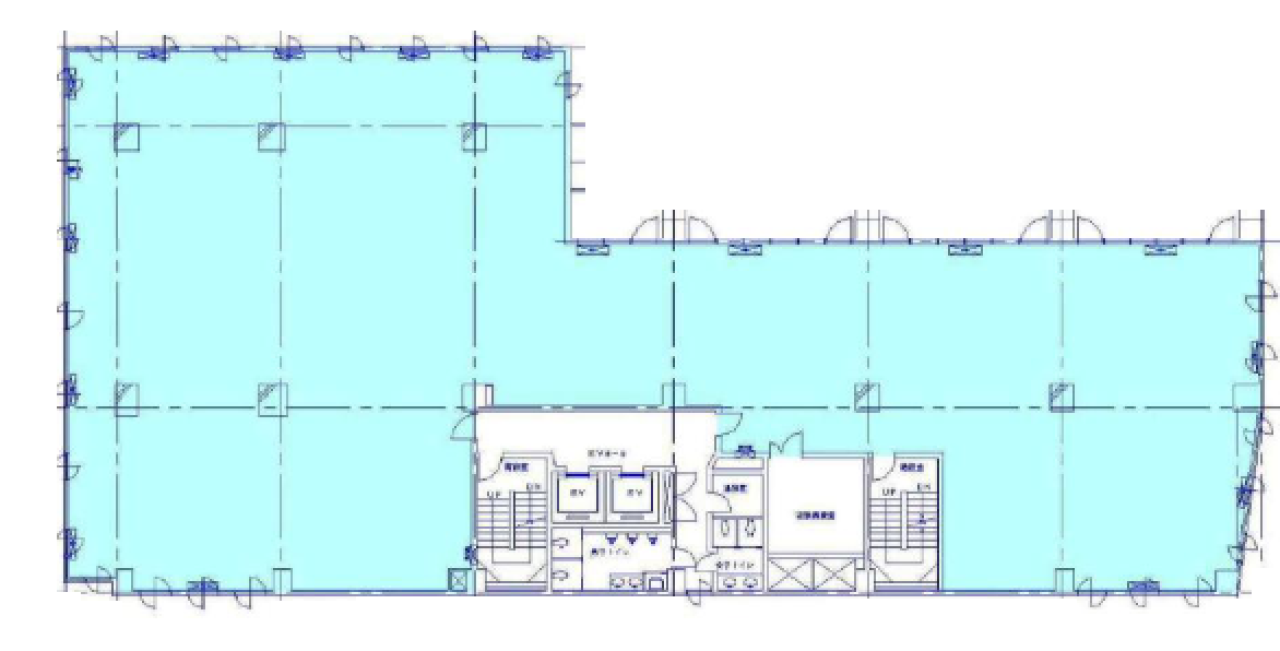
間取り図
-
近隣相場情報
虎ノ門3丁目(100坪以上)の相場
25111 円 (坪)
※ビルサク調べ
周辺施設情報
| コンビニ |
セブンイレブン/神谷町駅東/260m(徒歩3分) ローソン/ナチュラル 虎ノ門巴町/130m(徒歩2分) |
|---|---|
| 郵便局/銀行 |
イーネット/ファミリーマートファミマ虎ノ門ヒルズ1号機/[営業時間]7:00~23:00/400m(徒歩5分) 関西みらい銀行/東京支店(旧関西アーバン銀行店舗)/[営業時間]平日/9:00~15:00 [ATM]平日/8:45~17:00/700m(徒歩9分) |
| 飲食店 |
魚串然/11時30分~14時00分、17時00分~23時00分/400m(徒歩5分) 串特急 神谷町店/11時00分~4時00分/350m(徒歩5分) |
| カフェ |
カウベル/~¥999/450m(徒歩6分) 松屋珈琲店/8時30分~17時30分/66m(徒歩1分) |
| コインパーキング |
三井のリパーク/西新橋2丁目第5 [料金] 平日 08:00~00:00 15分/400円、平日 00:00~08:00 60分/100円 日祝 08:00~00:00 15分/400円、日祝 00:00~08:00 60分/100円 [最大料金] 【月~土】最大料金入庫当日24時まで4500円 【日祝】最大料金入庫当日24時まで1200円 [台数]17 PEN/港区西新橋3丁目パーキング [料金] 月~土【通常】8:00~22:00 15分 500円 22:00~8:00 60分 100円 日・祝【通常】8:00~22:00 60分 100円 22:00~8:00 60分 100円 [最大料金] 月~土【最大】夜間最大(22時-8時)500円 日・祝【最大】夜間最大(22時-8時)500円 [台数]3台 |
周辺地図
虎ノ門PFビルは、港区虎ノ門にある貸事務所物件です。最寄り駅は、東京メトロ銀座線、JR線の新橋駅、東京メトロ日比谷線の神谷町駅、東京メトロ銀座線の虎ノ門駅、都営三田線の内幸町駅、東京メトロ南北線の六本木一丁目駅、都営三田線の御成門駅、東京メトロ日比谷線の銀座駅、都営大江戸線の赤羽橋駅、都営大江戸線の大門駅、東京メトロ日比谷線、東京メトロ千代田線、東京メトロ丸ノ内線の霞ヶ関駅です。1986年竣工で、基準階が233.69坪の賃貸オフィスビルです。空調は個別空調で、トイレは男女別です。エレベーターは2基あります。複数路線利用可能な、アクセスの良い港区虎ノ門の貸事務所です。
全フロア情報
更新日:2025年10月7日
| 階 | 面積 | 賃料 | 共益費 | 敷金 | 入居日 | お問合せ | お気に入り | |
|---|---|---|---|---|---|---|---|---|
| B1F |
66.4 坪 219.5 ㎡ |
※現在空室情報はございません |
※現在空室情報は 確認する |
|||||
|
B1F
(1区画) |
92.3 坪 305.12 ㎡ |
相談 |
込 |
12ヶ月 |
2026/07 |
|
|
|
| 4F |
197.24 坪 652.03 ㎡ |
相談 |
込 |
12ヶ月 |
2026/07 |
|
|
|