いろいろ聞いてみる

東五反田の賃貸オフィス

JRE東五反田一丁目ビル(物件No:51181128)

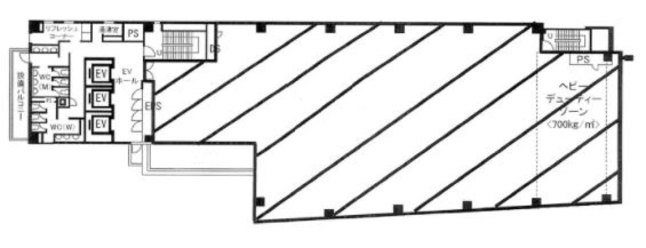
JRE東五反田一丁目ビルは品川区東五反田にある地上8階建ての賃貸事務所です。最寄駅は都営浅草線の五反田駅から徒歩4分、JR山手線の五反田駅から徒歩4分です。2004年7月竣工の基準階面積が201.64坪の鉄骨鉄筋コンクリート造です。設備としては、エレベーターが3基あり、駐車場もあります。警備は有人警備です。トイレは男女別です。空調は個別空調です。床仕様はフリーアクセスです。天高は2800mmです。耐震設計となっている、複数路線利用可能なアクセスの良い品川区東五反田の賃貸オフィスです。

面積 賃料 共益費 敷金 入居日 お問合せ お気に入り
8F

201.11 坪

664.83 ㎡

※現在空室情報はございません

※現在空室情報は
ございません

最新情報を
確認する
  • JRE東五反田一丁目ビル
  • JRE東五反田一丁目ビル
  • JRE東五反田一丁目ビル
  • JRE東五反田一丁目ビル
面積 賃料 共益費 敷金 入居日 お問合せ お気に入り
8F

201.11 坪

664.83 ㎡

※現在空室情報はございません

※現在空室情報は
ございません

最新情報を
確認する

周辺地図

JRE東五反田一丁目ビルは品川区東五反田にある地上8階建ての賃貸事務所です。最寄駅は都営浅草線の五反田駅から徒歩4分、JR山手線の五反田駅から徒歩4分です。2004年7月竣工の基準階面積が201.64坪の鉄骨鉄筋コンクリート造です。設備としては、エレベーターが3基あり、駐車場もあります。警備は有人警備です。トイレは男女別です。空調は個別空調です。床仕様はフリーアクセスです。天高は2800mmです。耐震設計となっている、複数路線利用可能なアクセスの良い品川区東五反田の賃貸オフィスです。

全フロア情報

更新日:2026年3月3日

面積 賃料 共益費 敷金 入居日 お問合せ お気に入り
2F

219.57 坪

725.85 ㎡

※現在空室情報はございません

※現在空室情報は
ございません

最新情報を
確認する
3F

210.36 坪

695.4 ㎡

相談

相談

相談

2026/07/01 お問い合わせ お気に入り
4F

201.11 坪

664.83 ㎡

相談

相談

相談

2026/07/01 お問い合わせ お気に入り
5F

201.11 坪

664.83 ㎡

相談

相談

相談

2026/07/01 お問い合わせ お気に入り
6F

201.11 坪

664.83 ㎡

相談

相談

相談

2026/07/01 お問い合わせ お気に入り
8F

201.11 坪

664.83 ㎡

※現在空室情報はございません

※現在空室情報は
ございません

最新情報を
確認する

お問い合わせ

必須
必須
必須
必須
必須

似た条件の物件はこちら

関連エリアから探す

駅から探す

お問い合わせ

物件に関してのお問い合わせ

「失敗しないオフィス移転サポート」物件探しから移転までスムーズで担当者様がとにかく楽になるサービスです。

050-7587-0049平日 9:00~18:00

メールでお問い合わせ

フリーワード検索