JRE東五反田一丁目ビル(物件No:51181128)
JRE東五反田一丁目ビルは品川区東五反田にある地上8階建ての賃貸事務所です。最寄駅は都営浅草線の五反田駅から徒歩4分、JR山手線の五反田駅から徒歩4分です。2004年7月竣工の基準階面積が201.64坪の鉄骨鉄筋コンクリート造です。設備としては、エレベーターが3基あり、駐車場もあります。警備は有人警備です。トイレは男女別です。空調は個別空調です。床仕様はフリーアクセスです。天高は2800mmです。耐震設計となっている、複数路線利用可能なアクセスの良い品川区東五反田の賃貸オフィスです。
| 階 | 面積 | 賃料 | 共益費 | 敷金 | 入居日 | お問合せ | お気に入り |
|---|---|---|---|---|---|---|---|
| 6F |
201.11 坪 664.83 ㎡ |
相談 |
相談 |
相談 |
2026/07/01 |
|
|
| 階 | 面積 | 賃料 | 共益費 | 敷金 | 入居日 | お問合せ | お気に入り |
|---|---|---|---|---|---|---|---|
| 6F |
201.11 坪 664.83 ㎡ |
相談 |
相談 |
相談 |
2026/07/01 |
|
|
-
物件情報
-
設備情報
- トイレ
- 男女別
- 床
- -
- 空調
- 個別空調
- セキュリティ
- 有
- 駐車場
- 有
- 会議室
- -
- エレベーター
- 3基
- 天井高
- -
-
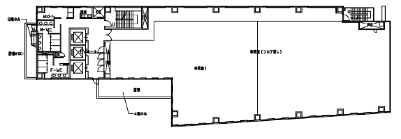
間取り図
-
近隣相場情報
東五反田1丁目(100坪以上)の相場
21000 円 (坪)
※ビルサク調べ
周辺地図
JRE東五反田一丁目ビルは品川区東五反田にある地上8階建ての賃貸事務所です。最寄駅は都営浅草線の五反田駅から徒歩4分、JR山手線の五反田駅から徒歩4分です。2004年7月竣工の基準階面積が201.64坪の鉄骨鉄筋コンクリート造です。設備としては、エレベーターが3基あり、駐車場もあります。警備は有人警備です。トイレは男女別です。空調は個別空調です。床仕様はフリーアクセスです。天高は2800mmです。耐震設計となっている、複数路線利用可能なアクセスの良い品川区東五反田の賃貸オフィスです。
全フロア情報
更新日:2026年3月3日
| 階 | 面積 | 賃料 | 共益費 | 敷金 | 入居日 | お問合せ | お気に入り | |
|---|---|---|---|---|---|---|---|---|
| 2F |
219.57 坪 725.85 ㎡ |
※現在空室情報はございません |
※現在空室情報は 確認する |
|||||
| 3F |
210.36 坪 695.4 ㎡ |
相談 |
相談 |
相談 |
2026/07/01 |
|
|
|
| 4F |
201.11 坪 664.83 ㎡ |
相談 |
相談 |
相談 |
2026/07/01 |
|
|
|
| 5F |
201.11 坪 664.83 ㎡ |
相談 |
相談 |
相談 |
2026/07/01 |
|
|
|
| 6F |
201.11 坪 664.83 ㎡ |
相談 |
相談 |
相談 |
2026/07/01 |
|
|
|
| 8F |
201.11 坪 664.83 ㎡ |
※現在空室情報はございません |
※現在空室情報は 確認する |
|||||