まるみビル(物件No:50318052)
まるみビルは、中央区築地にある地上7階建ての賃貸事務所です。最寄駅は東京メトロ日比谷線の築地駅から徒歩1分、東京メトロ有楽町線の新富町駅から徒歩4分です。1985年6月竣工の鉄骨鉄筋コンクリート造です。設備としては、エレベーターが1基あります。トイレは室内男女共用です。空調は個別空調です。耐震設計となっている、最寄駅から近くて便利な中央区築地の賃貸オフィスです。
-
物件情報
-
設備情報
- トイレ
- 室内男女共用
- 床
- -
- 空調
- 個別空調
- セキュリティ
- -
- 駐車場
- -
- 会議室
- -
- エレベーター
- 1基
- 天井高
- -
-
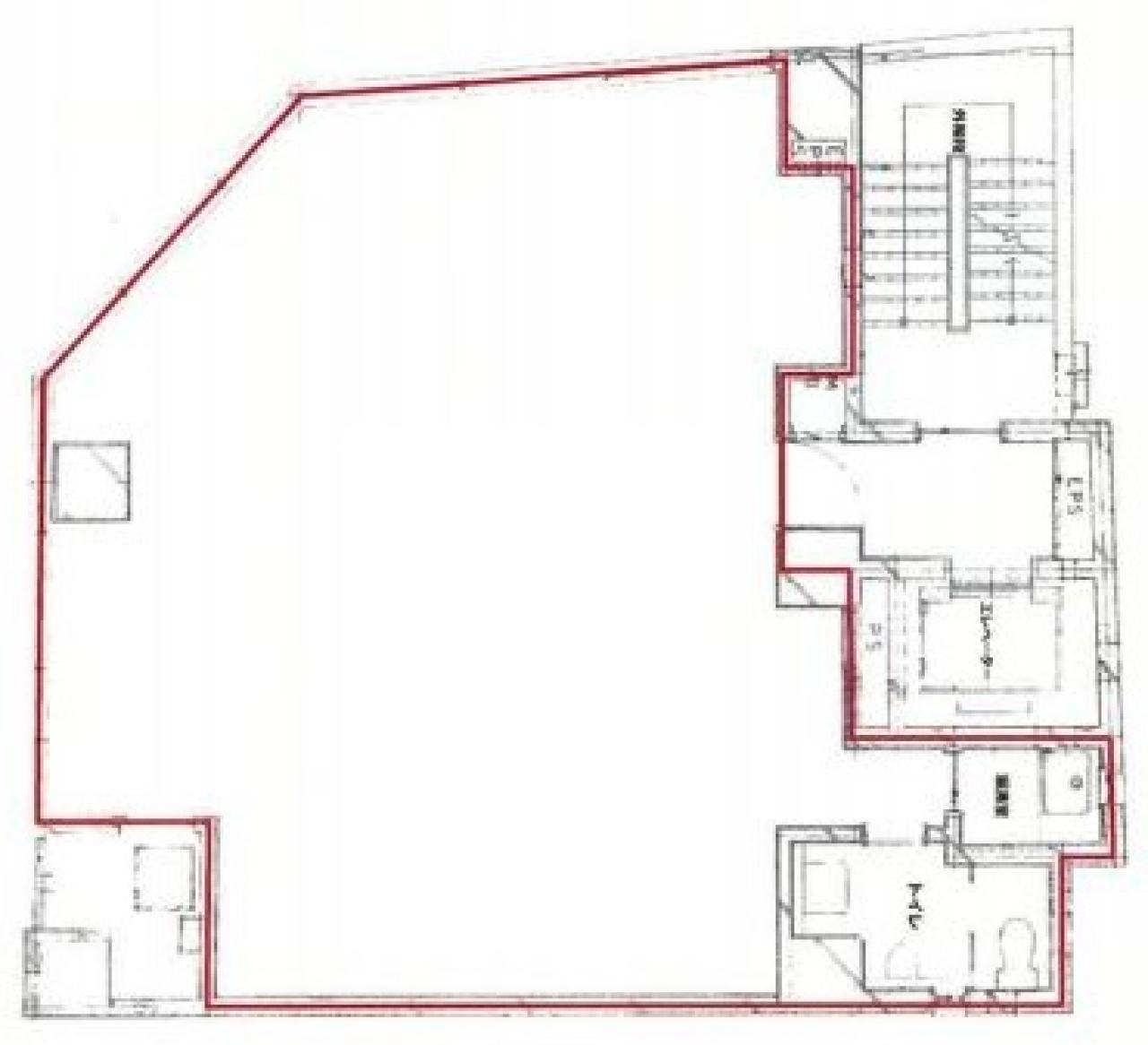
間取り図
-
近隣相場情報
築地2丁目(20~30坪)の相場
19869 円 (坪)
※ビルサク調べ
周辺地図
まるみビルは、中央区築地にある地上7階建ての賃貸事務所です。最寄駅は東京メトロ日比谷線の築地駅から徒歩1分、東京メトロ有楽町線の新富町駅から徒歩4分です。1985年6月竣工の鉄骨鉄筋コンクリート造です。設備としては、エレベーターが1基あります。トイレは室内男女共用です。空調は個別空調です。耐震設計となっている、最寄駅から近くて便利な中央区築地の賃貸オフィスです。
全フロア情報
更新日:2026年2月19日
| 階 | 面積 | 賃料 | 共益費 | 敷金 | 入居日 | お問合せ | お気に入り | |
|---|---|---|---|---|---|---|---|---|
|
3F
(A区画) |
10.1 坪 33.39 ㎡ |
142,000 円 14,059 円(坪) |
30,000 円 2,970 円(坪) |
1,420,000 円 10 ヶ月 |
即日 |
|
|
|
| 5F |
25.5 坪 84.3 ㎡ |
※現在空室情報はございません |
※現在空室情報は 確認する |
|||||
お問い合わせ
似た条件の物件はこちら
-
ビリーヴ新富
東京都中央区新富1-19-2
坪数:33.15 坪
坪単価:15,000 円(坪)
-
湊92ビル
東京都中央区湊3-11-7
坪数:15.36 坪
坪単価:12,000 円(坪)
-
NOVEL WORK TSUKIJI
東京都中央区築地2-6-7
坪数:34.43 坪
坪単価:24,000 円(坪)
-
Green Park銀座デ・プレ
東京都中央区築地2-11-12
坪数:16.72 坪
坪単価:23,636 円(坪)
-
SK東銀座ビル
東京都中央区築地2-12-6
坪数:16.32 坪
坪単価:10,000 円(坪)
-
BizSQUARE GINZA
東京都中央区新富1-1-7
坪数:31.55 坪
坪単価:26,000 円(坪)
-
八丁堀ウエストコート
東京都中央区湊1-9-8
坪数:25.33 坪
坪単価:10,659 円(坪)
-
高橋ビル
東京都中央区築地1-13-11
坪数:32.51 坪
坪単価:13,000 円(坪)
-
新富太陽ビル
東京都中央区新富2-2-13
坪数:19.71 坪
坪単価:17,000 円(坪)
-
CGA新富
東京都中央区新富1-15-4
坪数:20.94 坪
坪単価:19,000 円(坪)