西麻布2丁目戸建(物件No:43806761)
西麻布2丁目戸建は、港区西麻布にある地上3階建ての賃貸事務所です。最寄駅は都営大江戸線の六本木駅から徒歩10分、東京メトロ日比谷線の六本木駅から徒歩10分、東京メトロ日比谷線の広尾駅から徒歩10分です。1997年2月竣工の鉄骨鉄筋コンクリート造です。設備としては、空調は個別空調です。耐震設計となっている、複数駅利用可能なアクセスの良い港区西麻布の賃貸オフィスです。
-
物件情報
-
設備情報
- トイレ
- -
- 床
- -
- 空調
- 個別空調
- セキュリティ
- -
- 駐車場
- -
- 会議室
- -
- エレベーター
- -
- 天井高
- -
-
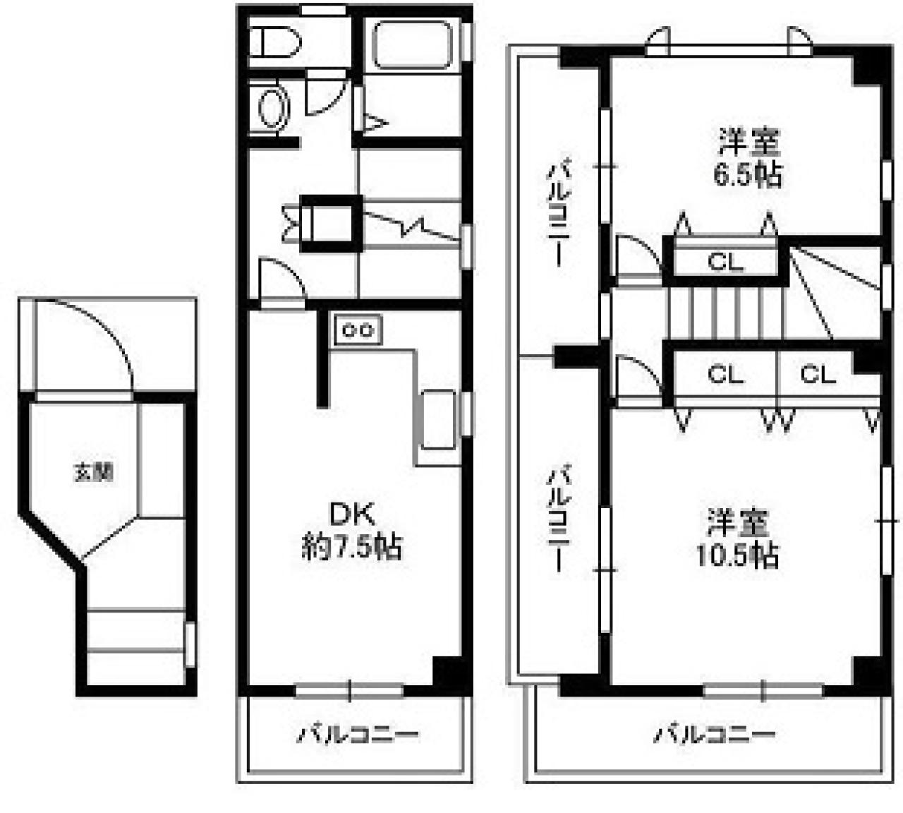
間取り図
-
近隣相場情報
西麻布3丁目(20~30坪)の相場
18454 円 (坪)
※ビルサク調べ
周辺施設情報
| コンビニ |
ローソン/ナチュラル 六本木ヒルズ/750m(徒歩9分) セブンイレブン/港区西麻布3丁目/400m(徒歩5分) |
|---|---|
| 郵便局/銀行 |
ローソン銀行/NL 港日赤通り共同出張所/[営業時間]24時間 [備考]ご利用可能な金融機関 当店のATM管理はローソン銀行です/750m(徒歩10分) みずほ銀行/ATM 六本木ヒルズ出張所/[営業時間] [ATM]平日 8:00~23:00 土曜日 8:00~22:00 日曜日 8:00~21:00 祝日・振替休日 曜日に準ずる 備考 *設置施設の休業日・休業時間帯は、一般のお客さまはご利用いただけません。通帳繰越機 設置なし/750m(徒歩10分) |
| 飲食店 |
レデ/18時00分~23時00分/60m(徒歩1分) エピス カネコ/18時00分~21時00分/50m(徒歩1分) |
| カフェ |
スターバックス/TSUTAYA TOKYO ROPPONGI店/[営業時間]7:00~24:00 [休業日]不定休 [備考]無線LAN:Softbank/850m(徒歩10分) 丸山珈琲/西麻布店/[営業時間]9:00~21:00(※モーニング9:00~10:00) [休業日]第1、第3月曜 ※定休日が祝日の場合は営業、翌日休み [駐車場]なし/200m(徒歩3分) |
| コインパーキング |
三井のリパーク/西麻布2丁目第9 [料金] 全日 08:00~00:00 15分/400円 全日 00:00~08:00 60分/100円 [最大料金] 【全日】最大料金入庫後6時間以内2600円 [台数]7 タイムズ駐車場/西麻布3丁目第2 [料金] [全日]00:00-00:00 30分 500円 [最大料金] [全日]駐車後6時間 最大料金2000円 [台数]2 |
周辺地図
西麻布2丁目戸建は、港区西麻布にある地上3階建ての賃貸事務所です。最寄駅は都営大江戸線の六本木駅から徒歩10分、東京メトロ日比谷線の六本木駅から徒歩10分、東京メトロ日比谷線の広尾駅から徒歩10分です。1997年2月竣工の鉄骨鉄筋コンクリート造です。設備としては、空調は個別空調です。耐震設計となっている、複数駅利用可能なアクセスの良い港区西麻布の賃貸オフィスです。
全フロア情報
更新日:2026年1月31日
| 階 | 面積 | 賃料 | 共益費 | 敷金 | 入居日 | お問合せ | お気に入り | |
|---|---|---|---|---|---|---|---|---|
| 1-3F |
20.41 坪 67.48 ㎡ |
※現在空室情報はございません |
※現在空室情報は 確認する |
|||||
お問い合わせ
似た条件の物件はこちら
-
センチュリオン六本木タワーⅡ
東京都港区西麻布3-6-1
坪数:21.76 坪
坪単価:20,000 円(坪)
-
タトルビル
東京都港区東麻布2-6-5
坪数:16.97 坪
坪単価:11,786 円(坪)
-
麻布エンパイアマンション
東京都港区西麻布4-11-28
坪数:17.61 坪
坪単価:12,803 円(坪)
-
六本木メイフラワーハイツ
東京都港区六本木4-1-2
坪数:25 坪
坪単価:30,000 円(坪)
-
飯倉カムフィーホームズ
東京都港区麻布台3-4-4
坪数:19.03 坪
坪単価:11,000 円(坪)
-
ランドコム麻布台
東京都港区麻布台1-9-14
坪数:23.49 坪
坪単価:13,000 円(坪)
-
秀和六本木レジデンス
東京都港区六本木7-17-22
坪数:18.14 坪
坪単価:16,262 円(坪)
-
プリンセスコート東麻布
東京都港区東麻布1-29-9
坪数:18.15 坪
坪単価:15,978 円(坪)
-
Kukai Terrace元麻布
東京都港区元麻布3-5-27
坪数:20.61 坪
坪単価:22,804 円(坪)
-
丸井ビル
東京都港区麻布十番2-5-13
坪数:22 坪
坪単価:15,000 円(坪)