サトケイビル(物件No:42376834)
サトケイビルは、東京都千代田区岩本町にある地上9階建ての賃貸事務所です。最寄駅はJR線の秋葉原駅から徒歩6分、東京メトロ日比谷線の秋葉原駅から徒歩4分、都営新宿線の岩本町駅から徒歩4分です。2022年12月竣工の鉄骨造です。設備としては、エレベーターが2基あり、駐車場もあり、セキュリティは機械警備です。トイレは室外男女別です。空調は個別空調です。床仕様はフリーアクセスです。天高は2700mmです。複数駅利用可能なアクセスの良い東京都千代田区岩本町の賃貸オフィスです。
| 階 | 面積 | 賃料 | 共益費 | 敷金 | 入居日 | お問合せ | お気に入り |
|---|---|---|---|---|---|---|---|
| 1F |
30.65 坪 101.32 ㎡ |
720,275 円 23,500 円(坪) |
107,298 円 3,500 円(坪) |
5,762,200 円 8 ヶ月 |
2026/04 |
|
|
| 階 | 面積 | 賃料 | 共益費 | 敷金 | 入居日 | お問合せ | お気に入り |
|---|---|---|---|---|---|---|---|
| 1F |
30.65 坪 101.32 ㎡ |
720,275 円 23,500 円(坪) |
107,298 円 3,500 円(坪) |
5,762,200 円 8 ヶ月 |
2026/04 |
|
|
-
物件情報
-
設備情報
- トイレ
- 室内男女別
- 床
- フリーアクセス
- 空調
- 個別空調
- セキュリティ
- 有
- 駐車場
- 有
- 会議室
- -
- エレベーター
- 2基
- 天井高
- 2700mm
-
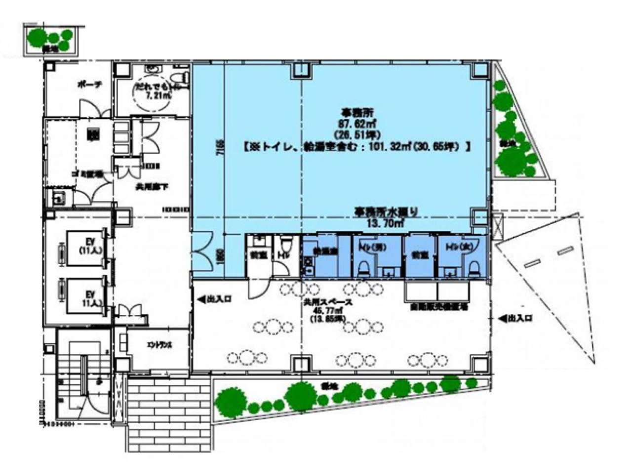
間取り図
-
近隣相場情報
岩本町3丁目(30~40坪)の相場
16500 円 (坪)
※ビルサク調べ
周辺施設情報
| コンビニ |
ローソン/岩本町三丁目/120m(徒歩1分) セブンイレブン/東神田2丁目/230m(徒歩3分) |
|---|---|
| 郵便局/銀行 |
イーネット/デイリーヤマザキ岩本町和泉橋/[営業時間]0:00~24:00/160m(徒歩2分) イオン銀行/ATM ミニストップ日本橋馬喰町2丁目店出張所/[営業時間]24時間/550m(徒歩7分) |
| 飲食店 |
アールティ/11時30分~15時00分、17時00分~23時00分/300m(徒歩4分) 焼肉の牛太 本陣 ヨドバシAkiba店/11時00分~23時00分/650m(徒歩8分) |
| カフェ |
ルノアール/秋葉原昭和通り口店/[営業時間]平日:7:30~23:00 土曜日:7:30~23:00 日祝日:8:00~22:00 [備考]禁煙席 37席 喫煙席(加熱式たばこ専用)44席/450m(徒歩6分) 12CO.BASE -秋葉原-/17時00分~23時00分/50m(徒歩1分) |
| コインパーキング |
タイムズ/秋葉原駅前 [料金] [月~金]通常料金 / 7:00~22:00 15分 330円 22:00~7:00 60分 110円 [土・日・祝]通常料金 / 7:00~22:00 15分 330円 22:00~7:00 60分 110円 [最大料金] [土・日・祝]当日1日最大料金2640円(24時迄) [台数]4 三井のリパーク/神田須田町2丁目第3 [料金] 全日 08:00~00:00 15分/400円 全日 00:00~08:00 60分/100円 [台数]2 |
周辺地図
サトケイビルは、東京都千代田区岩本町にある地上9階建ての賃貸事務所です。最寄駅はJR線の秋葉原駅から徒歩6分、東京メトロ日比谷線の秋葉原駅から徒歩4分、都営新宿線の岩本町駅から徒歩4分です。2022年12月竣工の鉄骨造です。設備としては、エレベーターが2基あり、駐車場もあり、セキュリティは機械警備です。トイレは室外男女別です。空調は個別空調です。床仕様はフリーアクセスです。天高は2700mmです。複数駅利用可能なアクセスの良い東京都千代田区岩本町の賃貸オフィスです。
全フロア情報
更新日:2026年2月18日
| 階 | 面積 | 賃料 | 共益費 | 敷金 | 入居日 | お問合せ | お気に入り | |
|---|---|---|---|---|---|---|---|---|
| 1F |
30.65 坪 101.32 ㎡ |
720,275 円 23,500 円(坪) |
107,298 円 3,500 円(坪) |
5,762,200 円 8 ヶ月 |
2026/04 |
|
|
|
| 2F |
58.1 坪 192.07 ㎡ |
※現在空室情報はございません |
※現在空室情報は 確認する |
|||||
| 3F |
58.1 坪 192.07 ㎡ |
※現在空室情報はございません |
※現在空室情報は 確認する |
|||||
| 4F |
58.1 坪 192.07 ㎡ |
※現在空室情報はございません |
※現在空室情報は 確認する |
|||||
| 5F |
58.1 坪 192.07 ㎡ |
※現在空室情報はございません |
※現在空室情報は 確認する |
|||||
| 6F |
58.1 坪 192.07 ㎡ |
※現在空室情報はございません |
※現在空室情報は 確認する |
|||||
| 7F |
58.1 坪 192.07 ㎡ |
※現在空室情報はございません |
※現在空室情報は 確認する |
|||||
| 8F |
58.1 坪 192.07 ㎡ |
※現在空室情報はございません |
※現在空室情報は 確認する |
|||||
| 9F |
58.1 坪 192.07 ㎡ |
※現在空室情報はございません |
※現在空室情報は 確認する |
|||||
| 未定F |
58.1 坪 192.07 ㎡ |
※現在空室情報はございません |
※現在空室情報は 確認する |
|||||
お問い合わせ
似た条件の物件はこちら
-
大手町ゲートビルディング
東京都千代田区内神田1-31-11
坪数:34.8 坪
坪単価:70,402 円(坪)
-
M&Cビル
東京都千代田区神田小川町2-3-13
坪数:34.42 坪
坪単価:15,500 円(坪)
-
新八光ビル
東京都千代田区内神田3-22-9
坪数:38.3 坪
坪単価:20,000 円(坪)
-
第八東誠ビル
東京都千代田区岩本町2-11-3
坪数:25.82 坪
坪単価:12,000 円(坪)
-
神田中沢ビル
東京都千代田区外神田6-14-12
坪数:28.5 坪
坪単価:10,526 円(坪)
-
KSKビル
東京都千代田区外神田5-1-15
坪数:39.4 坪
坪単価:16,000 円(坪)
-
新東ビル
東京都千代田区内神田2-8-3
坪数:21.5 坪
坪単価:12,000 円(坪)
-
神田乗物町ビル
東京都千代田区神田北乗物町2
坪数:20.88 坪
坪単価:12,973 円(坪)
-
いちご大手町ノースビル
東京都千代田区内神田1-15-7
坪数:31.89 坪
坪単価:29,000 円(坪)
-
ism神田
東京都千代田区神田東松下町48
坪数:31.72 坪
坪単価:16,000 円(坪)
関連エリアから探す
- 内神田
- 神田淡路町
- 神田小川町
- 神田鍛冶町
- 神田須田町
- 神田駿河台
- 神田多町
- 神田司町
- 神田錦町
- 神田美土代町
- 岩本町
- 鍛冶町
- 神田岩本町
- 神田北乗物町
- 神田紺屋町
- 神田富山町
- 神田西福田町
- 神田東松下町
- 神田東紺屋町
- 神田美倉町
- 東神田
- 神田相生町
- 神田和泉町
- 神田佐久間町
- 神田佐久間河岸
- 神田練塀町
- 神田花岡町
- 神田松永町
- 外神田
- 神田平河町