KDSビル(物件No:42048336)
KDSビルは港区浜松町にある地上5階建ての賃貸事務所です。最寄駅はJR線の浜松町駅から徒歩2分、都営浅草線の大門駅から徒歩3分、都営大江戸線の大門駅から徒歩1分です。1996年3月竣工の鉄筋コンクリート造です。設備としては、エレベーターが1基あります。セキュリティは機械警備です。トイレは室外です。空調は個別空調です。床仕様はフリーアクセスです。天高は2440mmです。耐震設計となっている、複数路線利用可能なアクセスの良い港区浜松町の賃貸オフィスです。
-
物件情報
-
設備情報
- トイレ
- 室外
- 床
- フリーアクセス
- 空調
- 個別空調
- セキュリティ
- 有
- 駐車場
- 無
- 会議室
- -
- エレベーター
- 1基
- 天井高
- 2430mm
-
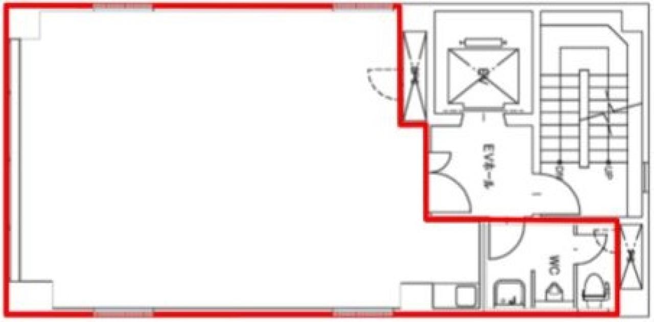
間取り図
-
近隣相場情報
浜松町1丁目(20坪以下)の相場
19360 円 (坪)
※ビルサク調べ
周辺施設情報
| コンビニ |
ローソン/文化放送メディアプラス/83m(徒歩1分) セブンイレブン/港区海岸1丁目/280m(徒歩4分) |
|---|---|
| 郵便局/銀行 |
ローソン銀行/ローソン 文化放送メディアプラス共同出張所/[営業時間]24時間 [取扱]海外発行カード対応、視覚障害者対応 [備考]ご利用可能な金融機関 当店のATM管理はローソン銀行です/83m(徒歩1分) みずほ銀行/ATM 都営大江戸線大門駅出張所/[営業時間]ATM 平日 /Monday - Friday 5:00~24:00 土曜日/Saturday 5:00~22:00 日曜日/Sunday 8:00~21:00 祝日・振替休日 /Public Holidays 曜日に準ずる 備考 *月曜日の5:00~7:00はご利用いただけません。 */170m(徒歩2分) |
| 飲食店 |
Restaurant&Bar es/[月~金]11:30~24:00 ランチ 11:30~14:30(L.O.14:00) ディナー 17:00~24:0/35m(徒歩1分) デニーズ 浜松町店/6時00分~4時00分/74m(徒歩1分) |
| カフェ |
タリーズ/浜松町駅北口店/[営業時間]平日:7:30~22:00 土 :9:00~20:00 日祝:9:00~20:00 [備考]Tully's Wi-Fi/53m(徒歩1分) サンマルクカフェ/浜松町貿易センタービル店/[営業時間]7:00~23:00 [休業日]無 [備考]87席/280m(徒歩3分) |
| コインパーキング |
コインパーク/浜松町第3 [料金] 【 全日 】 ■通常料金 【 00:00~24:00 】 12分/400円 [最大料金] 【 全日 】 ■最大料金 【 22:00~7:00 】 500円 [台数][車: 5台] タイムズ駐車場/日本生命浜松町クレアタワー [料金] [全日]通常料金 / 00:00-00:00 30分 400円 [最大料金] [全日]駐車後24時間 最大料金3000円 [台数]93 |
周辺地図
KDSビルは港区浜松町にある地上5階建ての賃貸事務所です。最寄駅はJR線の浜松町駅から徒歩2分、都営浅草線の大門駅から徒歩3分、都営大江戸線の大門駅から徒歩1分です。1996年3月竣工の鉄筋コンクリート造です。設備としては、エレベーターが1基あります。セキュリティは機械警備です。トイレは室外です。空調は個別空調です。床仕様はフリーアクセスです。天高は2440mmです。耐震設計となっている、複数路線利用可能なアクセスの良い港区浜松町の賃貸オフィスです。
全フロア情報
更新日:2023年10月12日
| 階 | 面積 | 賃料 | 共益費 | 敷金 | 入居日 | お問合せ | お気に入り | |
|---|---|---|---|---|---|---|---|---|
| 1F |
11.28 坪 37.29 ㎡ |
※現在空室情報はございません |
※現在空室情報は 確認する |
|||||
| 2F |
17.42 坪 57.59 ㎡ |
※現在空室情報はございません |
※現在空室情報は 確認する |
|||||
| 3F |
17.24 坪 56.99 ㎡ |
※現在空室情報はございません |
※現在空室情報は 確認する |
|||||
お問い合わせ
似た条件の物件はこちら
-
専売ビル
東京都港区芝5-26-30
坪数:12.33 坪
坪単価:19,981 円(坪)
-
マリンクス・タワー
東京都港区海岸1-9-11
坪数:17.73 坪
坪単価:16,000 円(坪)
-
武藤ビル
東京都港区芝浦3-11-9
坪数:21.35 坪
坪単価:12,000 円(坪)
-
芝大門1丁目ビル
東京都港区芝大門1-6-4
坪数:12.87 坪
坪単価:17,094 円(坪)
-
グランディックビル
東京都港区芝5-14-14
坪数:16.5 坪
坪単価:18,182 円(坪)
-
My Maison
東京都港区芝3-16-9
坪数:15.13 坪
坪単価:16,530 円(坪)
-
山口ビル
東京都港区芝公園1-7-7
坪数:22 坪
坪単価:11,364 円(坪)
-
YKホープ芝大門
東京都港区芝大門1-3-9
坪数:15.56 坪
坪単価:12,211 円(坪)
-
亀田ビル
東京都港区浜松町2-7-6
坪数:12.02 坪
坪単価:17,471 円(坪)
-
CROSS三田
東京都港区三田3-14-13
坪数:20.25 坪
坪単価:15,012 円(坪)