EDGE小伝馬町ビル(物件No:41986103)
EDGE小伝馬町ビルは、中央区日本橋小伝馬町にある貸事務所物件です。最寄り駅は東京メトロ日比谷線小伝馬町駅、都営新宿線馬喰横山駅、JR総武線馬喰町駅です。1983年竣工で基準階が125.90坪の賃貸オフィスビルです。床はOAフロアで、天井の高さは2500mm。トイレは室外男女別で、空調は個別空調です。エレベーターは2基あり、セキュリティは機械警備となっています。駐車場が利用可能です。複数路線利用可能で交通アクセスの良い、中央区日本橋小伝馬町の貸事務所です。
| 階 | 面積 | 賃料 | 共益費 | 敷金 | 入居日 | お問合せ | お気に入り |
|---|---|---|---|---|---|---|---|
|
5F
(501B区画) |
48.64 坪 160.79 ㎡ |
相談 |
込 |
相談 |
2026/01/01 |
|
|
| 階 | 面積 | 賃料 | 共益費 | 敷金 | 入居日 | お問合せ | お気に入り |
|---|---|---|---|---|---|---|---|
|
5F
(501B区画) |
48.64 坪 160.79 ㎡ |
相談 |
込 |
相談 |
2026/01/01 |
|
|
-
物件情報
-
設備情報
- トイレ
- 室外男女別
- 床
- フリーアクセス
- 空調
- 個別空調
- セキュリティ
- 有
- 駐車場
- 有
- 会議室
- -
- エレベーター
- 2基
- 天井高
- -
-
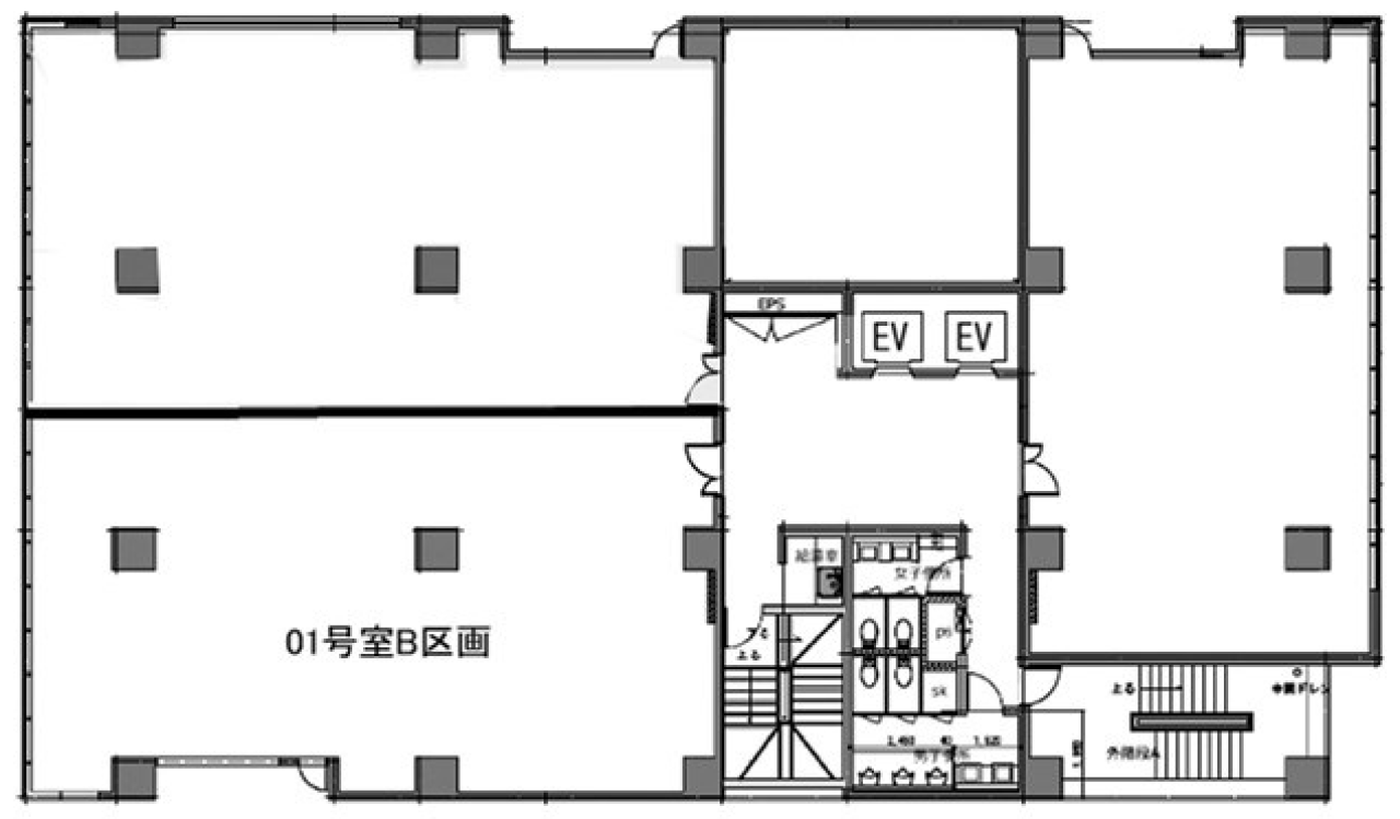
間取り図
-
近隣相場情報
日本橋小伝馬町15丁目(40~50坪)の相場
19851 円 (坪)
※ビルサク調べ
周辺施設情報
| コンビニ |
セブンイレブン/日本橋小伝馬町/140m(徒歩2分) ファミリーマート/小伝馬町大門通り店/110m(徒歩2分) |
|---|---|
| 郵便局/銀行 |
郵便局/小伝馬町/[駐車場]なし/130m(徒歩2分) セブン銀行/日本橋小伝馬町店/[営業時間]24時間営業/140m(徒歩2分) |
| 飲食店 |
Jack 37 Burger/11時30分~18時00分/120m(徒歩1分) 寿司富/11時30分~14時00分 17時00分~22時00分/100m(徒歩1分) |
| カフェ |
ベローチェ/小伝馬町店/[営業時間]7:00~21:00 土・日・祝7:00~19:00/140m(徒歩2分) ドトール/小伝馬町店/[営業時間]平日:7:00~18:00 土曜日:- 日 祝:-?/140m(徒歩2分) |
| コインパーキング |
GSパーク/日本橋小伝馬町 [料金] 【月~土】時間割料金 8:00~20:00 15分 300円 20:00~8:00 60分 100円 【日祝】時間割料金 8:00~20:00 30分 200円 20:00~8:00 60分 100円 [最大料金] 【月~土】 最大料金 6時間最大 2,000円 【日祝】 最大料金 6時間最大 900円 [台数]4台 タイムズ駐車場/日本橋小伝馬町第2 [料金] [月~土]通常料金 / 0:00~0:00 12分 330円 [日・祝]通常料金 / 0:00~0:00 12分 330円 [最大料金] [月~土]8:00~19:00 最大料金3740円 19:00~8:00 最大料金330円 [日・祝]8:00~19:00 最大料金1100円 19:00~8:00 最大料金330円 [台数]1 |
周辺地図
EDGE小伝馬町ビルは、中央区日本橋小伝馬町にある貸事務所物件です。最寄り駅は東京メトロ日比谷線小伝馬町駅、都営新宿線馬喰横山駅、JR総武線馬喰町駅です。1983年竣工で基準階が125.90坪の賃貸オフィスビルです。床はOAフロアで、天井の高さは2500mm。トイレは室外男女別で、空調は個別空調です。エレベーターは2基あり、セキュリティは機械警備となっています。駐車場が利用可能です。複数路線利用可能で交通アクセスの良い、中央区日本橋小伝馬町の貸事務所です。
全フロア情報
更新日:2025年11月25日
| 階 | 面積 | 賃料 | 共益費 | 敷金 | 入居日 | お問合せ | お気に入り | |
|---|---|---|---|---|---|---|---|---|
|
2F
(1区画) |
94.07 坪 310.97 ㎡ |
※現在空室情報はございません |
※現在空室情報は 確認する |
|||||
|
2F
(1+2区画) |
134.94 坪 446.08 ㎡ |
※現在空室情報はございません |
※現在空室情報は 確認する |
|||||
|
2F
(2区画) |
40.87 坪 135.11 ㎡ |
※現在空室情報はございません |
※現在空室情報は 確認する |
|||||
|
4F
(1区画) |
97.72 坪 323.04 ㎡ |
※現在空室情報はございません |
※現在空室情報は 確認する |
|||||
|
4F
(1+2区画) |
138.42 坪 457.59 ㎡ |
※現在空室情報はございません |
※現在空室情報は 確認する |
|||||
|
4F
(2区画) |
40.7 坪 134.55 ㎡ |
※現在空室情報はございません |
※現在空室情報は 確認する |
|||||
|
5F
(501A区画) |
48.64 坪 160.79 ㎡ |
相談 |
込 |
相談 |
2026/01/01 |
|
|
|
|
5F
(501B区画) |
48.64 坪 160.79 ㎡ |
相談 |
込 |
相談 |
2026/01/01 |
|
|
|
|
5F
(503区画) |
40.31 坪 133.26 ㎡ |
※現在空室情報はございません |
※現在空室情報は 確認する |
|||||
| 6F |
138.05 坪 456.36 ㎡ |
※現在空室情報はございません |
※現在空室情報は 確認する |
|||||
|
6F
(601区画) |
97.54 坪 322.45 ㎡ |
※現在空室情報はございません |
※現在空室情報は 確認する |
|||||
|
6F
(602区画) |
40.5 坪 133.88 ㎡ |
※現在空室情報はございません |
※現在空室情報は 確認する |
|||||
| 7F |
138.05 坪 456.36 ㎡ |
※現在空室情報はございません |
※現在空室情報は 確認する |
|||||
|
7F
(701区画) |
97.54 坪 322.45 ㎡ |
※現在空室情報はございません |
※現在空室情報は 確認する |
|||||
|
7F
(701A区画) |
48.82 坪 161.39 ㎡ |
976,400 円 20,000 円(坪) |
込 |
相談 |
即日 |
|
|
|
|
7F
(701B区画) |
48.82 坪 161.39 ㎡ |
※現在空室情報はございません |
※現在空室情報は 確認する |
|||||
|
7F
(702区画) |
40.7 坪 134.55 ㎡ |
※現在空室情報はございません |
※現在空室情報は 確認する |
|||||
|
8F
(1区画) |
97.72 坪 323.04 ㎡ |
※現在空室情報はございません |
※現在空室情報は 確認する |
|||||
|
8F
(1+2区画) |
138.42 坪 457.59 ㎡ |
※現在空室情報はございません |
※現在空室情報は 確認する |
|||||
|
8F
(2区画) |
48.72 坪 161.06 ㎡ |
※現在空室情報はございません |
※現在空室情報は 確認する |
|||||
|
8F
(801B区画) |
48.72 坪 161.06 ㎡ |
※現在空室情報はございません |
※現在空室情報は 確認する |
|||||
| 9F |
40.7 坪 134.55 ㎡ |
※現在空室情報はございません |
※現在空室情報は 確認する |
|||||
|
9F
(1区画) |
40.48 坪 133.82 ㎡ |
※現在空室情報はございません |
※現在空室情報は 確認する |
|||||
お問い合わせ
似た条件の物件はこちら
-
オーキッドプレイス蛎殻町ビル
東京都中央区日本橋蛎殻町1-4-1
坪数:51.15 坪
坪単価:15,000 円(坪)
-
Ikigai Bashi ビル
東京都中央区日本橋大伝馬町1-7
坪数:38.27 坪
坪単価:16,000 円(坪)
-
Grandir 日本橋小伝馬町
東京都中央区日本橋小伝馬町18-1
坪数:44.34 坪
坪単価:24,000 円(坪)
-
R.core日本橋人形町ビル
東京都中央区日本橋富沢町7-13
坪数:55.82 坪
坪単価:23,000 円(坪)
-
アライズ第2ビル
東京都中央区日本橋箱崎町5-4
坪数:52.8 坪
坪単価:11,000 円(坪)
-
日本橋浜町ビル
東京都中央区日本橋浜町2-28-1
坪数:46 坪
坪単価:12,000 円(坪)
-
ラ・ベール日本橋
東京都中央区日本橋小網町12-5
坪数:50.43 坪
坪単価:17,000 円(坪)
-
(仮称)びいんず馬喰町駅前ビル
東京都中央区日本橋馬喰町1-11-2
坪数:42.19 坪
坪単価:18,962 円(坪)
-
近仁ビル
東京都中央区日本橋小網町3-17
坪数:48.05 坪
坪単価:14,152 円(坪)
-
カズキビル
東京都中央区日本橋浜町2-36-8
坪数:48.12 坪
坪単価:18,000 円(坪)
関連エリアから探す
- 日本橋大伝馬町
- 日本橋蛎殻町
- 日本橋小網町
- 日本橋小伝馬町
- 日本橋小舟町
- 日本橋富沢町
- 日本橋人形町
- 日本橋箱崎町
- 日本橋堀留町
- 日本橋中洲
- 日本橋馬喰町
- 日本橋浜町
- 日本橋久松町
- 日本橋横山町
- 東日本橋