アイランドビルディング(物件No:41985139)
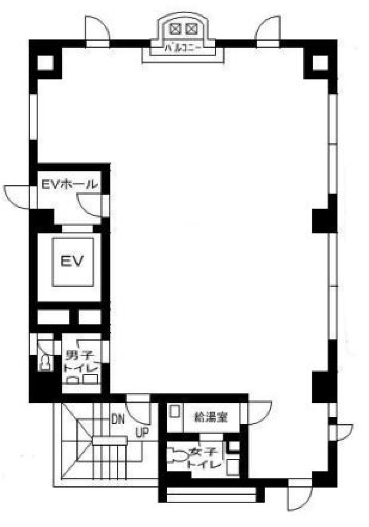
アイランドビルディングは台東区蔵前にある地上10階建ての賃貸事務所です。最寄駅はJR中央・総武線の浅草橋駅から徒歩5分、都営大江戸線の蔵前駅から徒歩4分、都営浅草線の蔵前駅から徒歩1分です。1992年12月竣工の基準階面積が30.73坪の鉄骨鉄筋コンクリート造です。設備としては、エレベーターが1基あります。トイレは室内男女別です。空調は個別空調です。耐震設計となっている、最寄駅から近くて便利な台東区蔵前の賃貸オフィスです。
-
物件情報
-
設備情報
- トイレ
- 室内男女別
- 床
- -
- 空調
- -
- セキュリティ
- 無
- 駐車場
- 無
- 会議室
- -
- エレベーター
- 1基
- 天井高
- -
-
間取り図
-
近隣相場情報
蔵前1丁目(30~40坪)の相場
13179 円 (坪)
※ビルサク調べ
周辺地図
アイランドビルディングは台東区蔵前にある地上10階建ての賃貸事務所です。最寄駅はJR中央・総武線の浅草橋駅から徒歩5分、都営大江戸線の蔵前駅から徒歩4分、都営浅草線の蔵前駅から徒歩1分です。1992年12月竣工の基準階面積が30.73坪の鉄骨鉄筋コンクリート造です。設備としては、エレベーターが1基あります。トイレは室内男女別です。空調は個別空調です。耐震設計となっている、最寄駅から近くて便利な台東区蔵前の賃貸オフィスです。
全フロア情報
更新日:2026年2月20日
| 階 | 面積 | 賃料 | 共益費 | 敷金 | 入居日 | お問合せ | お気に入り | |
|---|---|---|---|---|---|---|---|---|
| 2F |
30.73 坪 101.59 ㎡ |
※現在空室情報はございません |
※現在空室情報は 確認する |
|||||
| 3F |
30.73 坪 101.59 ㎡ |
※現在空室情報はございません |
※現在空室情報は 確認する |
|||||
| 4F |
30.73 坪 101.59 ㎡ |
※現在空室情報はございません |
※現在空室情報は 確認する |
|||||
| 5F |
30.73 坪 101.59 ㎡ |
※現在空室情報はございません |
※現在空室情報は 確認する |
|||||
| 6F |
30.73 坪 101.59 ㎡ |
※現在空室情報はございません |
※現在空室情報は 確認する |
|||||
| 7F |
30.73 坪 101.59 ㎡ |
276,570 円 9,000 円(坪) |
61,460 円 2,000 円(坪) |
2,212,560 円 8 ヶ月 |
2026/4 |
|
|
|
お問い合わせ
似た条件の物件はこちら
-
岡安ビル
東京都台東区蔵前3-12-8
坪数:23.86 坪
坪単価:11,000 円(坪)
-
NRビル
東京都台東区蔵前3-13-13
坪数:30.97 坪
坪単価:14,530 円(坪)
-
大手山ビル
東京都台東区柳橋1-7-7
坪数:28.90 坪
坪単価:10,381 円(坪)
-
プルミエⅠ
東京都台東区柳橋2-18-13
坪数:21.24 坪
坪単価:12,712 円(坪)
-
風間ビル
東京都台東区柳橋1-4-2
坪数:32.03 坪
坪単価:12,500 円(坪)
-
浅草橋STビル
東京都台東区浅草橋1-13-6
坪数:36.43 坪
坪単価:15,000 円(坪)
-
浅草4丁目店舗
東京都台東区浅草4-33-7
坪数:22.1 坪
坪単価:11,312 円(坪)
-
サンポービル
東京都台東区元浅草1-19-9
坪数:23.88 坪
坪単価:9,000 円(坪)
-
コーポ花川戸
東京都台東区花川戸1-2-8
坪数:37 坪
坪単価:22,108 円(坪)
-
村山ビル
東京都台東区柳橋2-2-1
坪数:32.78 坪
坪単価:11,000 円(坪)