アイランドビルディング(物件No:41985139)
アイランドビルディングは台東区蔵前にある地上10階建ての賃貸事務所です。最寄駅はJR中央・総武線の浅草橋駅から徒歩5分、都営大江戸線の蔵前駅から徒歩4分、都営浅草線の蔵前駅から徒歩1分です。1992年12月竣工の基準階面積が30.73坪の鉄骨鉄筋コンクリート造です。設備としては、エレベーターが1基あります。トイレは室内男女別です。空調は個別空調です。耐震設計となっている、最寄駅から近くて便利な台東区蔵前の賃貸オフィスです。
-
物件情報
-
設備情報
- トイレ
- 室内男女別
- 床
- -
- 空調
- 個別空調
- セキュリティ
- 無
- 駐車場
- 無
- 会議室
- -
- エレベーター
- 1基
- 天井高
- -
-
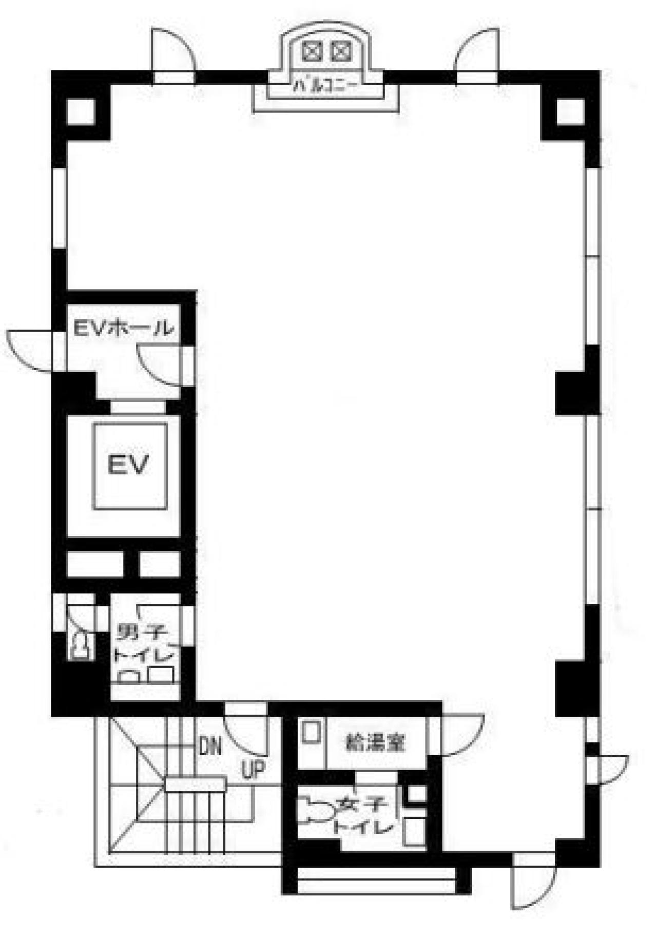
間取り図
-
近隣相場情報
蔵前1丁目(30~40坪)の相場
14772 円 (坪)
※ビルサク調べ
周辺地図
アイランドビルディングは台東区蔵前にある地上10階建ての賃貸事務所です。最寄駅はJR中央・総武線の浅草橋駅から徒歩5分、都営大江戸線の蔵前駅から徒歩4分、都営浅草線の蔵前駅から徒歩1分です。1992年12月竣工の基準階面積が30.73坪の鉄骨鉄筋コンクリート造です。設備としては、エレベーターが1基あります。トイレは室内男女別です。空調は個別空調です。耐震設計となっている、最寄駅から近くて便利な台東区蔵前の賃貸オフィスです。
全フロア情報
更新日:2020年2月5日
| 階 | 面積 | 賃料 | 共益費 | 敷金 | 入居日 | お問合せ | お気に入り | |
|---|---|---|---|---|---|---|---|---|
| 2F |
30.73 坪 101.59 ㎡ |
※現在空室情報はございません |
※現在空室情報は 確認する |
|||||
| 3F |
30.73 坪 101.59 ㎡ |
※現在空室情報はございません |
※現在空室情報は 確認する |
|||||
| 4F |
30.73 坪 101.59 ㎡ |
※現在空室情報はございません |
※現在空室情報は 確認する |
|||||
| 5F |
30.73 坪 101.59 ㎡ |
※現在空室情報はございません |
※現在空室情報は 確認する |
|||||
| 6F |
30.73 坪 101.59 ㎡ |
※現在空室情報はございません |
※現在空室情報は 確認する |
|||||
| 7F |
30.73 坪 101.59 ㎡ |
※現在空室情報はございません |
※現在空室情報は 確認する |
|||||
お問い合わせ
似た条件の物件はこちら
-
NRビル
東京都台東区蔵前3-13-13
坪数:30.97 坪
坪単価:14,530 円(坪)
-
大手山ビル
東京都台東区柳橋1-7-7
坪数:28.90 坪
坪単価:10,381 円(坪)
-
花一店舗
東京都台東区花川戸1-10-16
坪数:24.55 坪
坪単価:14,664 円(坪)
-
小沢ビル
東京都台東区浅草橋2-20-11
坪数:34 坪
坪単価:11,000 円(坪)
-
銀座ビル
東京都台東区浅草橋3-1-2
坪数:22.66 坪
坪単価:8,000 円(坪)
-
浅草橋STビル
東京都台東区浅草橋1-13-6
坪数:36.43 坪
坪単価:15,000 円(坪)
-
浅草4丁目店舗
東京都台東区浅草4-33-7
坪数:22.1 坪
坪単価:11,312 円(坪)
-
清水ビル
東京都台東区浅草橋1-1-14
坪数:23.11 坪
坪単価:12,000 円(坪)
-
中山ビル
東京都台東区鳥越1-30-8
坪数:22.17 坪
坪単価:7,442 円(坪)
-
コーポ花川戸
東京都台東区花川戸1-2-8
坪数:37 坪
坪単価:22,108 円(坪)