中山ビル(物件No:41983125)
中山ビルは、港区南青山にある貸事務所物件です。最寄り駅は東京メトロ銀座線、半蔵門線表参道駅、青山一丁目駅、東京メトロ千代田線乃木坂駅、東京メトロ銀座線の外苑前駅です。1974年竣工で、基準階が73坪の賃貸オフィスビルです。床はOAフロアとなっています。空調は個別空調でトイレは男女別です。駐車場があります。複数路線利用可能な、アクセスの良い港区南青山の貸事務所です。
-
物件情報
-
設備情報
- トイレ
- 男女別
- 床
- フリーアクセス
- 空調
- 個別空調
- セキュリティ
- 有
- 駐車場
- 有
- 会議室
- -
- エレベーター
- -
- 天井高
- -
-
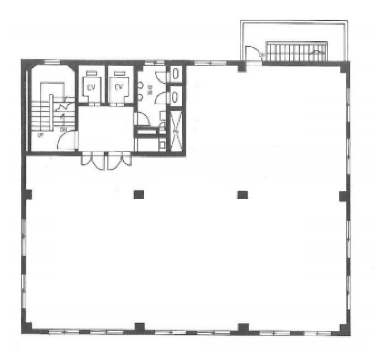
間取り図
-
近隣相場情報
南青山3丁目(50~100坪)の相場
23077 円 (坪)
※ビルサク調べ
周辺施設情報
コンビニ |
ローソン/北青山三丁目/270m(徒歩4分) ファミリーマート/南青山骨董通り店/400m(徒歩5分) |
---|---|
郵便局/銀行 |
三井住友銀行/青山支店/[営業時間] [窓口]平日 9:00~15:00 土曜 - 日曜 - [ATM]平日 9:00~15:00 土曜 - 日曜 -/270m(徒歩4分) イーネット/ファミリーマート南青山六丁目/[営業時間]0:00~24:00/650m(徒歩8分) |
飲食店 |
みよた 青山本店/10時00分~22時00分/290m(徒歩3分) しまだ/18時00分~1時45分/230m(徒歩3分) |
カフェ |
CARAVAN COFFEE/紀ノ国屋 バールイルプリマリオ/[営業時間]9:30 - 21:00/400m(徒歩5分) スターバックス/アクセス表参道店/[営業時間]月~金:7:00~22:30/土:8:00~22:30/日祝:8:00~22:00 [休業日]不定休 [備考]無線LAN:STARBUCKS/docomo/au/Wi2 300/250m(徒歩4分) |
コインパーキング |
三井のリパーク/北青山3丁目第5 [料金] 全日 08:00~00:00 12分/300円 全日 00:00~08:00 30分/100円 [最大料金] 【全日】0:00~8:00以内 最大料金600円 [台数]3 タイムズ駐車場/南青山3丁目第5 [料金] [全日]0:00~0:00 12分 440円 [最大料金] [全日]駐車後24時間 最大料金3960円 [全日]18:00~8:00 最大料金1100円 [台数]31 |
周辺地図
中山ビルは、港区南青山にある貸事務所物件です。最寄り駅は東京メトロ銀座線、半蔵門線表参道駅、青山一丁目駅、東京メトロ千代田線乃木坂駅、東京メトロ銀座線の外苑前駅です。1974年竣工で、基準階が73坪の賃貸オフィスビルです。床はOAフロアとなっています。空調は個別空調でトイレは男女別です。駐車場があります。複数路線利用可能な、アクセスの良い港区南青山の貸事務所です。
全フロア情報
更新日:2021年11月1日
階 | 面積 | 賃料 | 共益費 | 敷金 | 入居日 | お問合せ | お気に入り | |
---|---|---|---|---|---|---|---|---|
2F |
68 坪 224.79 ㎡ |
※現在空室情報はございません |
※現在空室情報は 確認する |
|||||
4F
(1区画) |
31.30 坪 103.47 ㎡ |
※現在空室情報はございません |
※現在空室情報は 確認する |
|||||
5F |
68.80 坪 227.44 ㎡ |
※現在空室情報はございません |
※現在空室情報は 確認する |
お問い合わせ
似た条件の物件はこちら
-
NH青山ビル
東京都港区北青山3-2-5
坪数:67.1 坪
坪単価:22,000 円(坪)
-
GOODWILL青山
東京都港区南青山2-4-16
坪数:59.42 坪
坪単価:23,000 円(坪)
-
リビエラ南青山ビル
東京都港区南青山3-3-3
坪数:67.32 坪
坪単価:30,000 円(坪)
-
神宮外苑ビル
東京都港区北青山2-7-25
坪数:73.69 坪
坪単価:19,000 円(坪)
-
青山FSビル
東京都港区南青山3-4-16
坪数:53.46 坪
坪単価:27,123 円(坪)
-
南青山第2韮澤ビル
東京都港区南青山3-5-2
坪数:53.4 坪
坪単価:15,500 円(坪)
-
青山KYビル
東京都港区北青山2-12-13
坪数:54.61 坪
坪単価:19,000 円(坪)
-
青山SGKビル
東京都港区南青山2-7-6
坪数:57.63 坪
坪単価:16,500 円(坪)
-
マトリス
東京都港区南青山2-13-7
坪数:62.2 坪
坪単価:22,990 円(坪)
-
Victory Aoyama
東京都港区南青山6-8-11
坪数:71.67 坪
坪単価:36,000 円(坪)