シバ・パークビル(物件No:41888144)
シバ・パークビルは港区芝大門にある地上6階建ての賃貸事務所です。最寄駅は都営浅草線の大門駅から徒歩3分、都営大江戸線の大門駅から徒歩3分です。1974年12月竣工の鉄骨造です。設備としては、エレベーターが1基あります。空調は個別空調です。複数駅利用可能なアクセスの良い港区芝大門の賃貸オフィスです。
-
物件情報
-
設備情報
- トイレ
- 男女共用
- 床
- タイルカーペット
- 空調
- 個別空調
- セキュリティ
- -
- 駐車場
- -
- 会議室
- -
- エレベーター
- 1基
- 天井高
- -
-
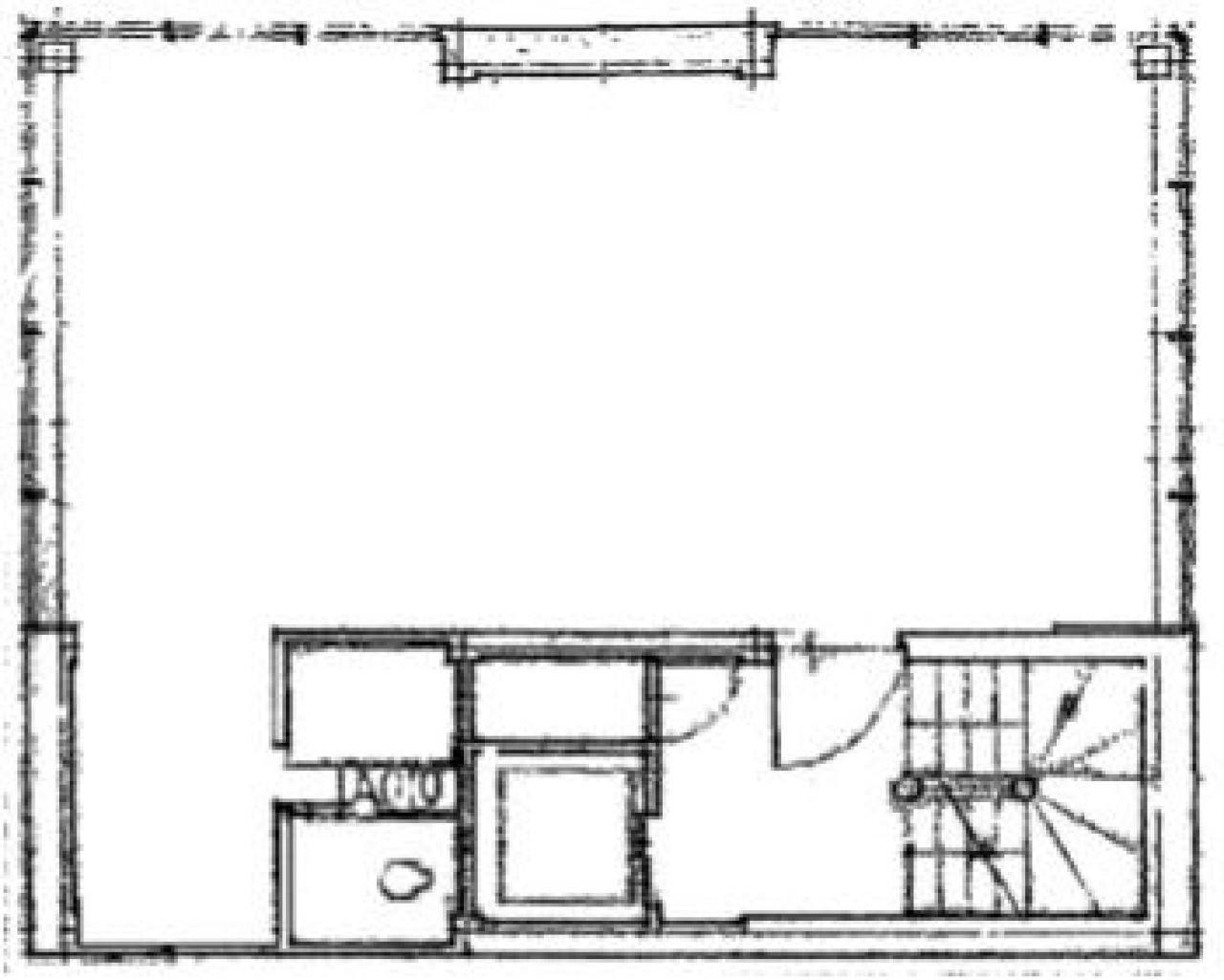
間取り図
-
近隣相場情報
芝大門1丁目(20坪以下)の相場
17810 円 (坪)
※ビルサク調べ
周辺施設情報
| コンビニ |
ローソン/ナチュラル 芝大門一丁目/180m(徒歩2分) セブンイレブン/浜松町1丁目北/350m(徒歩5分) |
|---|---|
| 郵便局/銀行 |
ローソン銀行/浜松町一丁目共同出張所/[営業時間]24時間 [備考]ご利用可能な金融機関 当店のATM管理はローソン銀行です/400m(徒歩6分) 郵便局/ATM ファミリーマート芝公園一丁目店内出張所/[ATM]平日0:05~23:55、土曜0:05~23:55、日曜0:05~23:55/98m(徒歩1分) |
| 飲食店 |
カルネ バル カテテ大門店/11時00分~15時00分、17時30分~0時00分/150m(徒歩2分) 御成門はる/18:00〜23:00/250m(徒歩3分) |
| カフェ |
Lobby/17時00分~0時00分/400m(徒歩6分) コーヒー若野/~¥999/250m(徒歩3分) |
| コインパーキング |
タイムズ駐車場/東京美術倶楽部タワー [料金] [月~金]通常料金 / 00:00-00:00 15分 200円 [土・日・祝]通常料金 / 00:00-00:00 15分 200円 [最大料金] [月~金]当日1日最大料金1200円(24時迄) [土・日・祝]当日1日最大料金800円(24時迄) [台数]44 タイムズ駐車場/芝大門第6 [料金] [月~土]通常料金 / 08:00-00:00 10分 300円 00:00-08:00 60分 100円 [日・祝]通常料金 / 08:00-00:00 15分 400円 00:00-08:00 60分 100円 [最大料金] [日・祝]当日1日最大料金2800円(24時迄) [台数]6 |
周辺地図
シバ・パークビルは港区芝大門にある地上6階建ての賃貸事務所です。最寄駅は都営浅草線の大門駅から徒歩3分、都営大江戸線の大門駅から徒歩3分です。1974年12月竣工の鉄骨造です。設備としては、エレベーターが1基あります。空調は個別空調です。複数駅利用可能なアクセスの良い港区芝大門の賃貸オフィスです。
全フロア情報
更新日:2026年3月10日
| 階 | 面積 | 賃料 | 共益費 | 敷金 | 入居日 | お問合せ | お気に入り | |
|---|---|---|---|---|---|---|---|---|
| 1F |
14.6 坪 48.26 ㎡ |
※現在空室情報はございません |
※現在空室情報は 確認する |
|||||
| 3F |
19 坪 62.81 ㎡ |
247,000 円 13,000 円(坪) |
込 |
1,482,000 円 6 ヶ月 |
即日 |
|
|
|
| 5F |
19 坪 62.81 ㎡ |
※現在空室情報はございません |
※現在空室情報は 確認する |
|||||
お問い合わせ
似た条件の物件はこちら
-
御田八幡ビル
東京都港区三田3-7-16
坪数:17.5 坪
坪単価:11,429 円(坪)
-
グランディックビル
東京都港区芝5-14-14
坪数:16.5 坪
坪単価:16,970 円(坪)
-
山口ビル
東京都港区芝公園1-7-7
坪数:22 坪
坪単価:11,364 円(坪)
-
CROSS三田
東京都港区三田3-14-13
坪数:20.25 坪
坪単価:15,012 円(坪)
-
EARTH SHIBA BLD
東京都港区芝2-10-6
坪数:22.47 坪
坪単価:29,000 円(坪)
-
星野ビル
東京都港区浜松町1-15-6
坪数:15 坪
坪単価:12,000 円(坪)
-
奥山ビル
東京都港区芝5-20-10
坪数:23.74 坪
坪単価:12,637 円(坪)
-
中野第5ビル
東京都港区芝3-17-14
坪数:23.5 坪
坪単価:11,000 円(坪)
-
オーロラ三田
東京都港区三田2-17-29
坪数:19.5 坪
坪単価:28,000 円(坪)
-
TTD PLAZA
東京都港区三田1-2-18
坪数:19.97 坪
坪単価:16,024 円(坪)