フォレストサイドI(物件No:41885195)
フォレストサイドIは港区南青山にある地下1階、地上4階建ての貸店舗事務所です。最寄駅は東京メトロ半蔵門線の青山一丁目駅から徒歩3分、都営大江戸線の青山一丁目駅から徒歩3分、東京メトロ銀座線の青山一丁目駅から徒歩3分です。1985年12月竣工の基準階面積が27.82坪の鉄筋コンクリート造です。設備としては、空調は個別空調です。床仕様はフリーアクセスです。天高は2400mmです。耐震設計となっている、複数路線利用可能なアクセスの良い港区南青山の貸店舗事務所です。
-
物件情報
-
設備情報
- トイレ
- -
- 床
- フリーアクセス
- 空調
- 個別空調
- セキュリティ
- -
- 駐車場
- -
- 会議室
- -
- エレベーター
- 0基
- 天井高
- 2400mm
-
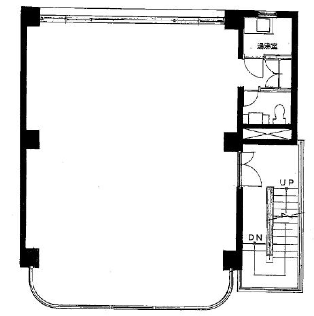
間取り図
-
近隣相場情報
南青山2丁目(20~30坪)の相場
20713 円 (坪)
※ビルサク調べ
周辺施設情報
| コンビニ |
ローソン/南青山二丁目/190m(徒歩2分) ファミリーマート/北青山一丁目店/290m(徒歩4分) |
|---|---|
| 郵便局/銀行 |
郵便局/ATM ファミリーマート青山ツインビル店内出張所/[駐車場]なし [取扱]ATM/カードATM/400m(徒歩5分) イーネット/ファミリーマート北青山二丁目/[営業時間]0:00~24:00/650m(徒歩8分) |
| 飲食店 |
牛彩/11時30分~15時00分、17時30分~23時00分/160m(徒歩2分) ツインズ バー/19時00分~2時00分/77m(徒歩1分) |
| カフェ |
ロイヤルガーデンカフェ/青山/[営業時間]Open Everyday 11:00 - 23:00/300m(徒歩4分) ドトール/新青山ビル店/[営業時間]平日:7:00~21:00 土曜日:8:00~19:00 日 祝:8:00~19:00 [休業日]なし [備考]総席数:71 禁煙席:48 喫煙席:23/600m(徒歩7分) |
| コインパーキング |
パークネット/南青山2丁目第2 [料金] 昼 07:00~ 19:00 20分 / 400円 夜 19:00 ~ 07:00 60分 / 100円 [最大料金] 日祝 24時間 1500円 月~土 4時間 2500円 [台数]5台 リファレンス/青山パーク [料金] 20分200円 [最大料金] (月~土) 7:00~19:00(最大2400円) 19:00~7:00(最大500円) (日・祝) 7:00~19:00(最大2000円) 19:00~7:00(最大500円) [台数]13台 |
周辺地図
フォレストサイドIは港区南青山にある地下1階、地上4階建ての貸店舗事務所です。最寄駅は東京メトロ半蔵門線の青山一丁目駅から徒歩3分、都営大江戸線の青山一丁目駅から徒歩3分、東京メトロ銀座線の青山一丁目駅から徒歩3分です。1985年12月竣工の基準階面積が27.82坪の鉄筋コンクリート造です。設備としては、空調は個別空調です。床仕様はフリーアクセスです。天高は2400mmです。耐震設計となっている、複数路線利用可能なアクセスの良い港区南青山の貸店舗事務所です。
全フロア情報
更新日:2026年1月31日
| 階 | 面積 | 賃料 | 共益費 | 敷金 | 入居日 | お問合せ | お気に入り | |
|---|---|---|---|---|---|---|---|---|
| B1F |
23.54 坪 77.82 ㎡ |
※現在空室情報はございません |
※現在空室情報は 確認する |
|||||
| 1F |
27.82 坪 91.97 ㎡ |
※現在空室情報はございません |
※現在空室情報は 確認する |
|||||
| 2F |
27.82 坪 91.97 ㎡ |
※現在空室情報はございません |
※現在空室情報は 確認する |
|||||
お問い合わせ
似た条件の物件はこちら
-
南青山KFKビル
東京都南青山2-14-14
坪数:28.4 坪
坪単価:11,396 円(坪)
-
たつむら青山マンション(青南吉川興産ビル)
東京都港区南青山5-4-35
坪数:21.29 坪
坪単価:21,982 円(坪)
-
KSビル
東京都港区南青山6-2-9
坪数:20.61 坪
坪単価:23,011 円(坪)
-
越山ビル
東京都港区南青山1-15-2
坪数:34.04 坪
坪単価:16,980 円(坪)
-
バルビゾン104
東京都港区南青山5-4-27
坪数:29.51 坪
坪単価:20,332 円(坪)
-
南青山ユニハイツ
東京都港区南青山6-12-3
坪数:18.31 坪
坪単価:18,569 円(坪)
-
G-FRONT AOYAMA
東京都港区北青山2-12-15
坪数:26 坪
坪単価:29,002 円(坪)
-
リーラ乃木坂
東京都港区南青山1-15-18
坪数:17.2 坪
坪単価:18,000 円(坪)
-
神宮外苑ビル
東京都港区北青山2-7-25
坪数:32.78 坪
坪単価:23,707 円(坪)
-
ARISTO南青山Ⅱ
東京都港区南青山2-5-9
坪数:32.07 坪
坪単価:30,000 円(坪)