HELIOS市ヶ谷(物件No:41788165)
HELIOS市ヶ谷は新宿区住吉町にある地下1階、地上5階建ての賃貸事務所です。最寄駅は都営新宿線の曙橋駅から徒歩1分、東京メトロ丸ノ内線の四谷三丁目駅から徒歩5分です。1986年竣工の鉄筋コンクリート造です。設備としては、エレベーターが1基あり、駐車場もあります。空調は個別空調です。耐震設計となっている、最寄駅から近くて便利な新宿区住吉町の賃貸オフィスです。
-
物件情報
-
設備情報
- トイレ
- 室外男女別
- 床
- -
- 空調
- 個別空調
- セキュリティ
- -
- 駐車場
- 有
- 会議室
- -
- エレベーター
- 1基
- 天井高
- -
-
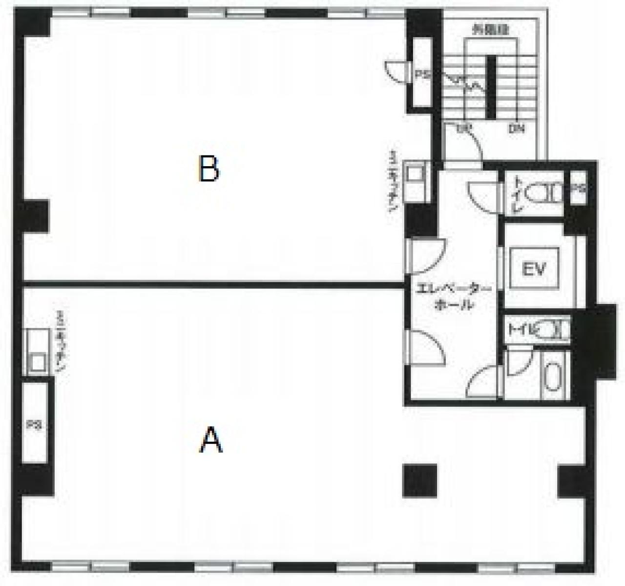
間取り図
-
近隣相場情報
住吉町1丁目(20坪以下)の相場
調査中
周辺施設情報
コンビニ |
ファミリーマート/曙橋店/51m(徒歩1分) ファミリーマート/都営線曙橋駅店/160m(徒歩3分) |
---|---|
郵便局/銀行 |
イーネット/ファミリーマート曙橋/[営業時間]0:00~24:00/51m(徒歩1分) りそな銀行/ATM 曙橋出張所/[営業時間]平日/8:00~21:00 土・日・祝/8:00~21:00/75m(徒歩1分) |
飲食店 |
ほしの/不定休/81m(徒歩1分) Cosmologia/18時00分~0時00分/200m(徒歩3分) |
カフェ |
カフェドクリエ/曙橋/[営業時間][平 日] 07:00~19:00 [土日祝] (土)09:00~19:00 (日/祝)09:00~19:00/110m(徒歩1分) ドトール/曙橋店/■通常営業時間 平日 7:00~20:00 土曜 7:00~19:00 日祝 - /130m(徒歩2分) |
コインパーキング |
NTTル・パルク/新宿荒木町第1 [料金] [料金]昼 8:00-22:00 15分 200円 夜 22:00-8:00 60分 100円 [最大料金] [料金] 最大料金 (月~土)駐車後6時間毎 2,200円(繰返しOK)※祝日を除く [料金] 最大料金 (日・祝)駐車後12時間毎 1,400円(繰返しOK) 夜間最大(22:00~8:00) 500円(繰返しOK) [台数]:8台 三井のリパーク/新宿住吉町 [料金] [料金]全日 07:00~20:00 15分/200円 全日 20:00~07:00 15分/200円 [最大料金] [料金]最大料金 【全日】最大料金入庫後6時間以内1900円 [台数]3 |
周辺地図
HELIOS市ヶ谷は新宿区住吉町にある地下1階、地上5階建ての賃貸事務所です。最寄駅は都営新宿線の曙橋駅から徒歩1分、東京メトロ丸ノ内線の四谷三丁目駅から徒歩5分です。1986年竣工の鉄筋コンクリート造です。設備としては、エレベーターが1基あり、駐車場もあります。空調は個別空調です。耐震設計となっている、最寄駅から近くて便利な新宿区住吉町の賃貸オフィスです。
全フロア情報
更新日:2025年9月16日
階 | 面積 | 賃料 | 共益費 | 敷金 | 入居日 | お問合せ | お気に入り | |
---|---|---|---|---|---|---|---|---|
B1F
(B101区画) |
13.4 坪 44.3 ㎡ |
※現在空室情報はございません |
※現在空室情報は 確認する |
|||||
2F
(B区画) |
15.13 坪 50 ㎡ |
※現在空室情報はございません |
※現在空室情報は 確認する |
|||||
5F |
21.4 坪 70.74 ㎡ |
160,000 円 7,477 円(坪) |
込 |
640,000 円 4 ヶ月 |
相談 |
|
|
お問い合わせ
似た条件の物件はこちら
-
明成ビル
東京都新宿区下宮比町3-12
坪数:17.31 坪
坪単価:9,821 円(坪)
-
Y-1ビル
東京都新宿区山吹町353-1
坪数:18.20 坪
坪単価:9,505 円(坪)
-
THE GATE ICHIGAYA
東京都新宿区市谷田町3-6
坪数:17.73 坪
坪単価:21,000 円(坪)
-
ESCALIER神楽坂
東京都新宿区西五軒町12-10
坪数:17.45 坪
坪単価:51,576 円(坪)
-
ハイポイントビル
東京都新宿区神楽坂3-1-17
坪数:16.92 坪
坪単価:12,057 円(坪)
-
河田町KYビル
東京都新宿区河田町2-3
坪数:19.75 坪
坪単価:11,000 円(坪)
-
フィル・パーク神楽坂天神町
東京都新宿区天神町22-1
坪数:15.77 坪
坪単価:24,706 円(坪)
-
箪笥町SKビル
東京都新宿区箪笥町31
坪数:17.48 坪
坪単価:10,011 円(坪)
-
パルセ富久
東京都新宿区富久町16-12
坪数:17.21 坪
坪単価:9,006 円(坪)
-
千代田ビル
東京都新宿区市谷本村町3-19
坪数:17.77 坪
坪単価:11,000 円(坪)
関連エリアから探す
- 赤城下町
- 市谷加賀町
- 揚場町
- 河田町
- 市谷砂土原町
- 市谷左内町
- 市谷田町
- 市谷台町
- 市谷長延寺町
- 市谷仲之町
- 市谷八幡町
- 市谷船河原町
- 市谷本村町
- 市谷薬王寺町
- 市谷柳町
- 市谷山伏町
- 岩戸町
- 榎町
- 改代町
- 神楽河岸
- 神楽坂
- 北町
- 北山伏町
- 細工町
- 下宮比町
- 白銀町
- 新小川町
- 水道町
- 箪笥町
- 築地町
- 筑土八幡町
- 津久戸町
- 天神町
- 富久町
- 中里町
- 中町
- 納戸町
- 西五軒町
- 二十騎町
- 払方町
- 東榎町
- 東五軒町
- 袋町
- 南町
- 南山伏町
- 山吹町
- 矢来町
- 横寺町
- 余丁町
- 住吉町