いろいろ聞いてみる

西日暮里の賃貸オフィス

スズヨシビル(物件No:41683261)

スズヨシビルは、荒川区西日暮里にある地上7階建ての賃貸事務所です。最寄駅はJR山手線の西日暮里駅から徒歩3分、東京メトロ千代田線の西日暮里駅から徒歩2分です。1992年7月竣工の鉄骨鉄筋コンクリート造です。設備としては、エレベーターが2基あり、駐車場もあります。セキュリティは機械警備です。トイレは室外男女別です。床仕様はフリーアクセスです。天高は2350mmです。耐震設計となっている、最寄駅から近くて便利な荒川区西日暮里の賃貸オフィスです。

面積 賃料 共益費 敷金 入居日 お問合せ お気に入り
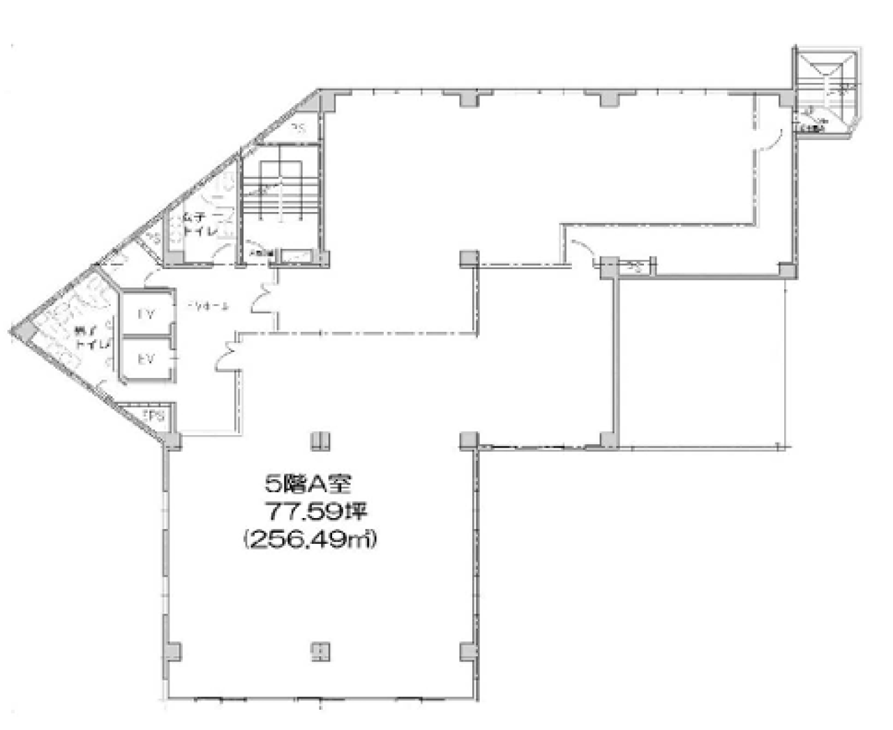
5F

(A区画)

77.59 坪

256.49 ㎡

931,000 円

11,999 円(坪)

5,586,000 円

6 ヶ月

2026/05 お問い合わせ お気に入り
  • スズヨシビル
面積 賃料 共益費 敷金 入居日 お問合せ お気に入り
5F

(A区画)

77.59 坪

256.49 ㎡

931,000 円

11,999 円(坪)

5,586,000 円

6 ヶ月

2026/05 お問い合わせ お気に入り
  • 物件情報

    住所
    東京都荒川区西日暮里5-26-8
    最寄り駅
    JR山手線 西日暮里駅 徒歩3分
    東京メトロ千代田線 西日暮里駅 徒歩2分
    竣工
    1992年
    耐震
    新耐震基準
    規模・構造
    1F - 7F  鉄骨鉄筋コンクリート造
  • 設備情報

    トイレ
    室外男女別
    -
    空調
    -
    セキュリティ
    駐車場
    会議室
    -
    エレベーター
    2基
    天井高
    -
  • 間取り図

    間取り図

  • 近隣相場情報

    西日暮里5丁目(50~100坪)の相場

    調査中

周辺地図

スズヨシビルは、荒川区西日暮里にある地上7階建ての賃貸事務所です。最寄駅はJR山手線の西日暮里駅から徒歩3分、東京メトロ千代田線の西日暮里駅から徒歩2分です。1992年7月竣工の鉄骨鉄筋コンクリート造です。設備としては、エレベーターが2基あり、駐車場もあります。セキュリティは機械警備です。トイレは室外男女別です。床仕様はフリーアクセスです。天高は2350mmです。耐震設計となっている、最寄駅から近くて便利な荒川区西日暮里の賃貸オフィスです。

全フロア情報

更新日:2025年12月12日

面積 賃料 共益費 敷金 入居日 お問合せ お気に入り
3F

129.84 坪

429.22 ㎡

1,558,080 円

12,000 円(坪)

9,348,480 円

6 ヶ月

2026/03 お問い合わせ お気に入り
5F

(A区画)

77.59 坪

256.49 ㎡

931,000 円

11,999 円(坪)

5,586,000 円

6 ヶ月

2026/05 お問い合わせ お気に入り
5F

(B区画)

52.25 坪

172.72 ㎡

627,000 円

12,000 円(坪)

3,762,000 円

6 ヶ月

2026/02 お問い合わせ お気に入り
6F

129.84 坪

429.22 ㎡

※現在空室情報はございません

※現在空室情報は
ございません

最新情報を
確認する
6F

(A区画)

77.59 坪

256.49 ㎡

※現在空室情報はございません

※現在空室情報は
ございません

最新情報を
確認する
6F

(B区画)

52.25 坪

172.72 ㎡

627,000 円

12,000 円(坪)

3,762,000 円

6 ヶ月

即日 お問い合わせ お気に入り

お問い合わせ

必須
必須
必須
必須
必須

お問い合わせ

物件に関してのお問い合わせ

「失敗しないオフィス移転サポート」物件探しから移転までスムーズで担当者様がとにかく楽になるサービスです。

050-7587-0049平日 9:00~18:00

メールでお問い合わせ

フリーワード検索