深川ギャザリア タワーS棟(物件No:41585241)
深川ギャザリア タワーS棟は、江東区木場にある地下1階、地上21階建ての賃貸事務所です。最寄駅は東京メトロ東西線の木場駅から徒歩2分です。2018年12月竣工の基準階面積が403坪の鉄骨鉄筋コンクリート造です。設備としては、エレベーターが10基あり、駐車場もあります。床仕様はフリーアクセスです。天高は2700mmです。耐震設計となっている、最寄駅から近くて便利な江東区木場の賃貸オフィスです。
| 階 | 面積 | 賃料 | 共益費 | 敷金 | 入居日 | お問合せ | お気に入り |
|---|---|---|---|---|---|---|---|
|
3F
(A区画) |
52.21 坪 172.6 ㎡ |
相談 |
込 |
2ヶ月 |
即日 |
|
|
| 階 | 面積 | 賃料 | 共益費 | 敷金 | 入居日 | お問合せ | お気に入り |
|---|---|---|---|---|---|---|---|
|
3F
(A区画) |
52.21 坪 172.6 ㎡ |
相談 |
込 |
2ヶ月 |
即日 |
|
|
-
物件情報
-
設備情報
- トイレ
- 室外男女別
- 床
- フリーアクセス
- 空調
- 個別空調
- セキュリティ
- -
- 駐車場
- 有
- 会議室
- -
- エレベーター
- 10基
- 天井高
- 2700mm
-
間取り図
-
近隣相場情報
木場1丁目(50~100坪)の相場
調査中
周辺地図
深川ギャザリア タワーS棟は、江東区木場にある地下1階、地上21階建ての賃貸事務所です。最寄駅は東京メトロ東西線の木場駅から徒歩2分です。2018年12月竣工の基準階面積が403坪の鉄骨鉄筋コンクリート造です。設備としては、エレベーターが10基あり、駐車場もあります。床仕様はフリーアクセスです。天高は2700mmです。耐震設計となっている、最寄駅から近くて便利な江東区木場の賃貸オフィスです。
全フロア情報
更新日:2026年3月10日
| 階 | 面積 | 賃料 | 共益費 | 敷金 | 入居日 | お問合せ | お気に入り | |
|---|---|---|---|---|---|---|---|---|
|
3F
(1区画) |
192.99 坪 637.98 ㎡ |
※現在空室情報はございません |
※現在空室情報は 確認する |
|||||
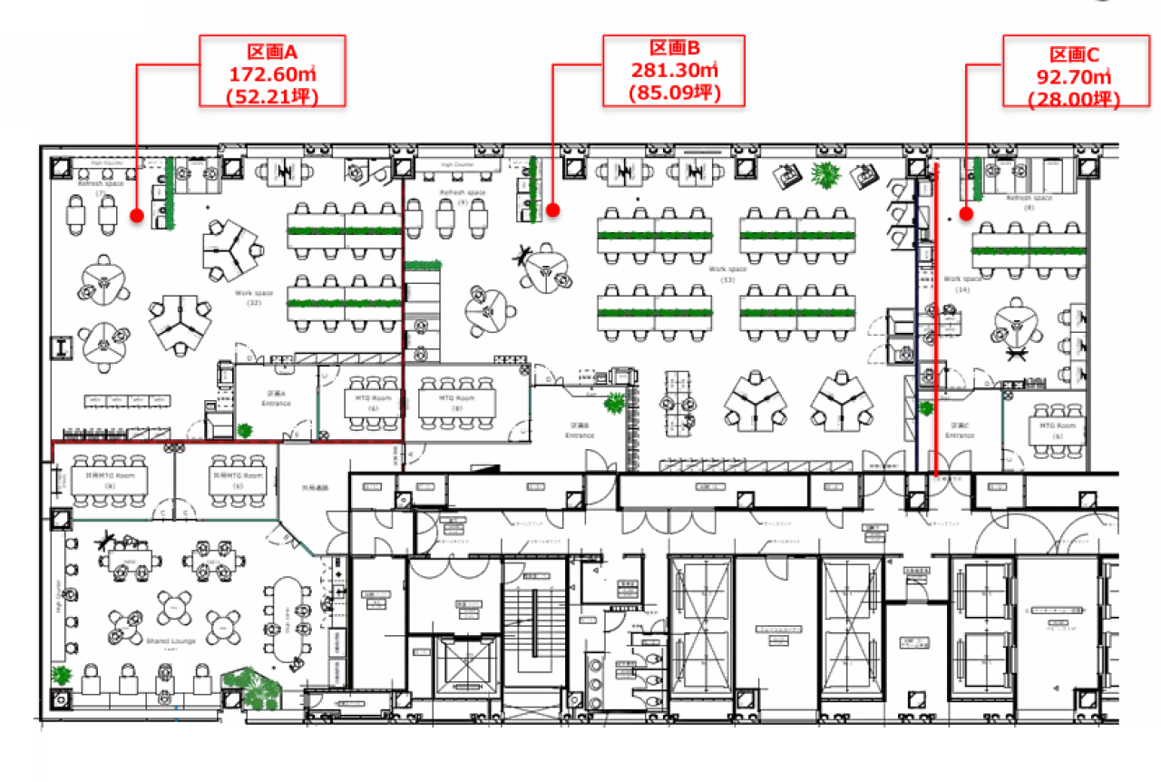
|
3F
(A区画) |
52.21 坪 172.6 ㎡ |
相談 |
込 |
2ヶ月 |
即日 |
|
|
|
|
3F
(B区画) |
85.09 坪 281.29 ㎡ |
相談 |
込 |
2ヶ月 |
即日 |
|
|
|
|
3F
(C区画) |
28 坪 92.56 ㎡ |
相談 |
込 |
2ヶ月 |
即日 |
|
|
|
|
4F
(1区画) |
342.2 坪 1131.24 ㎡ |
※現在空室情報はございません |
※現在空室情報は 確認する |
|||||
|
4F
(2区画) |
239.34 坪 791.21 ㎡ |
※現在空室情報はございません |
※現在空室情報は 確認する |
|||||
|
4F
(3区画) |
125.06 坪 413.42 ㎡ |
※現在空室情報はございません |
※現在空室情報は 確認する |
|||||
| 6F |
380.27 坪 1257.09 ㎡ |
※現在空室情報はございません |
※現在空室情報は 確認する |
|||||
|
10F
(1区画) |
192.96 坪 637.88 ㎡ |
※現在空室情報はございません |
※現在空室情報は 確認する |
|||||
| 12F |
385.93 坪 1275.8 ㎡ |
※現在空室情報はございません |
※現在空室情報は 確認する |
|||||
| 13F |
385.93 坪 1275.8 ㎡ |
※現在空室情報はございません |
※現在空室情報は 確認する |
|||||
| 14F |
385.93 坪 1275.8 ㎡ |
※現在空室情報はございません |
※現在空室情報は 確認する |
|||||
| 19F |
397.43 坪 1313.82 ㎡ |
※現在空室情報はございません |
※現在空室情報は 確認する |
|||||
お問い合わせ
似た条件の物件はこちら
-
安田ビル
東京都江東区深川1-8-15
坪数:37.11 坪
坪単価:9,064 円(坪)
-
長谷川ビル
東京都江東区東陽3-27-17
坪数:56.9 坪
坪単価:13,636 円(坪)
-
堀第5富岡ビル
東京都江東区富岡1-21-7
坪数:57.22 坪
坪単価:13,002 円(坪)
-
霜ビル1
東京都江東区福住1-13-7
坪数:38.86 坪
坪単価:9,521 円(坪)
-
若竹ビル
東京都江東区東陽5-31-17
坪数:37.11 坪
坪単価:11,000 円(坪)
-
東京原木会館
東京都江東区東陽5-30-13
坪数:47.91 坪
坪単価:12,002 円(坪)