クレインズパークビル(物件No:41584028)
クレインズパークビルは、渋谷区神宮前にある貸事務所物件です。最寄駅は東京メトロ副都心線明治神宮前駅、JR原宿駅、各線渋谷駅です。1991年竣工で基準階が138.83坪の賃貸オフィスビルです。床はOAフロア相談で、天井の高さは2700mm。トイレは室内男女別で、空調は個別空調です。エレベーターは1基あり、セキュリティは機械警備となっています。複数駅利用可能で交通アクセスの良い、渋谷区神宮前の貸事務所です。
-
物件情報
- 住所
- 東京都渋谷区神宮前6-18-1
- 最寄り駅
-
東京メトロ千代田線
明治神宮前〈原宿〉駅
徒歩6分
JR線 渋谷駅 徒歩9分
JR線 原宿駅 徒歩8分
東京メトロ副都心線 渋谷駅 徒歩8分
東京メトロ副都心線 明治神宮前〈原宿〉駅 徒歩6分
- 竣工
- 1991年
- 耐震
- 新耐震基準
- 規模・構造
- 1F - 8F 鉄骨鉄筋コンクリート造
-
設備情報
- トイレ
- 室内男女別
- 床
- フリーアクセス相談
- 空調
- 個別空調
- セキュリティ
- 有
- 駐車場
- 無
- 会議室
- -
- エレベーター
- 1基
- 天井高
- 2700mm
-
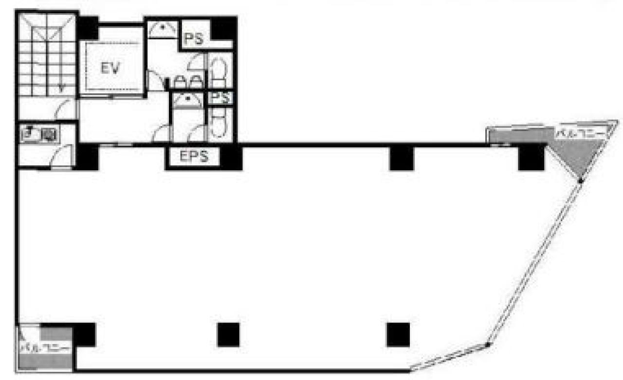
間取り図
-
近隣相場情報
神宮前6丁目(50~100坪)の相場
32775 円 (坪)
※ビルサク調べ
周辺施設情報
| コンビニ |
デイリーヤマザキ/渋谷区神南店/600m(徒歩8分) セブンイレブン/渋谷1丁目/650m(徒歩9分) |
|---|---|
| 郵便局/銀行 |
ゆうちょ/神宮前六郵便局/[営業時間] [窓口]平日 9:00~16:00 土曜日 - 日曜日・休日 - [ATM]平日 9:00~19:00 土曜日 9:00~17:00 日曜日・休日 9:00~17:00 [駐車場]なし [取扱]郵便/貯金/保険/ATM [備考]※新型コロナウイルスに感染した社員が発生した場合、窓口業務/300m(徒歩4分) イーネット/ファミリーマート渋谷神南北谷公園前/[営業時間]0:00~24:00/500m(徒歩7分) |
| 飲食店 |
シガーバー シャドネィ/12時00分~23時00分/650m(徒歩8分) バーミヤン 神宮前店/10時00分~21時00分/99m(徒歩1分) |
| カフェ |
THE LOCAL TOKYO/12時00分~17時30分/150m(徒歩2分) KEYAKIZAKA46 CAFE(limited)/500m(徒歩6分) |
| コインパーキング |
NPC24H/原宿第2 [料金] 30分/400円 [最大料金] 平日 4時間毎 2200円 土日祝 4時間毎 2700円 全日夜間 1000円(17時~8時) [台数]18台 三井のリパーク/渋谷1丁目第10 [料金] 全日 08:00~22:00 20分/400円 全日 22:00~08:00 60分/100円 [台数]5 |
周辺地図
クレインズパークビルは、渋谷区神宮前にある貸事務所物件です。最寄駅は東京メトロ副都心線明治神宮前駅、JR原宿駅、各線渋谷駅です。1991年竣工で基準階が138.83坪の賃貸オフィスビルです。床はOAフロア相談で、天井の高さは2700mm。トイレは室内男女別で、空調は個別空調です。エレベーターは1基あり、セキュリティは機械警備となっています。複数駅利用可能で交通アクセスの良い、渋谷区神宮前の貸事務所です。
全フロア情報
更新日:2025年12月4日
| 階 | 面積 | 賃料 | 共益費 | 敷金 | 入居日 | お問合せ | お気に入り | |
|---|---|---|---|---|---|---|---|---|
|
2F
(1区画) |
66.32 坪 219.24 ㎡ |
※現在空室情報はございません |
※現在空室情報は 確認する |
|||||
| 3F |
66.95 坪 221.32 ㎡ |
※現在空室情報はございません |
※現在空室情報は 確認する |
|||||
| 4F |
66.95 坪 221.32 ㎡ |
※現在空室情報はございません |
※現在空室情報は 確認する |
|||||
| 5F |
66.95 坪 221.32 ㎡ |
※現在空室情報はございません |
※現在空室情報は 確認する |
|||||
| 6F |
66.95 坪 221.32 ㎡ |
2,350,000 円 35,101 円(坪) |
込 |
18,800,000 円 8 ヶ月 |
2026/03/01 |
|
|
|
お問い合わせ
似た条件の物件はこちら
-
第一暁ビルディング
東京都渋谷区道玄坂1-19-9
坪数:58.6 坪
坪単価:25,341 円(坪)
-
ステージ神宮前Ⅱ
東京都渋谷区神宮前2-12-2
坪数:53.34 坪
坪単価:20,000 円(坪)
-
AND FIRST BLDG.
東京都渋谷区桜丘町9-17
坪数:74.2 坪
坪単価:35,000 円(坪)
-
NESビル
東京都渋谷区桜丘町22-14
坪数:63.1 坪
坪単価:25,000 円(坪)
-
渋谷STビル
東京都渋谷区南平台町3-13
坪数:58.42 坪
坪単価:21,000 円(坪)
-
楠本ビル
東京都渋谷区道玄坂1-3-3
坪数:55.88 坪
坪単価:40,900 円(坪)
-
神南ビル
東京都渋谷区神南1-3-4
坪数:66.98 坪
坪単価:22,300 円(坪)
-
TBCビル
東京都渋谷区東2-27-10
坪数:62.06 坪
坪単価:28,000 円(坪)
-
渋谷第一生命ビルディング
東京都渋谷区渋谷3-8-12
坪数:69.28 坪
坪単価:30,000 円(坪)