SOLK海岸(物件No:41488134)
SOLK海岸は、港区海岸にある貸事務所物件です。最寄り駅は、ゆりかもめの芝浦ふ頭駅、日の出駅、JR線の田町駅、都営浅草線の三田駅です。2007年竣工の貸事務所物件です。天高は2700mmとなっております。トイレは室外にあり、男女別です。駐車場があり、エレベーターは1基あります。治安も良く、芝浦ふ頭駅から徒歩3分とアクセスのしやすい、港区海岸の貸事務所です。
-
物件情報
-
設備情報
- トイレ
- 室内
- 床
- フローリング
- 空調
- 個別空調
- セキュリティ
- -
- 駐車場
- 有
- 会議室
- -
- エレベーター
- 1基
- 天井高
- -
-
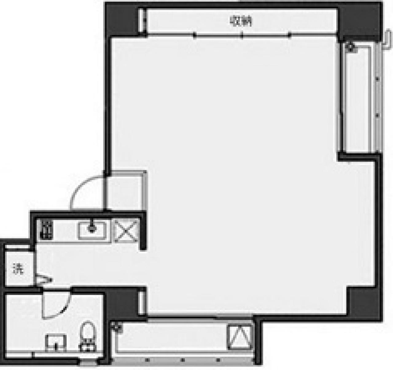
間取り図
-
近隣相場情報
海岸3丁目(20~30坪)の相場
11513 円 (坪)
※ビルサク調べ
周辺施設情報
| コンビニ |
ローソン/ポートストア海岸/240m(徒歩3分) セブンイレブン/港区芝浦ふ頭/350m(徒歩4分) |
|---|---|
| 郵便局/銀行 |
横浜銀行/田町支店/営業時間]窓口 平日 9:00~15:00 土曜日 - 日・祝日 - ATM 平日 9:00~15:00 土曜日 - 日・祝日 - 貸金庫 平日 - 土曜日 - 日・祝日/700m(徒歩9分) 郵便局/芝浦海岸通/平日 9:00~17:00 土曜日 お取り扱いしません 日曜日・休日 お取り扱いしません/1000m(徒歩12分) |
| 飲食店 |
アジアンケバブ 芝浦店/11時00分~18時00分/200m(徒歩2分) 秀味 海岸店/11時00分~21時30分/150m(徒歩2分) |
| カフェ |
セガフレード/芝浦埠頭ヨコソーレインボータワー店/[営業時間]平 日 7:30 - 18:00 土・日・祝 休業/400m(徒歩5分) ドトール/芝浦3丁目店/[営業時間]平 日:07:00 - 20:00 土曜日:07:30 - 18:00 日 祝:08:00 - 18:00 [休業日]なし/600m(徒歩8分) |
| コインパーキング |
トラストパーク/海岸3丁目 [料金] 【時間料金】 30分400円 [最大料金] 長時間サービス料金】 <月~土> (07:00~19:00)最大2600円 (19:00~07:00)最大500円 <日祝> (07:00~19:00)最大1000円 (19:00~07:00)最大500円 [台数]6台 タイムズ駐車場/海岸3丁目第2 [料金] [月~土]07:00-19:00 最大料金2600円 19:00-07:00 最大料金500円 通常料金 / 00:00-00:00 30分 400円 [日・祝] [最大料金] 07:00-19:00 最大料金1000円 19:00-07:00 最大料金500円 通常料金 / 00:00-00:00 60分 300円 [台数]8 |
周辺地図
SOLK海岸は、港区海岸にある貸事務所物件です。最寄り駅は、ゆりかもめの芝浦ふ頭駅、日の出駅、JR線の田町駅、都営浅草線の三田駅です。2007年竣工の貸事務所物件です。天高は2700mmとなっております。トイレは室外にあり、男女別です。駐車場があり、エレベーターは1基あります。治安も良く、芝浦ふ頭駅から徒歩3分とアクセスのしやすい、港区海岸の貸事務所です。
全フロア情報
更新日:2025年12月22日
| 階 | 面積 | 賃料 | 共益費 | 敷金 | 入居日 | お問合せ | お気に入り | |
|---|---|---|---|---|---|---|---|---|
|
4F
(01-02区画) |
43.58 坪 144.07 ㎡ |
※現在空室情報はございません |
※現在空室情報は 確認する |
|||||
|
4F
(401区画) |
20.16 坪 66.64 ㎡ |
※現在空室情報はございません |
※現在空室情報は 確認する |
|||||
|
4F
(402区画) |
21.38 坪 70.68 ㎡ |
230,000 円 10,758 円(坪) |
17,000 円 795 円(坪) |
690,000 円 3 ヶ月 |
即日 |
|
|
|
| 7F |
20.16 坪 66.64 ㎡ |
※現在空室情報はございません |
※現在空室情報は 確認する |
|||||
お問い合わせ
似た条件の物件はこちら
-
マリンクス・タワー
東京都港区海岸1-9-11
坪数:17.73 坪
坪単価:16,000 円(坪)
-
武藤ビル
東京都港区芝浦3-11-9
坪数:21.35 坪
坪単価:12,000 円(坪)
-
芝サニーハイツ
東京都港区芝5-27-4
坪数:17.28 坪
坪単価:11,574 円(坪)
-
グランディックビル
東京都港区芝5-14-14
坪数:16.5 坪
坪単価:18,182 円(坪)
-
My Maison
東京都港区芝3-16-9
坪数:15.13 坪
坪単価:16,530 円(坪)
-
山口ビル
東京都港区芝公園1-7-7
坪数:22 坪
坪単価:11,364 円(坪)
-
YKホープ芝大門
東京都港区芝大門1-3-9
坪数:15.56 坪
坪単価:12,211 円(坪)
-
CROSS三田
東京都港区三田3-14-13
坪数:20.25 坪
坪単価:15,012 円(坪)
-
EARTH SHIBA BLD
東京都港区芝2-10-6
坪数:22.47 坪
坪単価:29,000 円(坪)
-
星野ビル
東京都港区浜松町1-15-6
坪数:15 坪
坪単価:12,000 円(坪)