いちご大森ビル(物件No:41486168)
いちご大森ビルは品川区南大井にある地下1階、地上8階建ての賃貸事務所です。最寄駅はJR京浜東北線の大森駅から徒歩3分、京急本線の大森海岸駅から徒歩5分、京急本線の平和島駅から徒歩15分、京急本線の立会川駅から徒歩16分、東京モノレールの大井競馬場前駅から徒歩20分です。1992年7月竣工の基準階面積が144.93坪の鉄骨造です。設備としては、駐車場があります。警備は機械警備です。トイレは男女別です。空調は個別空調です。床仕様はフリーアクセスです。天高は2600mmです。耐震設計となっている、最寄駅から近くて便利な品川区南大井の賃貸オフィスです。
| 階 | 面積 | 賃料 | 共益費 | 敷金 | 入居日 | お問合せ | お気に入り |
|---|---|---|---|---|---|---|---|
|
3F
(1区画) |
41.54 坪 137.32 ㎡ |
相談 |
相談 |
相談 |
相談 |
|
|
| 階 | 面積 | 賃料 | 共益費 | 敷金 | 入居日 | お問合せ | お気に入り |
|---|---|---|---|---|---|---|---|
|
3F
(1区画) |
41.54 坪 137.32 ㎡ |
相談 |
相談 |
相談 |
相談 |
|
|
-
物件情報
-
設備情報
- トイレ
- 男女別
- 床
- -
- 空調
- 個別空調
- セキュリティ
- 有
- 駐車場
- 有
- 会議室
- -
- エレベーター
- 2基
- 天井高
- -
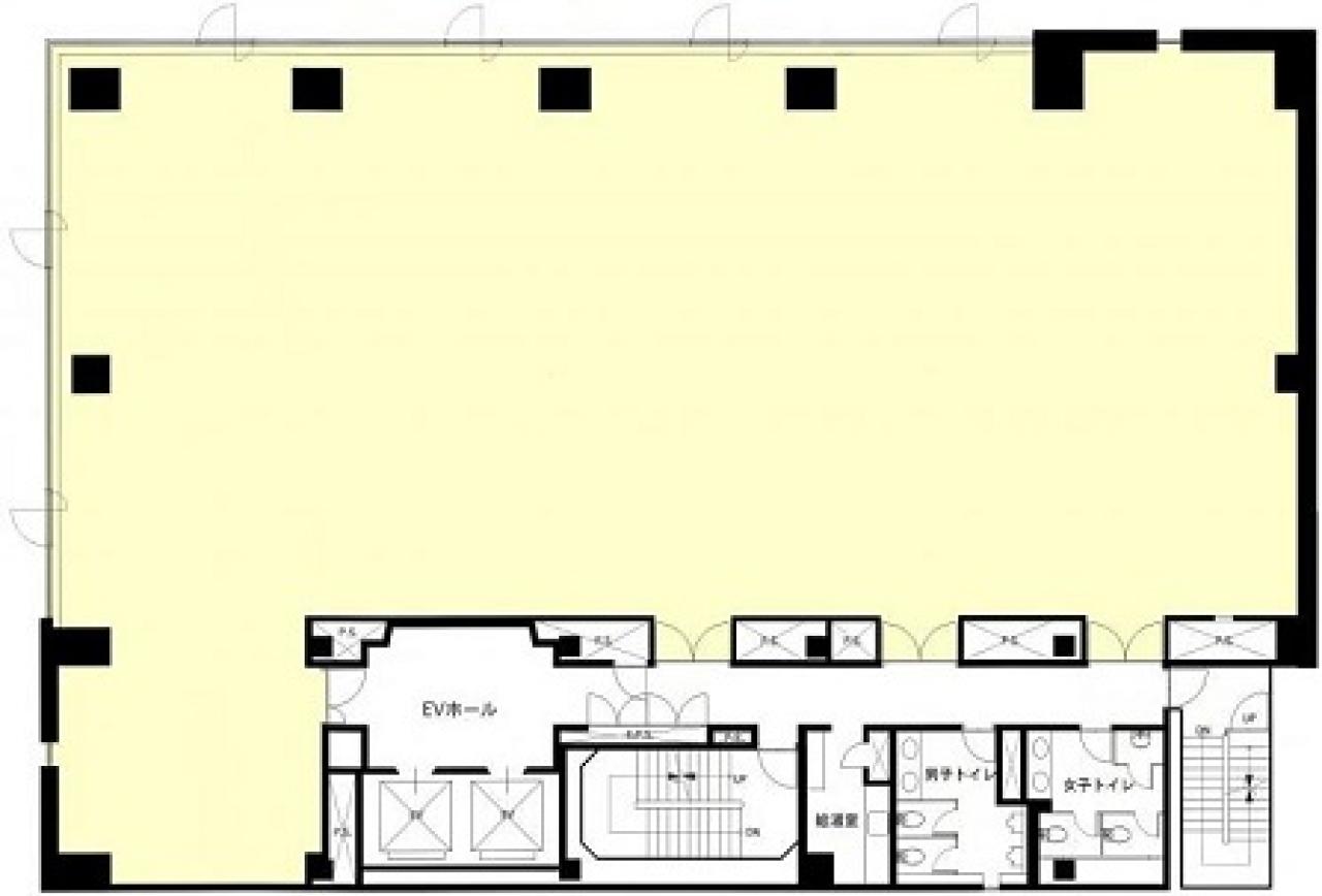
-
間取り図
-
近隣相場情報
南大井6丁目(40~50坪)の相場
17968 円 (坪)
※ビルサク調べ
周辺地図
いちご大森ビルは品川区南大井にある地下1階、地上8階建ての賃貸事務所です。最寄駅はJR京浜東北線の大森駅から徒歩3分、京急本線の大森海岸駅から徒歩5分、京急本線の平和島駅から徒歩15分、京急本線の立会川駅から徒歩16分、東京モノレールの大井競馬場前駅から徒歩20分です。1992年7月竣工の基準階面積が144.93坪の鉄骨造です。設備としては、駐車場があります。警備は機械警備です。トイレは男女別です。空調は個別空調です。床仕様はフリーアクセスです。天高は2600mmです。耐震設計となっている、最寄駅から近くて便利な品川区南大井の賃貸オフィスです。
全フロア情報
更新日:2026年4月2日
| 階 | 面積 | 賃料 | 共益費 | 敷金 | 入居日 | お問合せ | お気に入り | |
|---|---|---|---|---|---|---|---|---|
|
2F
(1区画) |
72.88 坪 240.93 ㎡ |
※現在空室情報はございません |
※現在空室情報は 確認する |
|||||
|
2F
(2区画) |
48.33 坪 159.77 ㎡ |
※現在空室情報はございません |
※現在空室情報は 確認する |
|||||
|
2F
(206区画) |
14.72 坪 48.66 ㎡ |
※現在空室情報はございません |
※現在空室情報は 確認する |
|||||
|
3F
(1区画) |
41.54 坪 137.32 ㎡ |
相談 |
相談 |
相談 |
相談 |
|
|
|
| 4F |
144.93 坪 479.11 ㎡ |
※現在空室情報はございません |
※現在空室情報は 確認する |
|||||
| 5F |
144.93 坪 479.11 ㎡ |
※現在空室情報はございません |
※現在空室情報は 確認する |
|||||
|
5F
(A区画) |
66.58 坪 220.1 ㎡ |
※現在空室情報はございません |
※現在空室情報は 確認する |
|||||
| 6F |
144.93 坪 479.11 ㎡ |
※現在空室情報はございません |
※現在空室情報は 確認する |
|||||
|
6F
(1区画) |
52.2 坪 172.56 ㎡ |
※現在空室情報はございません |
※現在空室情報は 確認する |
|||||
|
6F
(2区画) |
92.72 坪 306.51 ㎡ |
※現在空室情報はございません |
※現在空室情報は 確認する |
|||||
|
7F
(1区画) |
52.2 坪 172.56 ㎡ |
※現在空室情報はございません |
※現在空室情報は 確認する |
|||||
|
7F
(2区画) |
92.72 坪 306.51 ㎡ |
※現在空室情報はございません |
※現在空室情報は 確認する |
|||||
|
7F
(A区画) |
92.72 坪 306.51 ㎡ |
※現在空室情報はございません |
※現在空室情報は 確認する |
|||||
| 8F |
144.93 坪 479.11 ㎡ |
※現在空室情報はございません |
※現在空室情報は 確認する |
|||||
お問い合わせ
似た条件の物件はこちら
-
長栄ビル
東京都品川区北品川1-13-7
坪数:31.7 坪
坪単価:14,000 円(坪)
-
大森TSビル
東京都品川区南大井6-6-5
坪数:44.6 坪
坪単価:11,211 円(坪)
-
南品川JNビル
東京都品川区南品川2-2-13
坪数:35.02 坪
坪単価:5,587 円(坪)
-
昭和ネオン本社ビル
東京都品川区南品川1-7-17
坪数:37.48 坪
坪単価:20,000 円(坪)
-
EBUCHIビル
東京都品川区南大井3-24-13
坪数:35.42 坪
坪単価:11,293 円(坪)
-
K-2ビル
東京都品川区大井1-7-7
坪数:39.3 坪
坪単価:17,496 円(坪)
-
Tennozu Bay Tower
東京都品川区東品川2-3-12
坪数:34.37 坪
坪単価:23,012 円(坪)
-
高山ビル
東京都品川区東大井5-17-4
坪数:38.46 坪
坪単価:12,998 円(坪)
-
東京ネオンビル
東京都品川区南大井6-4-22
坪数:38.77 坪
坪単価:8,254 円(坪)