秋葉原槇町ビル(物件No:41481088)
秋葉原槇町ビルは、千代田区外神田にある貸事務所物件です。最寄り駅は東京メトロ日比谷線、JR秋葉原駅、銀座線末広町駅です。1989年竣工で基準階が20坪の賃貸オフィスビルです。トイレは室内で、空調は個別空調です。エレベーターは1基あり、セキュリティは機械警備となっています。秋葉原駅周辺は様々な店舗が立ち並んでおり、電車の乗り換えもしやすく、利便性の高い千代田区外神田の貸事務所です。
-
物件情報
-
設備情報
- トイレ
- 室内男女共用
- 床
- -
- 空調
- 個別空調
- セキュリティ
- 有
- 駐車場
- -
- 会議室
- -
- エレベーター
- 1基
- 天井高
- -
-
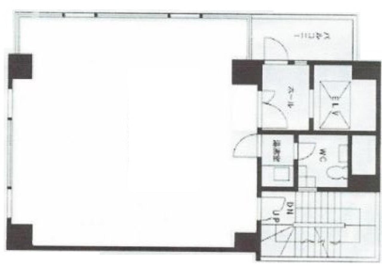
間取り図
-
近隣相場情報
外神田3丁目(20坪以下)の相場
15172 円 (坪)
※ビルサク調べ
周辺施設情報
| コンビニ |
ローソン/LTF万世本/600m(徒歩8分) ファミリーマート/清水坂下店/500m(徒歩7分) |
|---|---|
| 郵便局/銀行 |
郵便局/ATM ファミリーマート外神田四丁目店内出張所/[駐車場]なし [取扱]ATM/カードATM/200m(徒歩2分) ビューアルッテ/JR秋葉原駅電気街口改札外/[営業時間]全日/4:30~25:00※毎月第二土曜日23:00~翌日8:00はご利用になれません。※駅や店舗の営業時間により、ATM営業時間が変更となる場合があります [取扱]お引出し・残高照会のみ/500m(徒歩6分) |
| 飲食店 |
たどん 秋葉原本店/11時00分~22時00分/180m(徒歩2分) 松楽/11時30分~17時30分/290m(徒歩4分) |
| カフェ |
タリーズ/住友不動産秋葉原ファーストビル・テラス店/[営業時間]平日:7:00~22:00 土:7:00~22:00 日祝:7:00~21:00 [備考]喫煙専用室あり(飲食不可)/400m(徒歩5分) ア・ラ・カンパーニュ/秋葉原店4F/[営業時間]10:00~22:00(LO:フード21:15 / ドリンク21:30) [備考]90席(立食応相談) パーティープラン 可/450m(徒歩6分) |
| コインパーキング |
タイムズ駐車場/外神田3丁目第2 [料金] [全日]0:00~0:00 15分 440円 [最大料金] [全日]8:00~20:00 最大料金3300円 [全日]20:00~8:00 最大料金550円 [台数]2 トラストパーク/【ネットのみ予約可】秋葉原センタープレイス [料金] 20分300円 [最大料金] <平日> (07:30~21:00)最大1500円 ※翌営業時間~繰り返しあり <土日祝> (09:00~21:00)最大1800円 ※翌営業時間~繰り返しあり 【夜間宿泊料金】 営業時間外 1000円 ※入出庫不可 [台数]42台 |
周辺地図
秋葉原槇町ビルは、千代田区外神田にある貸事務所物件です。最寄り駅は東京メトロ日比谷線、JR秋葉原駅、銀座線末広町駅です。1989年竣工で基準階が20坪の賃貸オフィスビルです。トイレは室内で、空調は個別空調です。エレベーターは1基あり、セキュリティは機械警備となっています。秋葉原駅周辺は様々な店舗が立ち並んでおり、電車の乗り換えもしやすく、利便性の高い千代田区外神田の貸事務所です。
全フロア情報
更新日:2026年3月2日
| 階 | 面積 | 賃料 | 共益費 | 敷金 | 入居日 | お問合せ | お気に入り | |
|---|---|---|---|---|---|---|---|---|
| 3F |
17.82 坪 58.91 ㎡ |
※現在空室情報はございません |
※現在空室情報は 確認する |
|||||
| 5F |
17.82 坪 58.91 ㎡ |
※現在空室情報はございません |
※現在空室情報は 確認する |
|||||
| 6F |
17.82 坪 58.91 ㎡ |
※現在空室情報はございません |
※現在空室情報は 確認する |
|||||
| 7F |
17.82 坪 58.91 ㎡ |
※現在空室情報はございません |
※現在空室情報は 確認する |
|||||
| 8F |
17.82 坪 58.91 ㎡ |
267,300 円 15,000 円(坪) |
込 |
2,138,400 円 8 ヶ月 |
2026/05 |
|
|
|
お問い合わせ
似た条件の物件はこちら
-
早川ビル
東京都千代田区岩本町3-7-13
坪数:16.46 坪
坪単価:10,000 円(坪)
-
新東ビル
東京都千代田区内神田2-8-3
坪数:21.5 坪
坪単価:12,000 円(坪)
-
神田乗物町ビル
東京都千代田区神田北乗物町2
坪数:16.5 坪
坪単価:12,000 円(坪)
-
NMビル
東京都千代田区東神田2-2-1
坪数:20.71 坪
坪単価:10,000 円(坪)
-
パレヤソジマ
東京都千代田区神田司町2-15-1
坪数:12.03 坪
坪単価:12,053 円(坪)
-
神田美倉町ビル
東京都千代田区神田美倉町9
坪数:12.6 坪
坪単価:16,667 円(坪)
-
神田NSOビル
東京都千代田区外神田2-5-10
坪数:15.17 坪
坪単価:13,000 円(坪)
-
藤和内神田ビル
東京都千代田区内神田2-4-4
坪数:18.49 坪
坪単価:16,500 円(坪)
-
プロミエ秋葉原
東京都千代田区神田練塀町73
坪数:13.65 坪
坪単価:19,121 円(坪)
-
都築ビル
東京都千代田区神田岩本町4-4-4
坪数:16.72 坪
坪単価:11,962 円(坪)
関連エリアから探す
- 内神田
- 神田淡路町
- 神田小川町
- 神田鍛冶町
- 神田須田町
- 神田駿河台
- 神田多町
- 神田司町
- 神田錦町
- 神田美土代町
- 岩本町
- 鍛冶町
- 神田岩本町
- 神田北乗物町
- 神田紺屋町
- 神田富山町
- 神田西福田町
- 神田東松下町
- 神田東紺屋町
- 神田美倉町
- 東神田
- 神田相生町
- 神田和泉町
- 神田佐久間町
- 神田佐久間河岸
- 神田練塀町
- 神田花岡町
- 神田松永町
- 外神田
- 神田平河町