クリスティエビスビル(物件No:41389077)
クリスティエビスビルは、渋谷区東にある貸事務所物件です。最寄り駅は、JR線、東京メトロ日比谷線の恵比寿駅、東急東横線の代官山駅です。1990年竣工で、基準階が22.67坪の賃貸オフィスビルです。天高は2550mmとなっております。空調は個別空調で、トイレは室内にあります。エレベーターは1基あります。恵比寿駅から徒歩5分の、アクセスの良い渋谷区東の貸事務所です。
-
物件情報
-
設備情報
- トイレ
- 室内
- 床
- -
- 空調
- 個別空調
- セキュリティ
- -
- 駐車場
- 有
- 会議室
- -
- エレベーター
- 1基
- 天井高
- 2550mm
-
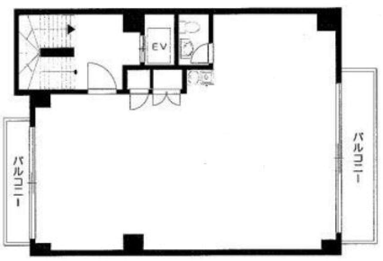
間取り図
-
近隣相場情報
東3丁目(20~30坪)の相場
21995 円 (坪)
※ビルサク調べ
周辺施設情報
| コンビニ |
ローソン/渋谷東三丁目/150m(徒歩2分) セブンイレブン/渋谷東3丁目/300m(徒歩4分) |
|---|---|
| 郵便局/銀行 |
三菱UFJ銀行/東恵比寿支店/[営業時間] [窓口]平日 9:00~15:00 土曜日 - 日曜日 - *祝日・休日および12月31日、1月1日~3日は営業いたしません。 [ATM]平日 24時間 土曜日 24時間 日・祝日 24時間 *毎月第2土曜日の21:00~翌朝7:00はご利用いただけません。 [テレビ窓口]平日 9:0/250m(徒歩3分) 三井住友銀行/ATM 恵比寿東出張所/[営業時間] [ATM]平日 7:00~24:00 土曜 7:00~24:00 日曜 7:00~21:00/250m(徒歩3分) |
| 飲食店 |
TimeOut Cafe & Diner/11時30分~21時00分/210m(徒歩3分) イタリアン イルチェーロ 恵比寿/11時30分~3時00分/180m(徒歩2分) |
| カフェ |
ニャフェ・メランジェ/12時00分~20時00分/150m(徒歩2分) GARDEN HOUSE CRAFTS/8時30分~18時00分/600m(徒歩8分) |
| コインパーキング |
コインパーク/渋谷東3丁目第2 [料金] 【全日】■通常料金【オールタイム [24時間]】12分/300円 [最大料金] 【全日】■最大料金【24:00~8:00】800円 [台数] [車: 3台] エコロパーク/恵比寿第14 [料金] 全日 終日 12分300円 [最大料金] 全日 4時間 最大1800円 [台数]2 |
周辺地図
クリスティエビスビルは、渋谷区東にある貸事務所物件です。最寄り駅は、JR線、東京メトロ日比谷線の恵比寿駅、東急東横線の代官山駅です。1990年竣工で、基準階が22.67坪の賃貸オフィスビルです。天高は2550mmとなっております。空調は個別空調で、トイレは室内にあります。エレベーターは1基あります。恵比寿駅から徒歩5分の、アクセスの良い渋谷区東の貸事務所です。
全フロア情報
更新日:2022年12月7日
| 階 | 面積 | 賃料 | 共益費 | 敷金 | 入居日 | お問合せ | お気に入り | |
|---|---|---|---|---|---|---|---|---|
| 3F |
20.18 坪 66.71 ㎡ |
※現在空室情報はございません |
※現在空室情報は 確認する |
|||||
| 4F |
20.18 坪 66.71 ㎡ |
※現在空室情報はございません |
※現在空室情報は 確認する |
|||||
|
5F
(1区画) |
21.08 坪 69.69 ㎡ |
※現在空室情報はございません |
※現在空室情報は 確認する |
|||||
| 6F |
20.18 坪 66.71 ㎡ |
※現在空室情報はございません |
※現在空室情報は 確認する |
|||||
| 7F |
20.18 坪 66.71 ㎡ |
※現在空室情報はございません |
※現在空室情報は 確認する |
|||||
お問い合わせ
似た条件の物件はこちら
-
エトワールUビル
東京都渋谷区渋谷3-13-9
坪数:23.68 坪
坪単価:17,249 円(坪)
-
ビラ・ビアンカ
東京都渋谷区神宮前2-33-12
坪数:18.79 坪
坪単価:16,450 円(坪)
-
渋谷3丁目ビル
東京都渋谷区渋谷3-18-4
坪数:17.43 坪
坪単価:26,000 円(坪)
-
第一暁ビルディング
東京都渋谷区道玄坂1-19-9
坪数:24.14 坪
坪単価:20,713 円(坪)
-
三貴ビル
東京都渋谷区渋谷2-12-12
坪数:18.7 坪
坪単価:24,000 円(坪)
-
倉島渋谷ビル
東京都渋谷区渋谷2-3-8
坪数:20.53 坪
坪単価:18,000 円(坪)
-
アクシーズ7号館ビル
東京都渋谷区渋谷3-17-4
坪数:18 坪
坪単価:20,000 円(坪)
-
第3矢木ビル
東京都渋谷区渋谷3-7-2
坪数:18 坪
坪単価:30,000 円(坪)
-
越一ビル
東京都渋谷区神宮前6-19-16
坪数:19 坪
坪単価:22,000 円(坪)
-
日興パレス外苑
東京都渋谷区神宮前2-13-7
坪数:16.57 坪
坪単価:12,311 円(坪)