いろいろ聞いてみる

北上野の賃貸オフィス

MIテラス北上野(物件No:41383139)

MIテラス北上野(旧:ユニゾ北上野二丁目ビル)は、台東区北上野にある地下1階、地上10階建ての賃貸事務所です。最寄駅は東京メトロ日比谷線の入谷駅から徒歩5分、JR線の巣鴨駅から徒歩8分、JR線の上野駅から徒歩10分、JR線の鶯谷駅から徒歩8分です。1992年竣工の基準階面積が127.19坪の鉄骨鉄筋コンクリート造です。設備としては、エレベーターが2基あります。駐車場もあります。セキュリティは機械警備です。トイレは男女別です。空調は個別空調です。天高は2500mmです。耐震設計となっている、複数路線利用可能なアクセスの良い台東区北上野の賃貸オフィスです。

面積 賃料 共益費 敷金 入居日 お問合せ お気に入り
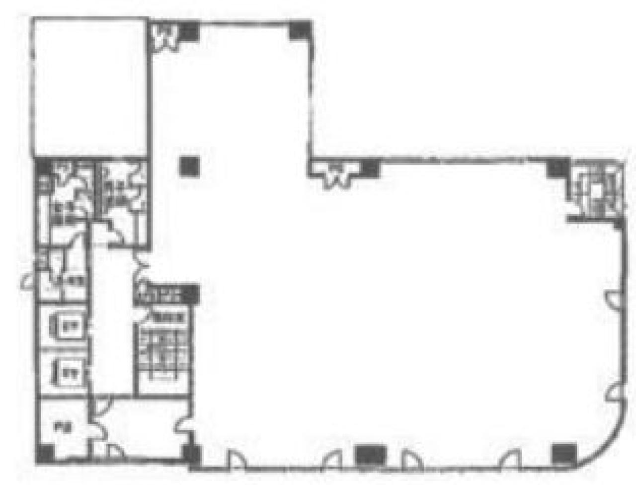
6F

127.15 坪

420.33 ㎡

※現在空室情報はございません

※現在空室情報は
ございません

最新情報を
確認する
  • MIテラス北上野
  • MIテラス北上野
  • MIテラス北上野
  • MIテラス北上野
面積 賃料 共益費 敷金 入居日 お問合せ お気に入り
6F

127.15 坪

420.33 ㎡

※現在空室情報はございません

※現在空室情報は
ございません

最新情報を
確認する

周辺地図

MIテラス北上野(旧:ユニゾ北上野二丁目ビル)は、台東区北上野にある地下1階、地上10階建ての賃貸事務所です。最寄駅は東京メトロ日比谷線の入谷駅から徒歩5分、JR線の巣鴨駅から徒歩8分、JR線の上野駅から徒歩10分、JR線の鶯谷駅から徒歩8分です。1992年竣工の基準階面積が127.19坪の鉄骨鉄筋コンクリート造です。設備としては、エレベーターが2基あります。駐車場もあります。セキュリティは機械警備です。トイレは男女別です。空調は個別空調です。天高は2500mmです。耐震設計となっている、複数路線利用可能なアクセスの良い台東区北上野の賃貸オフィスです。

全フロア情報

更新日:2026年4月7日

面積 賃料 共益費 敷金 入居日 お問合せ お気に入り
3F

111.41 坪

368.3 ㎡

相談

12ヶ月

相談 お問い合わせ お気に入り
4F

111.41 坪

368.3 ㎡

※現在空室情報はございません

※現在空室情報は
ございません

最新情報を
確認する
5F

127.15 坪

420.33 ㎡

※現在空室情報はございません

※現在空室情報は
ございません

最新情報を
確認する
6F

127.15 坪

420.33 ㎡

※現在空室情報はございません

※現在空室情報は
ございません

最新情報を
確認する
7F

127.15 坪

420.33 ㎡

※現在空室情報はございません

※現在空室情報は
ございません

最新情報を
確認する
8F

127.19 坪

420.46 ㎡

※現在空室情報はございません

※現在空室情報は
ございません

最新情報を
確認する
9F

127.19 坪

420.46 ㎡

※現在空室情報はございません

※現在空室情報は
ございません

最新情報を
確認する
10F

116.82 坪

386.18 ㎡

※現在空室情報はございません

※現在空室情報は
ございません

最新情報を
確認する

お問い合わせ

必須
必須
必須
必須
必須

似た条件の物件はこちら

関連エリアから探す

駅から探す

お問い合わせ

物件に関してのお問い合わせ

「失敗しないオフィス移転サポート」物件探しから移転までスムーズで担当者様がとにかく楽になるサービスです。

050-7587-0049平日 9:00~18:00

メールでお問い合わせ

フリーワード検索