名鉄不動産竹橋ビル(物件No:41383008)
名鉄不動産竹橋ビルは、千代田区神田錦町にある貸事務所物件で最寄り駅は地下鉄東西線竹橋駅、都営三田線神保町駅、都営新宿線小川町駅です。1992年竣工で基準階が85坪の賃貸オフィスビルです。床はOAフロアで天井の高さは2500mm。トイレは室外男女別で、空調は個別空調です。エレベーターは1基あり、セキュリティは機械警備となっています。複数路線利用可能で、落ち着いた雰囲気の街並みに位置する千代田区神田錦町の貸事務所です。
-
物件情報
-
設備情報
- トイレ
- 室外男女別
- 床
- フリーアクセス
- 空調
- 個別空調
- セキュリティ
- 有
- 駐車場
- 無
- 会議室
- -
- エレベーター
- 1基
- 天井高
- 2500mm
-
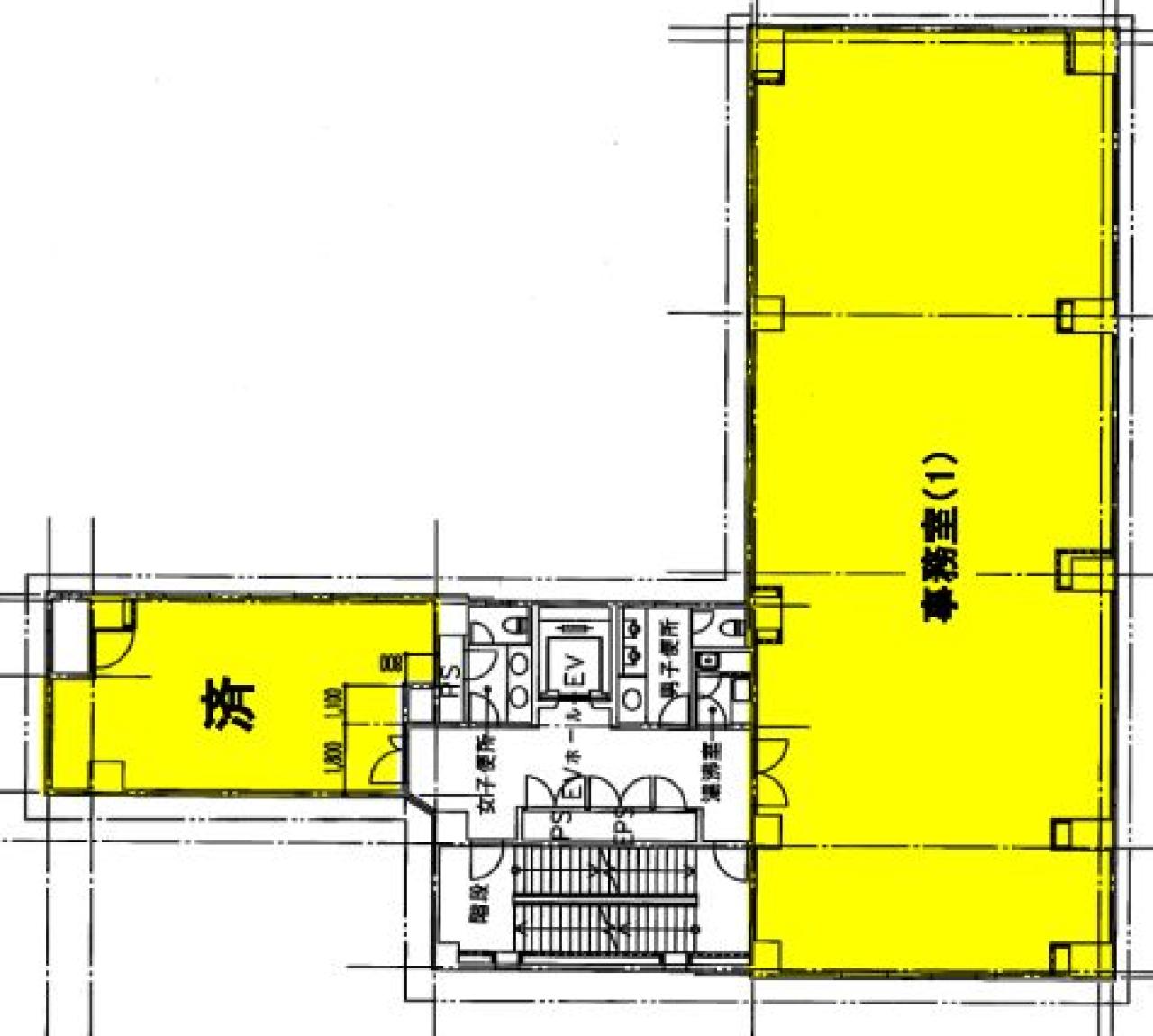
間取り図
-
近隣相場情報
神田錦町3丁目(50~100坪)の相場
18500 円 (坪)
※ビルサク調べ
周辺施設情報
| コンビニ |
セブンイレブン/神田錦町千代田通り/110m(徒歩1分) まいばすけっと/神田駅西店/500m(徒歩7分) |
|---|---|
| 郵便局/銀行 |
イーネット/生活彩家神田錦町/[営業時間]6:00~20:00/14m(徒歩1分) イオン銀行/本店法人営業部/[営業時間]平日 9:00~17:00/350m(徒歩5分) |
| 飲食店 |
美味これくしょん 神田倶楽部/11時30分~14時00分、17時00分~22時00分/140m(徒歩2分) 泰南飯店/11時00分~15時00分、17時00分~22時30分/700m(徒歩9分) |
| カフェ |
茶房きゃんどる/10時00分~19時00分/500m(徒歩7分) 如水会館 カフェ&パブ マーキュリー/11時00分~22時00分/280m(徒歩4分) |
| コインパーキング |
SANパーク/千代田神田錦町 1 [料金] 7時~22時 30分400円 22時~7時 60分100円 [最大料金] 【日祝】昼(7時~22時)最大1900円 ※月-土適用なし 【全日】夜間(22時~7時)最大300円 [台数]車:2台 PEN/テラススクエア [料金] 【昼間】 7:00~23:00 400円 / 30分 【夜間】 23:00~翌7:00 100円 / 60分 [最大料金] 【24時間最大料金】 全日 3200円 [営業時間]7:00~23:00 |
周辺地図
名鉄不動産竹橋ビルは、千代田区神田錦町にある貸事務所物件で最寄り駅は地下鉄東西線竹橋駅、都営三田線神保町駅、都営新宿線小川町駅です。1992年竣工で基準階が85坪の賃貸オフィスビルです。床はOAフロアで天井の高さは2500mm。トイレは室外男女別で、空調は個別空調です。エレベーターは1基あり、セキュリティは機械警備となっています。複数路線利用可能で、落ち着いた雰囲気の街並みに位置する千代田区神田錦町の貸事務所です。
全フロア情報
更新日:2021年3月16日
| 階 | 面積 | 賃料 | 共益費 | 敷金 | 入居日 | お問合せ | お気に入り | |
|---|---|---|---|---|---|---|---|---|
| 2F |
70.27 坪 232.30 ㎡ |
※現在空室情報はございません |
※現在空室情報は 確認する |
|||||
| 3F |
71.45 坪 236.20 ㎡ |
※現在空室情報はございません |
※現在空室情報は 確認する |
|||||
| 4F |
68.00 坪 224.79 ㎡ |
※現在空室情報はございません |
※現在空室情報は 確認する |
|||||
| 5F |
65.77 坪 217.42 ㎡ |
※現在空室情報はございません |
※現在空室情報は 確認する |
|||||
|
7F
(3区画) |
24.30 坪 80.33 ㎡ |
※現在空室情報はございません |
※現在空室情報は 確認する |
|||||
お問い合わせ
似た条件の物件はこちら
-
M&Cビル
東京都千代田区神田小川町2-3-13
坪数:62.21 坪
坪単価:14,500 円(坪)
-
ACN神田司町ビル
東京都千代田区神田司町2-7-1
坪数:59.04 坪
坪単価:30,000 円(坪)
-
藤和内神田ビル
東京都千代田区内神田2-4-4
坪数:66.32 坪
坪単価:12,000 円(坪)
-
神田大木ビル
東京都千代田区神田鍛冶町3-3-3
坪数:76.74 坪
坪単価:16,250 円(坪)
-
ニューイワサキビル
東京都千代田区神田佐久間町4-14
坪数:65.6 坪
坪単価:13,000 円(坪)
-
村田ビルディング
東京都千代田区神田駿河台2-5
坪数:66.61 坪
坪単価:18,000 円(坪)
-
冨士エレベータービル
東京都千代田区内神田3-4-6
坪数:61.85 坪
坪単価:16,000 円(坪)
-
THE PORTAL IWAMOTOCHO
東京都千代田区岩本町2-8-8
坪数:69.66 坪
坪単価:24,000 円(坪)
-
菱和ビルディング
東京都千代田区神田駿河台3-6-1
坪数:65.78 坪
坪単価:20,000 円(坪)
-
山崎共同ビル
東京都千代田区岩本町1-12-3
坪数:63.99 坪
坪単価:10,002 円(坪)
関連エリアから探す
- 内神田
- 神田淡路町
- 神田小川町
- 神田鍛冶町
- 神田須田町
- 神田駿河台
- 神田多町
- 神田司町
- 神田錦町
- 神田美土代町
- 岩本町
- 鍛冶町
- 神田岩本町
- 神田北乗物町
- 神田紺屋町
- 神田富山町
- 神田西福田町
- 神田東松下町
- 神田東紺屋町
- 神田美倉町
- 東神田
- 神田相生町
- 神田和泉町
- 神田佐久間町
- 神田佐久間河岸
- 神田練塀町
- 神田花岡町
- 神田松永町
- 外神田
- 神田平河町