ドゥーミラン銀座(物件No:41286132)
ドゥーミラン銀座は、中央区銀座にある貸事務所物件で、最寄り駅は地下鉄有楽町線の銀座一丁目駅です。2001年竣工の物件で、1フロア24坪ほどの賃貸オフィスビルです。新耐震に適合しており、EVは1基、駐車場はありません。床はOAフロアで、個別空調です。他にJR有楽町線と銀座線京橋駅からもアクセスの良い中央区銀座の貸事務所です。
| 階 | 面積 | 賃料 | 共益費 | 敷金 | 入居日 | お問合せ | お気に入り |
|---|---|---|---|---|---|---|---|
| 3F |
24.01 坪 79.37 ㎡ |
相談 |
72,030 円 3,000 円(坪) |
12ヶ月 |
2026/05/01 |
|
|
| 階 | 面積 | 賃料 | 共益費 | 敷金 | 入居日 | お問合せ | お気に入り |
|---|---|---|---|---|---|---|---|
| 3F |
24.01 坪 79.37 ㎡ |
相談 |
72,030 円 3,000 円(坪) |
12ヶ月 |
2026/05/01 |
|
|
-
物件情報
-
設備情報
- トイレ
- 男女共用
- 床
- フリーアクセス
- 空調
- 個別空調
- セキュリティ
- 有
- 駐車場
- 無
- 会議室
- -
- エレベーター
- 1基
- 天井高
- 2450mm
-
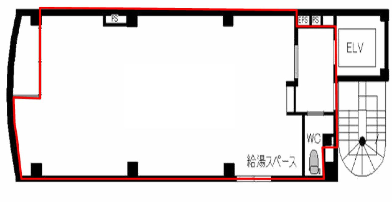
間取り図
-
近隣相場情報
銀座1丁目(20~30坪)の相場
16433 円 (坪)
※ビルサク調べ
周辺施設情報
| コンビニ |
ファミリーマート/銀座二丁目店/130m(徒歩2分) セブンイレブン 銀座通り口店/150m(徒歩2分) |
|---|---|
| 郵便局/銀行 |
西京信用金庫/銀座支店/電話番号03-3567-1011/43m(徒歩1分) 三菱UFJ銀行/京橋支店/[営業時間] [窓口]平日 9:00~15:00 土曜日 - 日曜日 -/150m(徒歩2分) |
| 飲食店 |
岩戸 銀座店/11時30分~22時30分/12m(徒歩1分) 銀座のジンジャー 銀座本店/11時00分~20時00分/15m(徒歩1分) |
| カフェ |
カフェフレディ 銀座店/ 11時00分~20時30分/86m(徒歩1分) ドトール/銀座2丁目店/[営業時間]平 日:07:00 - 21:00 土曜日:08:00 - 21:00 日 祝:08:00 - 21:00/140m(徒歩2分) |
| コインパーキング |
コインパーク/銀座1丁目第2 [料金] [料金]【全日】 【オールタイム(24時間)】20分500円 【8:00~20:00】4200円 【20:00~8:00】2000円 [台数][車: 4台] 三井のリパーク/銀座越後屋ビル駐車場 [料金] [料金]全日 08:00~00:00 30分/300円、全日 00:00~08:00 30分/300円 [最大料金] 最大料金 入庫当日24:00迄 2,000円、夜間24:00-8:00迄入出庫不可 24:00-8:00迄1,000円 [台数]30? |
周辺地図
ドゥーミラン銀座は、中央区銀座にある貸事務所物件で、最寄り駅は地下鉄有楽町線の銀座一丁目駅です。2001年竣工の物件で、1フロア24坪ほどの賃貸オフィスビルです。新耐震に適合しており、EVは1基、駐車場はありません。床はOAフロアで、個別空調です。他にJR有楽町線と銀座線京橋駅からもアクセスの良い中央区銀座の貸事務所です。
全フロア情報
更新日:2026年2月13日
| 階 | 面積 | 賃料 | 共益費 | 敷金 | 入居日 | お問合せ | お気に入り | |
|---|---|---|---|---|---|---|---|---|
| 1F |
10.95 坪 36.2 ㎡ |
※現在空室情報はございません |
※現在空室情報は 確認する |
|||||
| 2F |
24.01 坪 79.37 ㎡ |
※現在空室情報はございません |
※現在空室情報は 確認する |
|||||
| 3F |
24.01 坪 79.37 ㎡ |
相談 |
72,030 円 3,000 円(坪) |
12ヶ月 |
2026/05/01 |
|
|
|
| 5F |
24.07 坪 79.57 ㎡ |
※現在空室情報はございません |
※現在空室情報は 確認する |
|||||
| 6F |
24.07 坪 79.57 ㎡ |
※現在空室情報はございません |
※現在空室情報は 確認する |
|||||
| 7F |
24.07 坪 79.57 ㎡ |
※現在空室情報はございません |
※現在空室情報は 確認する |
|||||
お問い合わせ
似た条件の物件はこちら
-
SRビル
東京都中央区銀座8-12-3
坪数:19.16 坪
坪単価:20,000 円(坪)
-
銀座秀芳ビル
東京都中央区銀座7-10-18
坪数:21.58 坪
坪単価:24,004 円(坪)
-
杉山ビル
東京都中央区銀座7-14-15
坪数:22.8 坪
坪単価:14,035 円(坪)
-
第2五味ビル
東京都中央区銀座1-14-5
坪数:26 坪
坪単価:13,000 円(坪)
-
銀座ワカホビル
東京都中央区銀座5-14-8
坪数:24 坪
坪単価:17,000 円(坪)
-
TRUST VALUE銀座一丁目Ⅱ
東京都中央区銀座1-22-9
坪数:25.36 坪
坪単価:22,279 円(坪)
-
銀座清和ビル
東京都中央区銀座1-20-5
坪数:26.16 坪
坪単価:13,795 円(坪)
-
東銀1ビル
東京都中央区銀座3-10-14
坪数:22 坪
坪単価:19,000 円(坪)
-
銀座三真ビル
東京都中央区銀座5-15-19
坪数:23.3 坪
坪単価:22,002 円(坪)
-
マロニエ通り銀座館
東京都中央区銀座2-10-11
坪数:25.33 坪
坪単価:44,414 円(坪)