築地616ビル(物件No:41283133)
築地616ビルは、中央区築地にある地下1階、地上9階建ての賃貸オフィスです。最寄駅は東京メトロ日比谷線の築地駅から徒歩8分、都営大江戸線の勝どき駅から徒歩8分です。1994年3月竣工の基準階面積が101.36坪の鉄骨鉄筋コンクリート造です。設備としては、エレベーターが2基あり、駐車場もあります。セキュリティは機械警備です。トイレは室外男女別です。空調は個別空調です。床仕様はフリーアクセスです。天高は2680mmです。コンビニや飲食店などの周辺施設が充実した中央区築地の賃貸事務所です。
| 階 | 面積 | 賃料 | 共益費 | 敷金 | 入居日 | お問合せ | お気に入り |
|---|---|---|---|---|---|---|---|
| 3F |
114.6 坪 378.84 ㎡ |
相談 |
343,800 円 3,000 円(坪) |
12ヶ月 |
2026/04/01 |
|
|
| 階 | 面積 | 賃料 | 共益費 | 敷金 | 入居日 | お問合せ | お気に入り |
|---|---|---|---|---|---|---|---|
| 3F |
114.6 坪 378.84 ㎡ |
相談 |
343,800 円 3,000 円(坪) |
12ヶ月 |
2026/04/01 |
|
|
-
物件情報
-
設備情報
- トイレ
- 男女別
- 床
- フリーアクセス
- 空調
- 個別空調
- セキュリティ
- 有
- 駐車場
- 有
- 会議室
- -
- エレベーター
- 2基
- 天井高
- 2550mm
-
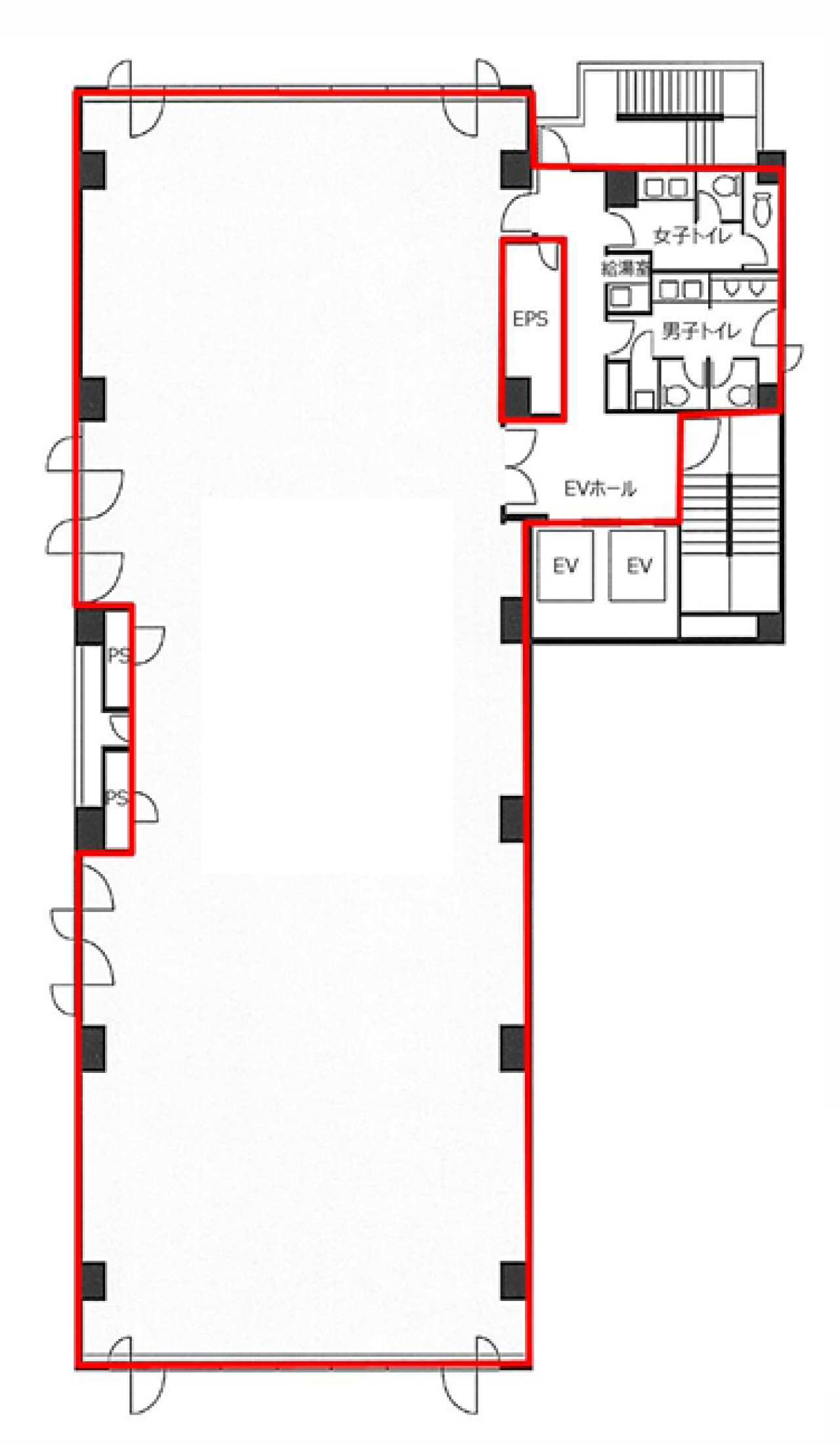
間取り図
-
近隣相場情報
築地6丁目(100坪以上)の相場
23206 円 (坪)
※ビルサク調べ
周辺施設情報
| コンビニ |
ローソン/築地六丁目/1m(徒歩1分) ローソン100/築地七丁目/280m(徒歩4分) |
|---|---|
| 郵便局/銀行 |
みずほ銀行/ATM ニチレイ東銀座ビル出張所/[営業時間] [ATM]平日 8:00~21:00 土曜日 9:00~17:00 日曜日 非稼働 /150m(徒歩2分) イーネット/ファミリーマート築地市場前/[営業時間]0:00~24:00/250m(徒歩4分) |
| 飲食店 |
天竹/11時30分~22時00分/14m(徒歩1分) 吉野家 築地東店/24 時間営業/130m(徒歩2分) |
| カフェ |
プロント/築地本願寺カフェ Tsumugi店/[営業時間]平日:カフェ 8:00~21:00 土曜:カフェ 8:00~21:00 日曜:カフェ 8:00~21:00 祝日:カフェ 8:00~21:00/650m(徒歩8分) ドトール/勝どき店/[営業時間]平日:7:30~21:00 土曜日:8:00~19:00 日 祝:9:00~19:00/350m(徒歩4分) |
| コインパーキング |
タイムズ駐車場/築地6丁目第4 [料金] [料金] [月~土]通常料金 / 8:00~20:00 15分 440円 20:00~8:00 60分 110円 [日・祝]通常料金 / 8:00~20:00 30分 440円 20:00~8:00 60分 110円 [最大料金] [料金] [月~土]駐車後5時間 最大料金2750円 [日・祝]駐車後5時間 最大料金2750円 [台数]6 三井のリパーク/築地6丁目 [料金] [料金]全日 08:00~20:00 15分/400円 全日 20:00~08:00 120分/100円 [最大料金] [料金] 最大料金 【全日】最大料金入庫後6時間以内2800円 [台数]3 |
周辺地図
築地616ビルは、中央区築地にある地下1階、地上9階建ての賃貸オフィスです。最寄駅は東京メトロ日比谷線の築地駅から徒歩8分、都営大江戸線の勝どき駅から徒歩8分です。1994年3月竣工の基準階面積が101.36坪の鉄骨鉄筋コンクリート造です。設備としては、エレベーターが2基あり、駐車場もあります。セキュリティは機械警備です。トイレは室外男女別です。空調は個別空調です。床仕様はフリーアクセスです。天高は2680mmです。コンビニや飲食店などの周辺施設が充実した中央区築地の賃貸事務所です。
全フロア情報
更新日:2025年10月31日
| 階 | 面積 | 賃料 | 共益費 | 敷金 | 入居日 | お問合せ | お気に入り | |
|---|---|---|---|---|---|---|---|---|
| 1F |
52.88 坪 174.81 ㎡ |
※現在空室情報はございません |
※現在空室情報は 確認する |
|||||
| 2F |
114.6 坪 378.84 ㎡ |
※現在空室情報はございません |
※現在空室情報は 確認する |
|||||
| 3F |
114.6 坪 378.84 ㎡ |
相談 |
343,800 円 3,000 円(坪) |
12ヶ月 |
2026/04/01 |
|
|
|
| 6F |
114.6 坪 378.84 ㎡ |
※現在空室情報はございません |
※現在空室情報は 確認する |
|||||
| 7F |
114.6 坪 378.84 ㎡ |
※現在空室情報はございません |
※現在空室情報は 確認する |
|||||
お問い合わせ
似た条件の物件はこちら
-
THE TERRACE TSUKIJI
東京都中央区築地7-2-1
坪数:105.13 坪
坪単価:26,000 円(坪)
-
築地スクエアビル
東京都中央区築地3-11-6
坪数:110 坪
坪単価:16,000 円(坪)
-
ビルネット築地ビル
東京都中央区築地2-12-10
坪数:88.55 坪
坪単価:11,000 円(坪)
-
ザ・パークレックス新富町
東京都中央区新富1-9-6
坪数:100.44 坪
坪単価:18,000 円(坪)
-
銀座松竹スクエア
東京都中央区築地1-13-1
坪数:116.03 坪
坪単価:25,998 円(坪)
-
築地アサカワビル
東京都中央区明石町11-3
坪数:84.53 坪
坪単価:10,908 円(坪)