八丁堀NFビル(物件No:41184183)
八丁堀NFビルは、中央区八丁堀にある貸事務所物件です。最寄駅は東京メトロ日比谷線、JR八丁堀駅、東京メトロ東西線茅場町駅、都営浅草線宝町駅となっています。1990年竣工で、基準階が117.63坪の賃貸オフィスビルです。床はOAフロアで、天井の高さは2550mm。トイレは室内男女共用で、空調は個別空調です。エレベーターは2基あり、セキュリティは機械警備となっています。駐車場が利用可能です。最寄駅から徒歩1分。複数路線利用可能で交通アクセスの良い、中央区八丁堀の貸事務所です。
-
物件情報
-
設備情報
- トイレ
- 室内男女共用
- 床
- フリーアクセス
- 空調
- 個別空調
- セキュリティ
- 有
- 駐車場
- 有
- 会議室
- -
- エレベーター
- 2基
- 天井高
- 2550mm
-
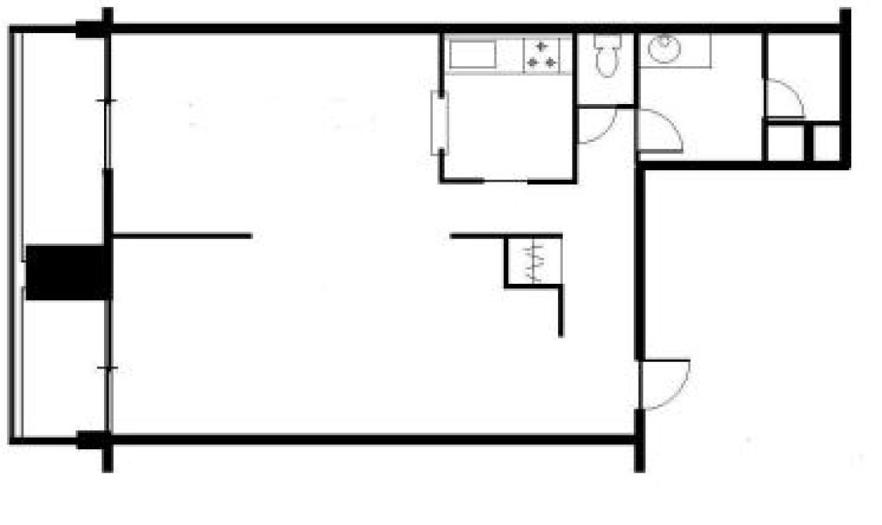
間取り図
-
近隣相場情報
八丁堀2丁目(50~100坪)の相場
24786 円 (坪)
※ビルサク調べ
周辺施設情報
| コンビニ |
ファミリーマート/八丁堀駅前店/110m(徒歩1分) ファミリーマート/八丁堀二丁目店/54m(徒歩1分) |
|---|---|
| 郵便局/銀行 |
セブン銀行/東京メトロ 日比谷線 八丁堀駅/[営業時間]5:00~24:00/130m(徒歩2分) イーネット/ファミリーマート八丁堀二丁目/[営業時間]0:00~24:00/54m(徒歩1分) |
| 飲食店 |
居酒屋 たなか畜産 八丁堀店/11時30分~0時00分/130m(徒歩2分) 原価ビストロBAN! 銀座八丁堀/11時30分~14時30分 17時00分~23時00分/79m(徒歩1分) |
| カフェ |
ドトール/八丁堀店/■通常営業時間 平日 7:00~19:30 土曜 7:30~16:00 日祝 9:00~16:00/140m(徒歩2分) プロント/八丁堀店/[営業時間]平日:カフェ 7:00~17:30 バー 17:30~22:00 土曜:カフェ 7:00~11:00 日曜:カフェ 7:00~11:00 祝日:カフェ 7:00~11:00/94m(徒歩1分) |
| コインパーキング |
名鉄協商パーキング/八丁堀駅前 [料金] [料金]全日 0:00~24:00 15分 400円 19:00~8:00 [最大料金] [料金]最大料金 600円 月~金・土 8:00~19:00 最大料金 4,100円 [料金] 日祝 8:00~19:00 最大料金 1,600円 [台数]3台 NPC24H/八丁堀3丁目第2 [料金] 通常料金【月~土】15分/200円(8時~22時)60分/100円(22時~8時) 通常料金【日祝】30分/200円(8時~22時)60分/100円(22時~8時) [最大料金] [料金]最大料金【月~土】区間最大 3800円(8時~22時) [料金]最大料金【日祝】区間最大 1000円(8時~22時) [台数]2台 |
周辺地図
八丁堀NFビルは、中央区八丁堀にある貸事務所物件です。最寄駅は東京メトロ日比谷線、JR八丁堀駅、東京メトロ東西線茅場町駅、都営浅草線宝町駅となっています。1990年竣工で、基準階が117.63坪の賃貸オフィスビルです。床はOAフロアで、天井の高さは2550mm。トイレは室内男女共用で、空調は個別空調です。エレベーターは2基あり、セキュリティは機械警備となっています。駐車場が利用可能です。最寄駅から徒歩1分。複数路線利用可能で交通アクセスの良い、中央区八丁堀の貸事務所です。
全フロア情報
更新日:2026年2月26日
| 階 | 面積 | 賃料 | 共益費 | 敷金 | 入居日 | お問合せ | お気に入り | |
|---|---|---|---|---|---|---|---|---|
| 2F |
79.6 坪 263.14 ㎡ |
※現在空室情報はございません |
※現在空室情報は 確認する |
|||||
| 8F |
117.63 坪 388.86 ㎡ |
※現在空室情報はございません |
※現在空室情報は 確認する |
|||||
| 9F |
26.12 坪 86.35 ㎡ |
※現在空室情報はございません |
※現在空室情報は 確認する |
|||||
|
9F
(903区画) |
30.08 坪 99.44 ㎡ |
545,000 円 18,118 円(坪) |
込 |
3,270,000 円 6 ヶ月 |
2026/06 |
|
|
|
お問い合わせ
似た条件の物件はこちら
-
ONE SHINKAWA
東京都中央区新川1-23-5
坪数:68.46 坪
坪単価:20,000 円(坪)
-
京橋北見ビル東館
東京都中央区八丁堀3-4-10
坪数:65.85 坪
坪単価:12,000 円(坪)
-
八丁堀サード
東京都中央区八丁堀3-14-4
坪数:65.9 坪
坪単価:23,000 円(坪)
-
SHビル
東京都中央区新川2-9-9
坪数:68.25 坪
坪単価:10,500 円(坪)
-
KYOE PLAZA KAYABACHOⅡ
東京都中央区日本橋茅場町1-11-9
坪数:71.68 坪
坪単価:29,000 円(坪)
-
馬事畜産会館
東京都中央区新川2-6-16
坪数:66.27 坪
坪単価:13,225 円(坪)
-
茅場町偕成ビル
東京都中央区日本橋茅場町2-3-6
坪数:67.97 坪
坪単価:23,000 円(坪)
-
第3大倉ビル
東京都中央区日本橋茅場町2-17-7
坪数:82.4 坪
坪単価:10,000 円(坪)
-
金盃第3ビル
東京都中央区新川1-14-5
坪数:93.37 坪
坪単価:8,000 円(坪)
-
グリンヒルビル
東京都中央区日本橋茅場町1-10-8
坪数:64.89 坪
坪単価:14,000 円(坪)