アセンド目黒駅前ビル(物件No:41182198)
アセンド目黒駅前ビルは品川区上大崎にある地下1階、地上7階建ての賃貸事務所です。最寄駅はJR線の目黒駅から徒歩1分です。1996年2月竣工の鉄骨造です。設備としては、空調は個別空調です。床仕様はフリーアクセスです。耐震設計となっている、最寄駅から近くて便利な品川区上大崎の賃貸オフィスです。
| 階 | 面積 | 賃料 | 共益費 | 敷金 | 入居日 | お問合せ | お気に入り |
|---|---|---|---|---|---|---|---|
| 5F |
48.56 坪 160.53 ㎡ |
未定 |
込 |
12ヶ月 |
2026/07/01 |
|
|
| 階 | 面積 | 賃料 | 共益費 | 敷金 | 入居日 | お問合せ | お気に入り |
|---|---|---|---|---|---|---|---|
| 5F |
48.56 坪 160.53 ㎡ |
未定 |
込 |
12ヶ月 |
2026/07/01 |
|
|
-
物件情報
-
設備情報
- トイレ
- 室内男女別
- 床
- -
- 空調
- 個別空調
- セキュリティ
- -
- 駐車場
- -
- 会議室
- -
- エレベーター
- -
- 天井高
- -
-
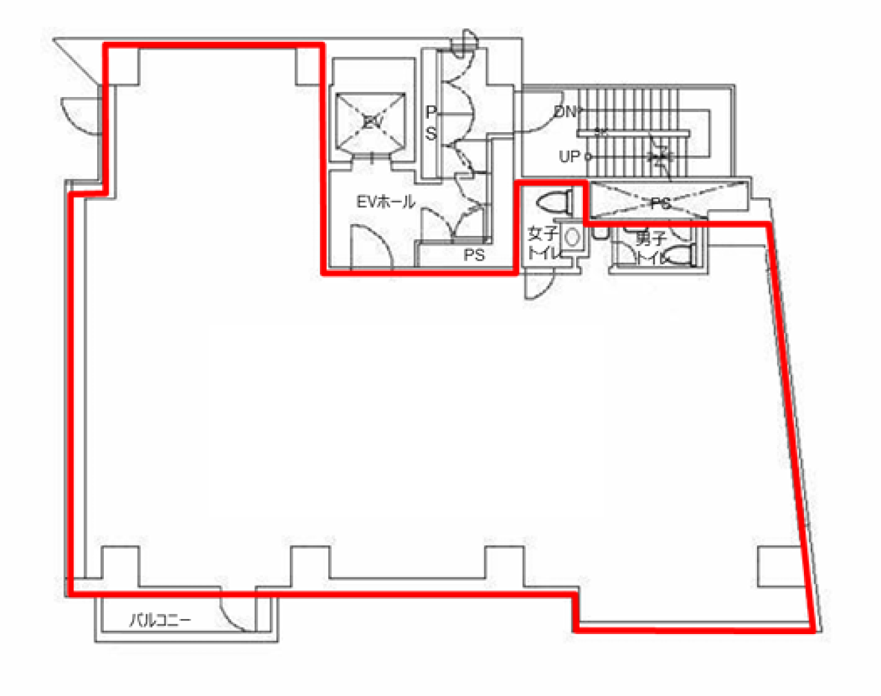
間取り図
-
近隣相場情報
上大崎2丁目(40~50坪)の相場
33000 円 (坪)
※ビルサク調べ
周辺地図
アセンド目黒駅前ビルは品川区上大崎にある地下1階、地上7階建ての賃貸事務所です。最寄駅はJR線の目黒駅から徒歩1分です。1996年2月竣工の鉄骨造です。設備としては、空調は個別空調です。床仕様はフリーアクセスです。耐震設計となっている、最寄駅から近くて便利な品川区上大崎の賃貸オフィスです。
全フロア情報
更新日:2026年2月9日
| 階 | 面積 | 賃料 | 共益費 | 敷金 | 入居日 | お問合せ | お気に入り | |
|---|---|---|---|---|---|---|---|---|
| 5F |
48.56 坪 160.53 ㎡ |
未定 |
込 |
12ヶ月 |
2026/07/01 |
|
|
|
| 6F |
48.56 坪 160.53 ㎡ |
未定 |
込 |
12ヶ月 |
2026/07/01 |
|
|
|
|
7F
(1区画) |
46.13 坪 152.5 ㎡ |
※現在空室情報はございません |
※現在空室情報は 確認する |
|||||
お問い合わせ
似た条件の物件はこちら
-
ファミネスハイツ海老澤
東京都品川区大崎4-6-8
坪数:39 坪
坪単価:10,256 円(坪)
-
THE GATE GOTANDA EAST
東京都品川区東五反田1-25-11
坪数:53.8 坪
坪単価:27,000 円(坪)
-
三信ビル
東京都品川区西五反田3-7-14
坪数:42.97 坪
坪単価:14,500 円(坪)
-
セラヴィ五反田
東京都品川区西五反田2-13-6
坪数:49.23 坪
坪単価:12,000 円(坪)
-
THE CROSS GOTANDA
東京都品川区西五反田2-24-4
坪数:56.73 坪
坪単価:26,000 円(坪)
-
いちご西五反田ビル
東京都品川区西五反田3-6-20
坪数:44.59 坪
坪単価:15,034 円(坪)
-
リードシー目黒不動前ビル
東京都品川区西五反田3-15-6
坪数:39.45 坪
坪単価:23,000 円(坪)
-
第五花田ビル
東京都品川区西五反田7-11-1
坪数:40.9 坪
坪単価:21,000 円(坪)
-
高徳ビル
東京都品川区大崎5-1-5
坪数:54.81 坪
坪単価:18,000 円(坪)
-
須賀ビル
東京都品川区東五反田1-14-11
坪数:50.97 坪
坪単価:20,012 円(坪)