神谷町MTビル(物件No:41086185)
神谷町MTビルは、港区虎ノ門にある貸事務所物件です。最寄り駅は東京メトロ日比谷線神谷町駅、南北線六本木一丁目駅、都営三田線御成門駅です。1993年竣工で基準階が346.20坪の賃貸オフィスビルです。床はOAフロアで、天井の高さは2700mm。トイレは室外男女別で、空調はセントラル空調です。エレベーターは5基あります。複数路線利用可能で交通アクセスの良い、港区虎ノ門の貸事務所です。
| 階 | 面積 | 賃料 | 共益費 | 敷金 | 入居日 | お問合せ | お気に入り |
|---|---|---|---|---|---|---|---|
|
16F
(2区画) |
163.7 坪 541.16 ㎡ |
相談 |
相談 |
相談 |
2026/06 |
|
|
| 階 | 面積 | 賃料 | 共益費 | 敷金 | 入居日 | お問合せ | お気に入り |
|---|---|---|---|---|---|---|---|
|
16F
(2区画) |
163.7 坪 541.16 ㎡ |
相談 |
相談 |
相談 |
2026/06 |
|
|
-
物件情報
-
設備情報
- トイレ
- 室外男女別
- 床
- フリーアクセス
- 空調
- セントラル空調
- セキュリティ
- 無
- 駐車場
- 有
- 会議室
- -
- エレベーター
- 5基
- 天井高
- 2700mm
-
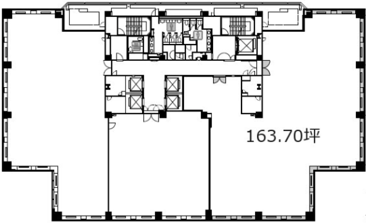
間取り図
-
近隣相場情報
虎ノ門4丁目(100坪以上)の相場
32571 円 (坪)
※ビルサク調べ
周辺施設情報
| コンビニ |
ファミリーマート/神谷町MTビル店/7m(徒歩1分) セブンイレブン/神谷町駅北/300m(徒歩3分) |
|---|---|
| 郵便局/銀行 |
郵便局/神谷町/[駐車場]なし [取扱]貯金/保険/ATM/140m(徒歩1分) みずほ銀行/神谷町支店/[営業時間]窓口 平日9:00~15:00 ATM 平日 /Monday - Friday 6:00~26:00 土曜日/Saturday 8:00~22:00 日曜日/Sunday 8:00~21:00 祝日・振替休日 /Public Holidays 8:00~21:00 備考 *月曜日の6:0/87m(徒歩1分) |
| 飲食店 |
吉野家 神谷町店/5時00分~1時00分/250m(徒歩3分) 北大路 虎ノ門茶寮/11時30分~13時00分、17時00分~21時00分/300m(徒歩4分) |
| カフェ |
上島珈琲店/神谷町駅前店/[営業時間]平日 7:00~21:00 / 土日祝 9:00~19:00 [休業日]なし/240m(徒歩3分) ドトール/神谷町店/[営業時間]平 日:07:00 - 20:00 土曜日:08:00 - 16:00 日 祝:- [休業日]日曜、祝日/130m(徒歩1分) |
| コインパーキング |
タイムズ駐車場/ヒューリック神谷町ビル [料金] [料金] 通常料金 / 07:00-22:00 30分 400円 22:00-07:00 30分 100円 [最大料金] [全日]07:00-22:00 最大料金2800円 22:00-07:00 最大料金1000円 [台数]29 三井のリパーク/虎ノ門3丁目時間貸バイク駐車場 [料金] [料金]全日 00:00~24:00 60分/200円 [最大料金] 最大料金 【全日】最大料金入庫後24時間以内1000円 [台数]14 |
周辺地図
神谷町MTビルは、港区虎ノ門にある貸事務所物件です。最寄り駅は東京メトロ日比谷線神谷町駅、南北線六本木一丁目駅、都営三田線御成門駅です。1993年竣工で基準階が346.20坪の賃貸オフィスビルです。床はOAフロアで、天井の高さは2700mm。トイレは室外男女別で、空調はセントラル空調です。エレベーターは5基あります。複数路線利用可能で交通アクセスの良い、港区虎ノ門の貸事務所です。
全フロア情報
更新日:2026年1月15日
| 階 | 面積 | 賃料 | 共益費 | 敷金 | 入居日 | お問合せ | お気に入り | |
|---|---|---|---|---|---|---|---|---|
| 2F |
153.5 坪 507.44 ㎡ |
※現在空室情報はございません |
※現在空室情報は 確認する |
|||||
|
2F
(1区画) |
153.5 坪 507.44 ㎡ |
※現在空室情報はございません |
※現在空室情報は 確認する |
|||||
|
2F
(2区画) |
124.3 坪 410.91 ㎡ |
※現在空室情報はございません |
※現在空室情報は 確認する |
|||||
|
2F
(3区画) |
50.1 坪 165.62 ㎡ |
※現在空室情報はございません |
※現在空室情報は 確認する |
|||||
|
2F
(4区画) |
49.8 坪 164.63 ㎡ |
※現在空室情報はございません |
※現在空室情報は 確認する |
|||||
| 3F |
360 坪 1190.08 ㎡ |
相談 |
相談 |
相談 |
即日 |
|
|
|
| 5F |
346.28 坪 1144.74 ㎡ |
相談 |
無 |
12か月 |
2026/08 |
|
|
|
| 10F |
226 坪 747.11 ㎡ |
※現在空室情報はございません |
※現在空室情報は 確認する |
|||||
|
10F
(1区画) |
229 坪 757.02 ㎡ |
※現在空室情報はございません |
※現在空室情報は 確認する |
|||||
|
10F
(2区画) |
63 坪 208.26 ㎡ |
※現在空室情報はございません |
※現在空室情報は 確認する |
|||||
|
10F
(3区画) |
119.7 坪 395.7 ㎡ |
※現在空室情報はございません |
※現在空室情報は 確認する |
|||||
|
10F
(4区画) |
163.4 坪 540.16 ㎡ |
相談 |
相談 |
相談 |
即日 |
|
|
|
| 11F |
335.7 坪 1109.75 ㎡ |
相談 |
無 |
12か月 |
2026/12 |
|
|
|
| 12F |
335.7 坪 1109.75 ㎡ |
※現在空室情報はございません |
※現在空室情報は 確認する |
|||||
| 13F |
146.6 坪 484.64 ㎡ |
相談 |
無 |
12ヶ月 |
2026/11 |
|
|
|
|
13F
(1区画) |
54.4 坪 179.83 ㎡ |
※現在空室情報はございません |
※現在空室情報は 確認する |
|||||
|
13F
(2区画) |
57.6 坪 190.41 ㎡ |
※現在空室情報はございません |
※現在空室情報は 確認する |
|||||
| 15F |
342.07 坪 1130.82 ㎡ |
相談 |
無 |
12か月 |
2026/11 |
|
|
|
|
15F
(1区画) |
218.5 坪 722.31 ㎡ |
※現在空室情報はございません |
※現在空室情報は 確認する |
|||||
|
15F
(2区画) |
6.6 坪 21.82 ㎡ |
※現在空室情報はございません |
※現在空室情報は 確認する |
|||||
|
16F
(1区画) |
117.5 坪 388.43 ㎡ |
※現在空室情報はございません |
※現在空室情報は 確認する |
|||||
|
16F
(2区画) |
163.7 坪 541.16 ㎡ |
相談 |
相談 |
相談 |
2026/06 |
|
|
|
|
16F
(3区画) |
68.3 坪 225.78 ㎡ |
※現在空室情報はございません |
※現在空室情報は 確認する |
|||||
| 17F |
349.6 坪 1155.7 ㎡ |
※現在空室情報はございません |
※現在空室情報は 確認する |
|||||
| 18F |
65.7 坪 217.19 ㎡ |
※現在空室情報はございません |
※現在空室情報は 確認する |
|||||
|
18F
(1区画) |
65.7 坪 217.19 ㎡ |
※現在空室情報はございません |
※現在空室情報は 確認する |
|||||
|
18F
(2区画) |
150.11 坪 496.23 ㎡ |
※現在空室情報はございません |
※現在空室情報は 確認する |
|||||
|
18F
(3区画) |
13.5 坪 44.63 ㎡ |
※現在空室情報はございません |
※現在空室情報は 確認する |
|||||
|
18F
(4区画) |
163.6 坪 540.83 ㎡ |
※現在空室情報はございません |
※現在空室情報は 確認する |
|||||
|
18F
(5区画) |
120.87 坪 399.56 ㎡ |
相談 |
無 |
12ヶ月 |
2026/04 |
|
|
|
|
20F
(1区画) |
98.3 坪 324.96 ㎡ |
※現在空室情報はございません |
※現在空室情報は 確認する |
|||||
お問い合わせ
似た条件の物件はこちら
-
御成門郵船ビル
東京都港区西新橋3-23-5
坪数:149.19 坪
坪単価:28,000 円(坪)
-
第2秋山ビルディング
東京都港区虎ノ門3-6-2
坪数:171.18 坪
坪単価:24,000 円(坪)