第三大丸ビル(物件No:41081059)
第三大丸ビルは、千代田区神田小川町にある貸事務所物件で、地下鉄千代田線新御茶ノ水駅、都営三田線、都営新宿線、東京メトロ半蔵門線の神保町駅です。1973年竣工で基準階が43坪の賃貸オフィスビルです。床は2WAYとなっています。トイレは男女別で、空調は個別空調です。エレベーターは1基あります。駐車場がございます。複数路線利用可能で交通アクセスの良い千代田区神田小川町の貸事務所です。
-
物件情報
-
設備情報
- トイレ
- 男女別
- 床
- 2WAY
- 空調
- 個別空調
- セキュリティ
- 無
- 駐車場
- 有
- 会議室
- -
- エレベーター
- 1基
- 天井高
- -
-
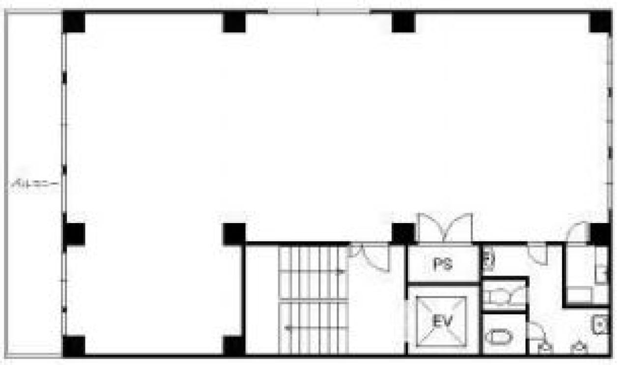
間取り図
-
近隣相場情報
神田小川町3丁目(20坪以下)の相場
26512 円 (坪)
※ビルサク調べ
周辺施設情報
| コンビニ |
ミニストップ/神田神保町1丁目店/250m(徒歩3分) ローソン/ナチュラル 日本大学病院/200m(徒歩2分) |
|---|---|
| 郵便局/銀行 |
郵便局/小川町/平日 9:00-18:00 土曜 - 日曜・祝日 - [ATM]平日 8:00-21:00 土曜 8:00-21:00 日曜・祝日 8:00-20:00/120m(徒歩1分) みずほ銀行/ATM 明治大学駿河台校舎出張所/[営業時間]ATM 平日 /Monday - Friday 8:45~19:00 土曜日/Saturday 9:00~17:00 日曜日/Sunday 非稼働 祝日・振替休日 /Public Holidays 非稼働 備考 *設置施設の休業日・休業時間帯は、一般のお客さまはご利用いただけません。 通/120m(徒歩1分) |
| 飲食店 |
紫紺館 椿山荘/11時30分~14時30分、17時30分~22時00分/57m(徒歩1分) かんだ串亭/17時30分~0時00分/250m(徒歩3分) |
| カフェ |
ドトール/神田駿河台店/[営業時間]平 日:07:00 - 20:00 土曜日:07:30 - 20:00 日 祝:08:00 - 19:00 [休業日]なし [備考]総席数:79 禁煙席:40 喫煙席:39/180m(徒歩2分) Woodstock Caf?/18時30分~23時30分/67m(徒歩1分) |
| コインパーキング |
GSパーク/駿河台 [料金] 【全日】 時間割料金 08:00~01:00 20分 400円 【全日】 時間割料金 01:00~08:00 60分 100円 [台数]4台 タイムズ駐車場/スーパースポーツゼビオ東京御茶ノ水本店 [料金] [全日]00:00-00:00 60分 600円 [最大料金] [全日]07:30-22:00 最大料金1000円 [全日]22:00-07:30 最大料金500円 [台数]53 |
周辺地図
第三大丸ビルは、千代田区神田小川町にある貸事務所物件で、地下鉄千代田線新御茶ノ水駅、都営三田線、都営新宿線、東京メトロ半蔵門線の神保町駅です。1973年竣工で基準階が43坪の賃貸オフィスビルです。床は2WAYとなっています。トイレは男女別で、空調は個別空調です。エレベーターは1基あります。駐車場がございます。複数路線利用可能で交通アクセスの良い千代田区神田小川町の貸事務所です。
全フロア情報
更新日:2022年5月13日
| 階 | 面積 | 賃料 | 共益費 | 敷金 | 入居日 | お問合せ | お気に入り | |
|---|---|---|---|---|---|---|---|---|
| 1F |
16.00 坪 52.89 ㎡ |
※現在空室情報はございません |
※現在空室情報は 確認する |
|||||
| 2F |
43.00 坪 142.15 ㎡ |
※現在空室情報はございません |
※現在空室情報は 確認する |
|||||
| 4F |
43.00 坪 142.15 ㎡ |
※現在空室情報はございません |
※現在空室情報は 確認する |
|||||
| 5F |
43.00 坪 142.15 ㎡ |
※現在空室情報はございません |
※現在空室情報は 確認する |
|||||
| 6F |
36.00 坪 119.01 ㎡ |
※現在空室情報はございません |
※現在空室情報は 確認する |
|||||
| 7F |
28.62 坪 94.61 ㎡ |
※現在空室情報はございません |
※現在空室情報は 確認する |
|||||
お問い合わせ
似た条件の物件はこちら
-
大手町ゲートビルディング
東京都千代田区内神田1-31-11
坪数:11.65 坪
坪単価:77,253 円(坪)
-
M&Cビル
東京都千代田区神田小川町2-3-13
坪数:15.73 坪
坪単価:18,000 円(坪)
-
アーバンスクエア神田ビル
東京都千代田区神田須田町1-18
坪数:14.18 坪
坪単価:17,000 円(坪)
-
第二櫻井ビル
東京都千代田区神田佐久間町3-5
坪数:17.24 坪
坪単価:11,996 円(坪)
-
矢板ビル
東京都千代田区内神田2-6-2
坪数:12.3 坪
坪単価:11,000 円(坪)
-
神田乗物町ビル
東京都千代田区神田北乗物町2
坪数:20.88 坪
坪単価:12,973 円(坪)
-
パレヤソジマ
東京都千代田区神田司町2-15-1
坪数:12.03 坪
坪単価:13,300 円(坪)
-
野沢ビル
東京都千代田区外神田6-7-4
坪数:14 坪
坪単価:12,143 円(坪)
-
藤和内神田ビル
東京都千代田区内神田2-4-4
坪数:18.49 坪
坪単価:16,500 円(坪)
-
昭和ビル
東京都千代田区神田和泉町1-2-5
坪数:16.5 坪
坪単価:11,000 円(坪)
関連エリアから探す
- 内神田
- 神田淡路町
- 神田小川町
- 神田鍛冶町
- 神田須田町
- 神田駿河台
- 神田多町
- 神田司町
- 神田錦町
- 神田美土代町
- 岩本町
- 鍛冶町
- 神田岩本町
- 神田北乗物町
- 神田紺屋町
- 神田富山町
- 神田西福田町
- 神田東松下町
- 神田東紺屋町
- 神田美倉町
- 東神田
- 神田相生町
- 神田和泉町
- 神田佐久間町
- 神田佐久間河岸
- 神田練塀町
- 神田花岡町
- 神田松永町
- 外神田
- 神田平河町