いろいろ聞いてみる

東日暮里の賃貸オフィス

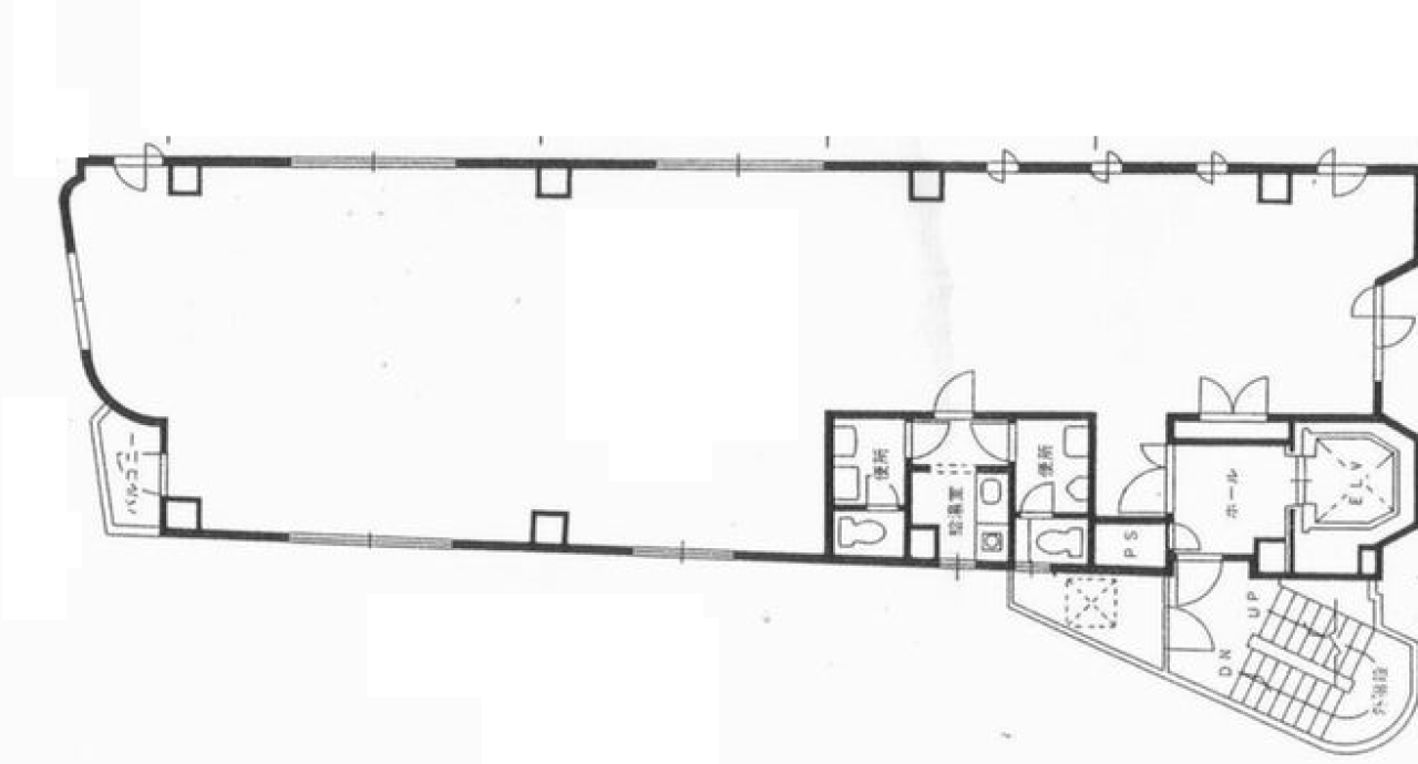
東栄産業日暮里駅前第Ⅲビル(物件No:40942889)

面積 賃料 共益費 敷金 入居日 お問合せ お気に入り
3F

41.97 坪

138.74 ㎡

※現在空室情報はございません

※現在空室情報は
ございません

最新情報を
確認する
面積 賃料 共益費 敷金 入居日 お問合せ お気に入り
3F

41.97 坪

138.74 ㎡

※現在空室情報はございません

※現在空室情報は
ございません

最新情報を
確認する

周辺地図

全フロア情報

更新日:2024年2月21日

面積 賃料 共益費 敷金 入居日 お問合せ お気に入り
3F

41.97 坪

138.74 ㎡

※現在空室情報はございません

※現在空室情報は
ございません

最新情報を
確認する
5F

41.97 坪

138.75 ㎡

377,730 円

9,000 円(坪)

41,970 円

1,000 円(坪)

1,510,920 円

4 ヶ月

即日 お問い合わせ お気に入り
9F

41.97 坪

138.75 ㎡

※現在空室情報はございません

※現在空室情報は
ございません

最新情報を
確認する

お問い合わせ

必須
必須
必須
必須
必須

お問い合わせ

物件に関してのお問い合わせ

「失敗しないオフィス移転サポート」物件探しから移転までスムーズで担当者様がとにかく楽になるサービスです。

050-7587-0049平日 9:00~18:00

メールでお問い合わせ

フリーワード検索