いろいろ聞いてみる

扇町の賃貸オフィス

日之出扇町ビル(物件No:40726955)

日之出扇町ビルは、神奈川県横浜市中区扇町にある地上10階建ての賃貸事務所です。最寄駅はJR根岸線の関内駅から徒歩8分、横浜市ブルーラインの伊勢佐木長者町駅から徒歩9分、JR根岸線の石川町駅から徒歩9分です。1973年2月竣工の鉄骨鉄筋コンクリート造です。設備としては、エレベーターが1基あります。トイレは室内男女別です。複数路線利用可能なアクセスの良い神奈川県横浜市中区扇町の賃貸オフィスです。

  • 日之出扇町ビル
  • 日之出扇町ビル
  • 日之出扇町ビル
  • 日之出扇町ビル
面積 賃料 共益費 敷金 入居日 お問合せ お気に入り
4F

(B区画)

19.32 坪

63.87 ㎡

※現在空室情報はございません

※現在空室情報は
ございません

最新情報を
確認する

周辺地図

日之出扇町ビルは、神奈川県横浜市中区扇町にある地上10階建ての賃貸事務所です。最寄駅はJR根岸線の関内駅から徒歩8分、横浜市ブルーラインの伊勢佐木長者町駅から徒歩9分、JR根岸線の石川町駅から徒歩9分です。1973年2月竣工の鉄骨鉄筋コンクリート造です。設備としては、エレベーターが1基あります。トイレは室内男女別です。複数路線利用可能なアクセスの良い神奈川県横浜市中区扇町の賃貸オフィスです。

全フロア情報

更新日:2024年10月9日

面積 賃料 共益費 敷金 入居日 お問合せ お気に入り
2F

51.33 坪

169.67 ㎡

※現在空室情報はございません

※現在空室情報は
ございません

最新情報を
確認する
4F

(A区画)

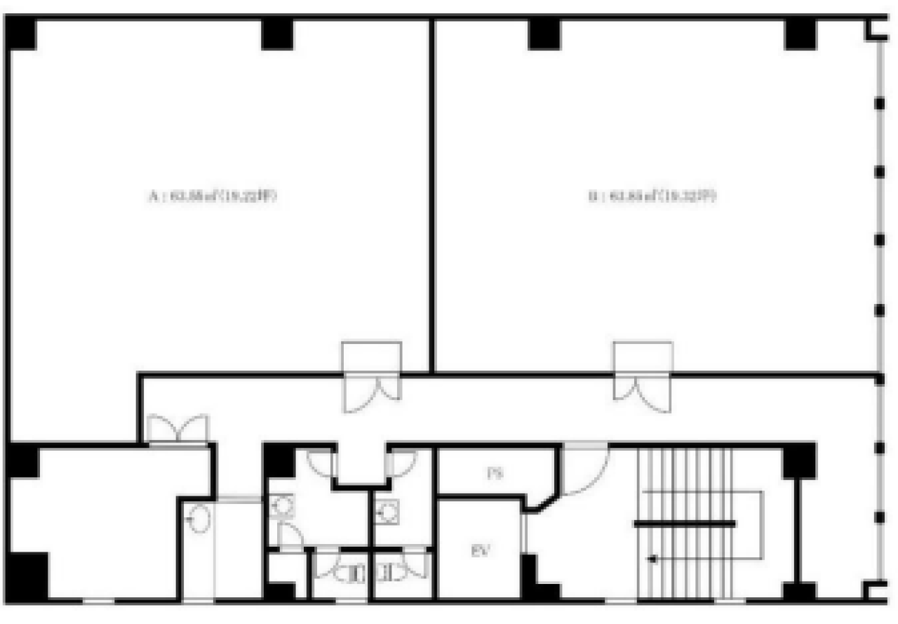
19.22 坪

63.54 ㎡

※現在空室情報はございません

※現在空室情報は
ございません

最新情報を
確認する
4F

(B区画)

19.32 坪

63.87 ㎡

※現在空室情報はございません

※現在空室情報は
ございません

最新情報を
確認する
6F

51.33 坪

169.67 ㎡

※現在空室情報はございません

※現在空室情報は
ございません

最新情報を
確認する
7F

51.33 坪

169.67 ㎡

※現在空室情報はございません

※現在空室情報は
ございません

最新情報を
確認する
9F

(A区画)

24.14 坪

79.8 ㎡

※現在空室情報はございません

※現在空室情報は
ございません

最新情報を
確認する
9F

(B区画)

25.88 坪

85.56 ㎡

※現在空室情報はございません

※現在空室情報は
ございません

最新情報を
確認する

お問い合わせ

必須
必須
必須
必須
必須

お問い合わせ

物件に関してのお問い合わせ

「失敗しないオフィス移転サポート」物件探しから移転までスムーズで担当者様がとにかく楽になるサービスです。

050-7587-0049平日 9:00~18:00

メールでお問い合わせ

フリーワード検索