Jビル(物件No:33702399)
Jビルは、渋谷区代々木にある地下2階、地上6階建ての賃貸事務所です。最寄駅は小田急小田原線の代々木八幡駅から徒歩4分、東京メトロ千代田線の代々木公園駅から徒歩2分です。1990年7月竣工の鉄筋コンクリート造です。設備としては、エレベーターが1基あります。トイレは室内男女共用です。空調は個別空調です。天高は3300mmです。耐震設計となっている、最寄駅から近くて便利な渋谷区代々木の賃貸オフィスです。
-
物件情報
-
設備情報
- トイレ
- 室内男女共用
- 床
- -
- 空調
- 個別空調
- セキュリティ
- -
- 駐車場
- 無
- 会議室
- -
- エレベーター
- 1基
- 天井高
- 3300mm
-
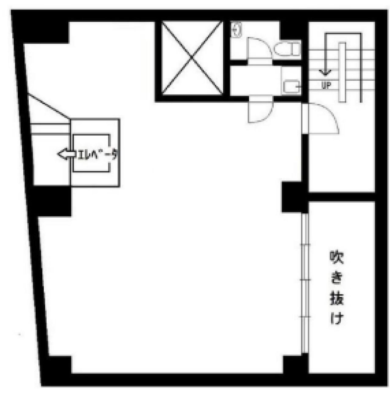
間取り図
-
近隣相場情報
代々木5丁目(20~30坪)の相場
調査中
周辺施設情報
| コンビニ |
まいばすけっと/代々木八幡駅西店/450m(徒歩5分) セブンイレブン/上原/550m(徒歩7分) |
|---|---|
| 郵便局/銀行 |
三井住友銀行/ATM 代々木八幡出張所/[営業時間] [ATM]平日 8:00~21:00 土曜 8:00~21:00 日曜 9:00~21:00/250m(徒歩3分) 三菱UFJ銀行/ATM 代々木公園駅前/[営業時間] [ATM]平日 7:00~24:00 土曜日 7:00~24:00 日・祝日 7:00~24:00 *毎月第2土曜日の21:00~翌朝7:00はご利用いただけません/250m(徒歩3分) |
| 飲食店 |
PARKER/52m(徒歩1分) 予感/Hunch/15時00分~23時00分/300m(徒歩4分) |
| カフェ |
cafe nine/12時00分~19時00分/200m(徒歩2分) ドトール/代々木八幡店/[営業時間]平日 7:20~21:30 土曜 7:20~21:30 日祝 8:00~21:30 [備考]総席数:69(禁煙席:69 喫煙席:0)/喫煙ブース(紙・加熱)/300m(徒歩4分) |
| コインパーキング |
NPC24H/代々木5丁目 [料金] 全日 0:00~24:00 200円/15分 [最大料金] 全日 入庫後最大(繰返有)24時間/2600円 全日 区間最大 19:00~8:00/500円 [台数]3台 三井のリパーク/代々木八幡駅前 [料金] 全日 08:00~00:00 10分/300円 全日 00:00~08:00 60分/100円 [最大料金] 【全日】最大料金入庫後3時間以内2500円 [台数]3 |
周辺地図
Jビルは、渋谷区代々木にある地下2階、地上6階建ての賃貸事務所です。最寄駅は小田急小田原線の代々木八幡駅から徒歩4分、東京メトロ千代田線の代々木公園駅から徒歩2分です。1990年7月竣工の鉄筋コンクリート造です。設備としては、エレベーターが1基あります。トイレは室内男女共用です。空調は個別空調です。天高は3300mmです。耐震設計となっている、最寄駅から近くて便利な渋谷区代々木の賃貸オフィスです。
全フロア情報
更新日:2025年11月6日
| 階 | 面積 | 賃料 | 共益費 | 敷金 | 入居日 | お問合せ | お気に入り | |
|---|---|---|---|---|---|---|---|---|
| B2F |
25.45 坪 84.14 ㎡ |
※現在空室情報はございません |
※現在空室情報は 確認する |
|||||
| B1F |
25.45 坪 84.13 ㎡ |
※現在空室情報はございません |
※現在空室情報は 確認する |
|||||
お問い合わせ
似た条件の物件はこちら
-
VORT代々木
東京都渋谷区千駄ヶ谷5-15-6
坪数:23.67 坪
坪単価:21,000 円(坪)
-
羽田ビル
東京都渋谷区代々木2-5-1
坪数:23.56 坪
坪単価:22,037 円(坪)
-
さくらビル
東京都渋谷区代々木1-31-15
坪数:15 坪
坪単価:15,000 円(坪)
-
メゾン・ドゥ・ボナール
東京都渋谷区千駄ヶ谷4-22-4
坪数:28.89 坪
坪単価:12,461 円(坪)
-
ダヴィンチ千駄ヶ谷
東京都渋谷区千駄ヶ谷1-30-8
坪数:29.87 坪
坪単価:22,000 円(坪)
-
ミユキビル
東京都渋谷区代々木1-36-1
坪数:19.82 坪
坪単価:18,000 円(坪)
-
三浦ビル
東京都渋谷区千駄ヶ谷1-28-4
坪数:15.56 坪
坪単価:13,496 円(坪)
-
ベルテ代々木Ⅱ
東京都渋谷区代々木2-21-11
坪数:17.38 坪
坪単価:20,138 円(坪)
-
エタニティーマンション和田第3
東京都渋谷区代々木1-4-9
坪数:17.02 坪
坪単価:15,276 円(坪)
-
代々木エアハイツビル
東京都渋谷区千駄ヶ谷5-16-10
坪数:17.98 坪
坪単価:13,901 円(坪)