中野ビル(物件No:33015935)
中野ビルは、港区六本木にある地下1階、地上5階建ての貸店舗事務所です。最寄駅は東京メトロ日比谷線の六本木駅から徒歩2分、都営大江戸線の麻布十番駅から徒歩8分です。1987年竣工の鉄筋コンクリート造です。設備としては、エレベーターが1基あります。セキュリティは機械警備です。トイレは室内男女共用です。耐震設計となっている、最寄駅から近くて便利な港区六本木の貸店舗事務所です。
-
物件情報
-
設備情報
- トイレ
- 室内男女共用
- 床
- -
- 空調
- -
- セキュリティ
- 有
- 駐車場
- -
- 会議室
- -
- エレベーター
- 1基
- 天井高
- -
-
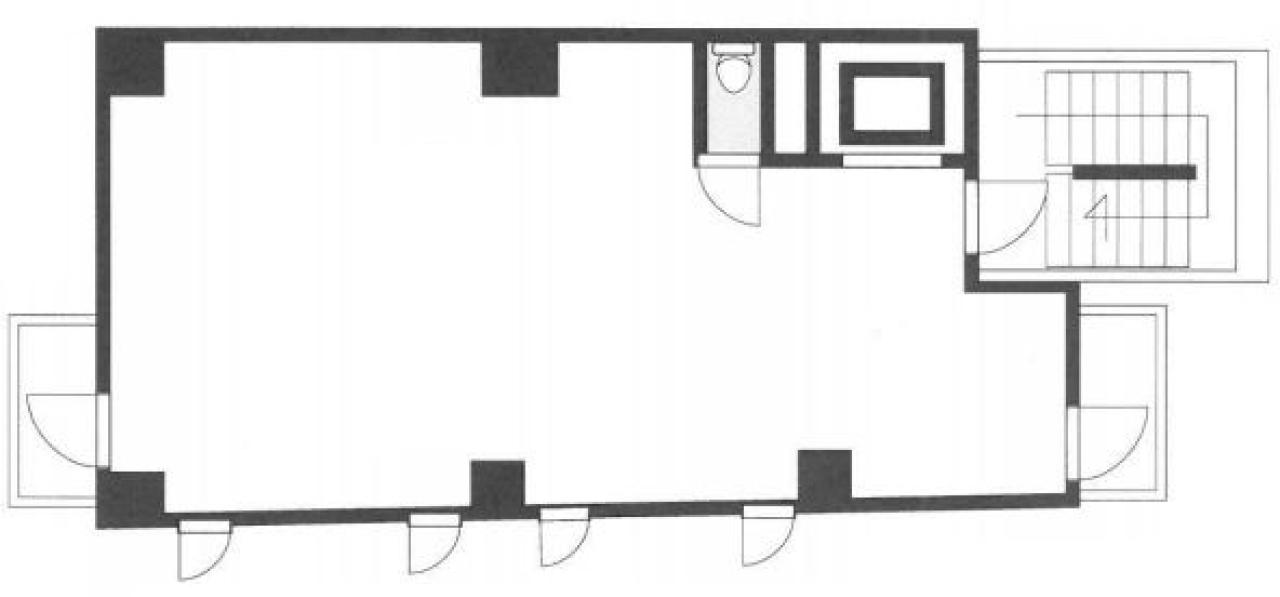
間取り図
-
近隣相場情報
六本木5丁目(20~30坪)の相場
24425 円 (坪)
※ビルサク調べ
周辺施設情報
| コンビニ |
セブンイレブン/六本木5丁目/100m(徒歩1分) ファミリーマート/六本木六丁目店/130m(徒歩2分) |
|---|---|
| 郵便局/銀行 |
みずほ銀行/ATM ラピロス六本木出張所/[営業時間]ATM 平日 /Monday - Friday 7:00~24:00 土曜日/Saturday 8:00~21:00 日曜日/Sunday 8:00~21:00 祝日・振替休日 /Public Holidays 8:00~21:00 備考 通帳繰越機 設置なし/200m(徒歩3分) イーネット/ファミリーマート地下鉄六本木駅2号機/[営業時間]0:00-24:00/140m(徒歩2分) |
| 飲食店 |
焼肉トラジ 六本木五丁目店/17時00分~5時00分/ あぶらや/18時00分~2時00分/45m(徒歩1分) |
| カフェ |
アマンド 六本木店/10時00分~23時00分/160m(徒歩2分) ハードロックカフェ/東京/[営業時間]【レストラン】11:30~02:00(01:00LO)、金・土 11:30~04:00(03:00LO) 【ロックショップ】11:00~23:00、金・土 11:00~04:00 [駐車場]近隣にあり [備考]153席/150m(徒歩2分) |
| コインパーキング |
タイムズ駐車場/六本木梅ノ木 [料金] [全日]00:00-00:00 12分 300円 [最大料金] [全日]駐車後24時間 最大料金3600円 [全日]17:00-07:00 最大料金2500円 [台数]40 ユアー・パーキング/青葉六本木ビルディング [料金] 【全日】 8時30分~23時 30分/400円 [最大料金] (8時30分~23時の間)3,000円 夜間最大(一泊)800円 [台数]4台 |
周辺地図
中野ビルは、港区六本木にある地下1階、地上5階建ての貸店舗事務所です。最寄駅は東京メトロ日比谷線の六本木駅から徒歩2分、都営大江戸線の麻布十番駅から徒歩8分です。1987年竣工の鉄筋コンクリート造です。設備としては、エレベーターが1基あります。セキュリティは機械警備です。トイレは室内男女共用です。耐震設計となっている、最寄駅から近くて便利な港区六本木の貸店舗事務所です。
全フロア情報
更新日:2026年1月30日
| 階 | 面積 | 賃料 | 共益費 | 敷金 | 入居日 | お問合せ | お気に入り | |
|---|---|---|---|---|---|---|---|---|
| 2F |
24.93 坪 82.41 ㎡ |
※現在空室情報はございません |
※現在空室情報は 確認する |
|||||
| 3F |
24.93 坪 82.41 ㎡ |
※現在空室情報はございません |
※現在空室情報は 確認する |
|||||
お問い合わせ
似た条件の物件はこちら
-
センチュリオン六本木タワーⅡ
東京都港区西麻布3-6-1
坪数:21.76 坪
坪単価:20,000 円(坪)
-
六本木メイフラワーハイツ
東京都港区六本木4-1-2
坪数:25 坪
坪単価:30,000 円(坪)
-
レ・フルール西麻布
東京都港区西麻布1-4-35
坪数:28.3 坪
坪単価:15,194 円(坪)
-
飯倉カムフィーホームズ
東京都港区麻布台3-4-4
坪数:19.03 坪
坪単価:11,000 円(坪)
-
ランドコム麻布台
東京都港区麻布台1-9-14
坪数:23.49 坪
坪単価:13,000 円(坪)
-
久保ビル
東京都港区南麻布3-16-6
坪数:25.36 坪
坪単価:15,379 円(坪)
-
Kukai Terrace元麻布
東京都港区元麻布3-5-27
坪数:20.61 坪
坪単価:22,804 円(坪)
-
丸井ビル
東京都港区麻布十番2-5-13
坪数:22 坪
坪単価:15,000 円(坪)
-
協電ビル
東京都港区東麻布2-29-8
坪数:20.8 坪
坪単価:12,500 円(坪)
-
杉下ビル
東京都港区西麻布1-8-6
坪数:28.73 坪
坪単価:24,365 円(坪)