吉川ビル(物件No:32827632)
吉川ビルは、台東区北上野にある貸事務所物件です。最寄り駅は、JR線の上野駅、鶯谷駅、東京メトロ日比谷線の入谷駅、東京メトロ銀座線の稲荷町駅です。1982年竣工の賃貸オフィスビルです。空調は個別空調です。複数路線利用可能な、アクセスの良い台東区北上野の貸事務所です。
-
物件情報
-
設備情報
- トイレ
- 室内男女共用
- 床
- フリーアクセス
- 空調
- 個別空調
- セキュリティ
- -
- 駐車場
- -
- 会議室
- -
- エレベーター
- 1基
- 天井高
- -
-
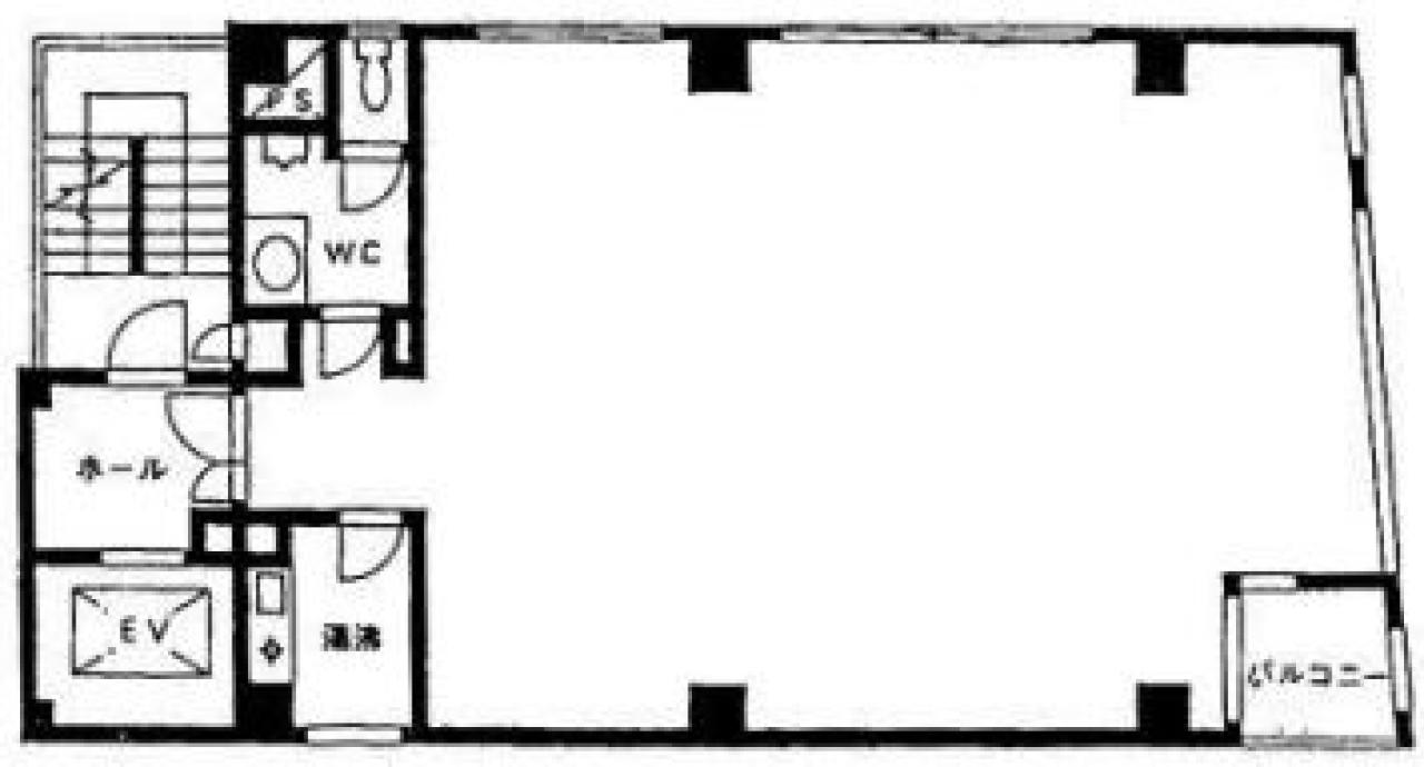
間取り図
-
近隣相場情報
北上野1丁目(20~30坪)の相場
11905 円 (坪)
※ビルサク調べ
周辺地図
吉川ビルは、台東区北上野にある貸事務所物件です。最寄り駅は、JR線の上野駅、鶯谷駅、東京メトロ日比谷線の入谷駅、東京メトロ銀座線の稲荷町駅です。1982年竣工の賃貸オフィスビルです。空調は個別空調です。複数路線利用可能な、アクセスの良い台東区北上野の貸事務所です。
全フロア情報
更新日:2025年12月12日
| 階 | 面積 | 賃料 | 共益費 | 敷金 | 入居日 | お問合せ | お気に入り | |
|---|---|---|---|---|---|---|---|---|
| 2F |
14.82 坪 48.99 ㎡ |
※現在空室情報はございません |
※現在空室情報は 確認する |
|||||
| 3F |
23.33 坪 77.13 ㎡ |
※現在空室情報はございません |
※現在空室情報は 確認する |
|||||
| 6F |
23.33 坪 77.13 ㎡ |
※現在空室情報はございません |
※現在空室情報は 確認する |
|||||
| 7F |
23.33 坪 77.13 ㎡ |
※現在空室情報はございません |
※現在空室情報は 確認する |
|||||
| 8F |
23.33 坪 77.13 ㎡ |
※現在空室情報はございません |
※現在空室情報は 確認する |
|||||
お問い合わせ
似た条件の物件はこちら
-
ライオンズマンション上野山下
東京都台東区上野2-14-30
坪数:25.35 坪
坪単価:15,779 円(坪)
-
東宝第三ビル
東京都台東区東上野2-19-9
坪数:23.93 坪
坪単価:11,430 円(坪)
-
サイコービル
東京都台東区上野5-17-5
坪数:18.72 坪
坪単価:14,690 円(坪)
-
木村屋ビル
東京都台東区台東2-19-10
坪数:21.86 坪
坪単価:7,333 円(坪)
-
メグミビル
東京都台東区上野3-6-4
坪数:21.98 坪
坪単価:12,000 円(坪)
-
宮島ビル
東京都台東区東上野3-15-3
坪数:22.22 坪
坪単価:10,351 円(坪)
-
りとるふぉ~れすとビル
東京都台東区北上野2-10-1
坪数:18.3 坪
坪単価:10,000 円(坪)
-
外園ビル
東京都台東区東上野1-17-1
坪数:22.48 坪
坪単価:9,508 円(坪)
-
さたけ第二ビル
東京都台東区台東4-29-10
坪数:22 坪
坪単価:12,000 円(坪)
-
パークサイドビル
東京都台東区上野2-13-2
坪数:18.52 坪
坪単価:26,998 円(坪)