FTビル(物件No:32370610)
FTビルは、新宿区四谷にある地上4階建ての貸店舗事務所です。最寄駅はJR中央・総武線の四ツ谷駅から徒歩4分、東京メトロ丸ノ内線の四ツ谷駅から徒歩4分です。1990年2月竣工の鉄筋コンクリート造です。ビジネス街として人気のある新宿区四谷の貸店舗事務所です。
| 階 | 面積 | 賃料 | 共益費 | 敷金 | 入居日 | お問合せ | お気に入り | |
|---|---|---|---|---|---|---|---|---|
|
1F
(101区画) |
22.29 坪 73.69 ㎡ |
※現在空室情報はございません |
※現在空室情報は 確認する |
|||||
| 階 | 面積 | 賃料 | 共益費 | 敷金 | 入居日 | お問合せ | お気に入り | |
|---|---|---|---|---|---|---|---|---|
|
1F
(101区画) |
22.29 坪 73.69 ㎡ |
※現在空室情報はございません |
※現在空室情報は 確認する |
|||||
-
物件情報
-
設備情報
- トイレ
- 室内男女共用
- 床
- -
- 空調
- -
- セキュリティ
- -
- 駐車場
- -
- 会議室
- -
- エレベーター
- -
- 天井高
- -
-
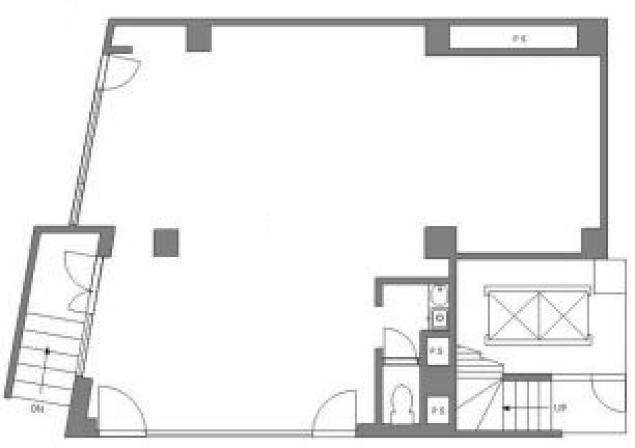
間取り図
-
近隣相場情報
四谷1丁目(20~30坪)の相場
15691 円 (坪)
※ビルサク調べ
周辺施設情報
| コンビニ |
ファミリーマート/四谷二丁目店/75m(徒歩1分) ローソン/四谷一丁目/200m(徒歩3分) |
|---|---|
| 郵便局/銀行 |
イーネット/ファミリーマート四谷二丁目/[営業時間]0:00-24:00/31m(徒歩1分) セブン銀行/四谷1丁目店/[営業時間]24時間営業 [ATM台数]1/290m(徒歩4分) |
| 飲食店 |
和楽/ディナー ~5000円/15m(徒歩1分) 和食居酒屋 希の華/17時00分~23時00分/22m(徒歩1分) |
| カフェ |
ドトール/四谷1丁目南店/[営業時間]平 日:07:00 - 21:30 土曜日:07:30 - 21:00 日 祝:08:00 - 21:00 [休業日]なし [備考]総席数:44 禁煙席:29 喫煙席:15/93m(徒歩1分) サンマルクカフェ/四ツ谷駅前店/[営業時間]月~金7:00~21:30、土7:00~21:00、日7:00~21:00 [休業日]年中無休 [備考]107席/220m(徒歩3分) |
| コインパーキング |
コインパーク/四谷1丁目第2 [料金] 【月~土】 ■通常料金 【オールタイム(24時間)】20分300円 【日祝】 ■通常料金 【オールタイム(24時間)】20分300円 [最大料金] 【月~土】 ■最大料金 【8:00~22:00】3000円 【22:00~8:00】300円 【日祝】 ■最大料金 【8:00~22:00】1800円 【22:00~8:00】300円 [台数][車: 7台] SANパーク/新宿若葉 1 [料金] 8時~20時 20分200円 20時~8時 60分100円 [最大料金] 昼最大1700円 夜間最大300円 [台数]車:3台 バイク:2台 (内・月極)バイク:2台 |
周辺地図
FTビルは、新宿区四谷にある地上4階建ての貸店舗事務所です。最寄駅はJR中央・総武線の四ツ谷駅から徒歩4分、東京メトロ丸ノ内線の四ツ谷駅から徒歩4分です。1990年2月竣工の鉄筋コンクリート造です。ビジネス街として人気のある新宿区四谷の貸店舗事務所です。
全フロア情報
更新日:2026年2月16日
| 階 | 面積 | 賃料 | 共益費 | 敷金 | 入居日 | お問合せ | お気に入り | |
|---|---|---|---|---|---|---|---|---|
|
1F
(101区画) |
22.29 坪 73.69 ㎡ |
※現在空室情報はございません |
※現在空室情報は 確認する |
|||||
| 3F |
23.11 坪 76.40 ㎡ |
※現在空室情報はございません |
※現在空室情報は 確認する |
|||||
|
3F
(301区画) |
23.11 坪 76.4 ㎡ |
280,000 円 12,116 円(坪) |
20,000 円 865 円(坪) |
1,120,000 円 4 ヶ月 |
2026/05 |
|
|
|
お問い合わせ
似た条件の物件はこちら
-
第一上野ビル
東京都新宿区四谷1-19
坪数:20.48 坪
坪単価:15,625 円(坪)
-
マンションリキュー
東京都新宿区若葉1-21
坪数:18.18 坪
坪単価:9,626 円(坪)
-
斉藤ビルディング
東京都新宿区四谷3-1-4
坪数:17.6 坪
坪単価:15,997 円(坪)
-
白川ビル
東京都新宿区四谷4-7-5
坪数:26.08 坪
坪単価:14,571 円(坪)
-
新盛ビル
東京都新宿区四谷1-9-3
坪数:20.6 坪
坪単価:40,000 円(坪)
-
無三四堂ビル
東京都新宿区四谷3-7
坪数:21.74 坪
坪単価:15,000 円(坪)
-
須賀ビル
東京都新宿区四谷3-1
坪数:24 坪
坪単価:15,000 円(坪)
-
信濃町第一ビル
東京都新宿区南元町8-10
坪数:19.32 坪
坪単価:9,783 円(坪)
-
堀木ビル
東京都新宿区四谷三栄町9-4
坪数:20.84 坪
坪単価:9,597 円(坪)
-
四谷ハウス
東京都新宿区左門町1-2
坪数:25.84 坪
坪単価:12,345 円(坪)