いろいろ聞いてみる

新横浜の賃貸オフィス

光正第2ビル(物件No:32290907)

光正第2ビルは、神奈川県横浜市港北区新横浜にある地下1階、地上8階建ての貸店舗/賃貸事務所です。最寄駅は横浜市ブルーラインの新横浜駅から徒歩13分、JR横浜線の新横浜駅から徒歩13分です。1991年9月竣工の鉄骨鉄筋コンクリート造です。設備としては、エレベーターが2基あります。セキュリティは機械警備です。トイレは室外男女別です。空調は個別空調です。床仕様はタイルカーペットです。天高は2630mmです。耐震設計となっている、コンビニや飲食店などの周辺施設が充実した神奈川県横浜市港北区新横浜の貸店舗/賃貸オフィスです。

  • 光正第2ビル
  • 光正第2ビル
  • 光正第2ビル
  • 光正第2ビル
面積 賃料 共益費 敷金 入居日 お問合せ お気に入り
4F

(404区画)

39.07 坪

129.16 ㎡

※現在空室情報はございません

※現在空室情報は
ございません

最新情報を
確認する
  • 物件情報

    住所
    神奈川県横浜市港北区新横浜1-14-20
    最寄り駅
    横浜市ブルーライン 新横浜駅 徒歩13分
    JR横浜線 新横浜駅 徒歩13分
    竣工
    1991年
    耐震
    新耐震基準
    規模・構造
    B1F - 8F  鉄骨鉄筋コンクリート造
  • 設備情報

    トイレ
    男女別
    タイルカーペット
    空調
    個別空調
    セキュリティ
    駐車場
    -
    会議室
    -
    エレベーター
    2基
    天井高
    2450mm
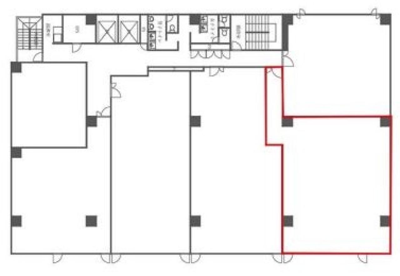
  • 間取り図

    間取り図

  • 近隣相場情報

    新横浜1丁目(30~40坪)の相場

    調査中

周辺地図

光正第2ビルは、神奈川県横浜市港北区新横浜にある地下1階、地上8階建ての貸店舗/賃貸事務所です。最寄駅は横浜市ブルーラインの新横浜駅から徒歩13分、JR横浜線の新横浜駅から徒歩13分です。1991年9月竣工の鉄骨鉄筋コンクリート造です。設備としては、エレベーターが2基あります。セキュリティは機械警備です。トイレは室外男女別です。空調は個別空調です。床仕様はタイルカーペットです。天高は2630mmです。耐震設計となっている、コンビニや飲食店などの周辺施設が充実した神奈川県横浜市港北区新横浜の貸店舗/賃貸オフィスです。

全フロア情報

更新日:2024年10月9日

面積 賃料 共益費 敷金 入居日 お問合せ お気に入り
1F

(101区画)

57.49 坪

190.05 ㎡

※現在空室情報はございません

※現在空室情報は
ございません

最新情報を
確認する
2F

(201区画)

27.5 坪

90.91 ㎡

※現在空室情報はございません

※現在空室情報は
ございません

最新情報を
確認する
2F

(204区画)

62.61 坪

206.97 ㎡

※現在空室情報はございません

※現在空室情報は
ございません

最新情報を
確認する
3F

(301区画)

27.5 坪

90.91 ㎡

※現在空室情報はございません

※現在空室情報は
ございません

最新情報を
確認する
4F

(402区画)

34.86 坪

115.24 ㎡

※現在空室情報はございません

※現在空室情報は
ございません

最新情報を
確認する
4F

(404区画)

39.07 坪

129.16 ㎡

※現在空室情報はございません

※現在空室情報は
ございません

最新情報を
確認する
4F

(405区画)

26.71 坪

88.3 ㎡

※現在空室情報はございません

※現在空室情報は
ございません

最新情報を
確認する
5F

(504区画)

39.07 坪

129.16 ㎡

※現在空室情報はございません

※現在空室情報は
ございません

最新情報を
確認する
6F

(601区画)

67.78 坪

224.07 ㎡

※現在空室情報はございません

※現在空室情報は
ございません

最新情報を
確認する
6F

(602区画)

104.53 坪

345.55 ㎡

※現在空室情報はございません

※現在空室情報は
ございません

最新情報を
確認する
6F

(603区画)

63.61 坪

210.29 ㎡

※現在空室情報はございません

※現在空室情報は
ございません

最新情報を
確認する
7F

(701区画)

27.5 坪

90.91 ㎡

※現在空室情報はございません

※現在空室情報は
ございません

最新情報を
確認する
7F

(703区画)

38.75 坪

128.1 ㎡

※現在空室情報はございません

※現在空室情報は
ございません

最新情報を
確認する
7F

(704区画)

39.08 坪

129.19 ㎡

※現在空室情報はございません

※現在空室情報は
ございません

最新情報を
確認する
8F

(802区画)

35.64 坪

117.82 ㎡

※現在空室情報はございません

※現在空室情報は
ございません

最新情報を
確認する

お問い合わせ

必須
必須
必須
必須
必須

お問い合わせ

物件に関してのお問い合わせ

「失敗しないオフィス移転サポート」物件探しから移転までスムーズで担当者様がとにかく楽になるサービスです。

050-7587-0049平日 9:00~18:00

メールでお問い合わせ

フリーワード検索