カーム神宮前(物件No:32280427)
カーム神宮前は、渋谷区神宮前にある地上2階建ての賃貸事務所です。最寄駅は東京メトロ千代田線の表参道駅から徒歩7分、東京メトロ銀座線の表参道駅から徒歩7分です。1989年11月竣工の鉄筋コンクリート造です。設備としては、トイレは室内男女共用です。耐震設計となっている、コンビニや飲食店などの周辺施設が充実した渋谷区神宮前の賃貸オフィスです。
-
物件情報
-
設備情報
- トイレ
- 室内男女共用
- 床
- -
- 空調
- -
- セキュリティ
- -
- 駐車場
- 有
- 会議室
- -
- エレベーター
- -
- 天井高
- -
-
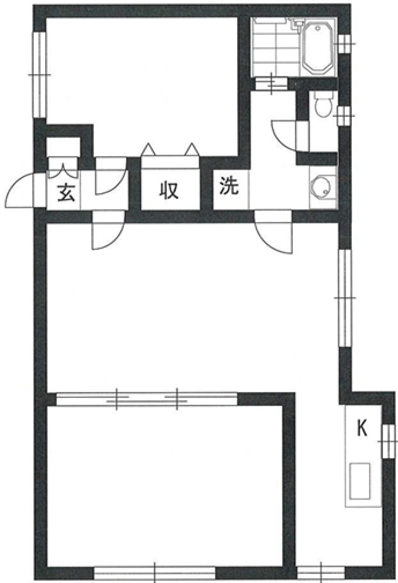
間取り図
-
近隣相場情報
神宮前3丁目(20坪以下)の相場
19917 円 (坪)
※ビルサク調べ
周辺地図
カーム神宮前は、渋谷区神宮前にある地上2階建ての賃貸事務所です。最寄駅は東京メトロ千代田線の表参道駅から徒歩7分、東京メトロ銀座線の表参道駅から徒歩7分です。1989年11月竣工の鉄筋コンクリート造です。設備としては、トイレは室内男女共用です。耐震設計となっている、コンビニや飲食店などの周辺施設が充実した渋谷区神宮前の賃貸オフィスです。
全フロア情報
更新日:2024年10月9日
| 階 | 面積 | 賃料 | 共益費 | 敷金 | 入居日 | お問合せ | お気に入り | |
|---|---|---|---|---|---|---|---|---|
|
2F
(1区画) |
15.53 坪 51.34 ㎡ |
※現在空室情報はございません |
※現在空室情報は 確認する |
|||||
|
2F
(202区画) |
13.48 坪 44.55 ㎡ |
※現在空室情報はございません |
※現在空室情報は 確認する |
|||||
|
2F
(207区画) |
15.53 坪 51.34 ㎡ |
※現在空室情報はございません |
※現在空室情報は 確認する |
|||||
お問い合わせ
似た条件の物件はこちら
-
渋谷3丁目ビル
東京都渋谷区渋谷3-18-4
坪数:17.43 坪
坪単価:26,000 円(坪)
-
三貴ビル
東京都渋谷区渋谷2-12-12
坪数:15.7 坪
坪単価:22,000 円(坪)
-
フォーラム神宮前
東京都渋谷区神宮前4-6-2
坪数:13.16 坪
坪単価:22,796 円(坪)
-
アクシーズ7号館ビル
東京都渋谷区渋谷3-17-4
坪数:18 坪
坪単価:20,000 円(坪)
-
第3矢木ビル
東京都渋谷区渋谷3-7-2
坪数:18 坪
坪単価:30,000 円(坪)
-
越一ビル
東京都渋谷区神宮前6-19-16
坪数:19 坪
坪単価:22,000 円(坪)
-
若葉ビル
東京都渋谷区道玄坂1-22-10
坪数:16.1 坪
坪単価:15,300 円(坪)
-
日興パレス外苑
東京都渋谷区神宮前2-13-7
坪数:16.57 坪
坪単価:12,311 円(坪)
-
宮益坂ビルディング
東京都渋谷区渋谷2-19-15
坪数:18.11 坪
坪単価:31,309 円(坪)
-
NOVEL WORK Shibuya
東京都渋谷区渋谷2-8-2
坪数:18.86 坪
坪単価:42,000 円(坪)