中井ビル東館(物件No:31985139)
中井ビル東館は、台東区上野にある貸事務所物件です。最寄り駅は東京メトロ銀座線の上野広小路駅、末広町駅、東京メトロ日比谷線の仲御徒町駅、都営大江戸線の上野御徒町駅、JR線の御徒町駅、上野駅です。1989年竣工の賃貸オフィスビルです。空調は個別空調でトイレは室内にあります。エレベーターは1基あります。複数路線利用可能な、アクセスの良い台東区上野の貸事務所です。
-
物件情報
-
設備情報
- トイレ
- 室内
- 床
- -
- 空調
- 個別空調
- セキュリティ
- -
- 駐車場
- -
- 会議室
- -
- エレベーター
- 1基
- 天井高
- -
-
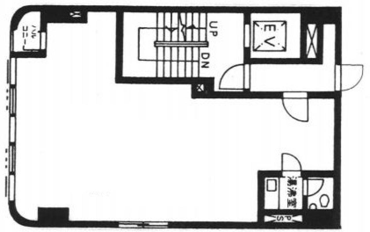
間取り図
-
近隣相場情報
上野5丁目(20坪以下)の相場
20782 円 (坪)
※ビルサク調べ
周辺地図
中井ビル東館は、台東区上野にある貸事務所物件です。最寄り駅は東京メトロ銀座線の上野広小路駅、末広町駅、東京メトロ日比谷線の仲御徒町駅、都営大江戸線の上野御徒町駅、JR線の御徒町駅、上野駅です。1989年竣工の賃貸オフィスビルです。空調は個別空調でトイレは室内にあります。エレベーターは1基あります。複数路線利用可能な、アクセスの良い台東区上野の貸事務所です。
全フロア情報
更新日:2025年10月29日
| 階 | 面積 | 賃料 | 共益費 | 敷金 | 入居日 | お問合せ | お気に入り | |
|---|---|---|---|---|---|---|---|---|
| 1F |
15 坪 49.59 ㎡ |
※現在空室情報はございません |
※現在空室情報は 確認する |
|||||
| 3F |
18.3 坪 60.5 ㎡ |
※現在空室情報はございません |
※現在空室情報は 確認する |
|||||
| 4F |
18.3 坪 60.5 ㎡ |
※現在空室情報はございません |
※現在空室情報は 確認する |
|||||
| 6F |
18.3 坪 60.5 ㎡ |
※現在空室情報はございません |
※現在空室情報は 確認する |
|||||
| 7F |
18.3 坪 60.5 ㎡ |
※現在空室情報はございません |
※現在空室情報は 確認する |
|||||
お問い合わせ
似た条件の物件はこちら
-
タウンハイツ上野
東京都台東区上野3-4-6
坪数:15.03 坪
坪単価:17,964 円(坪)
-
松本マンション
東京都台東区台東4-27-5
坪数:15 坪
坪単価:10,000 円(坪)
-
冨田ビル
東京都台東区東上野1-7-2
坪数:15.05 坪
坪単価:14,618 円(坪)
-
FUJIYAビル
東京都台東区東上野3-14-9
坪数:17.2 坪
坪単価:11,000 円(坪)
-
明和センチュリー21
東京都台東区台東4-29-13
坪数:16 坪
坪単価:12,500 円(坪)
-
サイコービル
東京都台東区上野5-17-5
坪数:18.72 坪
坪単価:14,690 円(坪)
-
木村屋ビル
東京都台東区台東2-19-10
坪数:21.86 坪
坪単価:7,333 円(坪)
-
上野TKSビル
東京都台東区上野2-11-12
坪数:16.43 坪
坪単価:16,489 円(坪)
-
メグミビル
東京都台東区上野3-6-4
坪数:21.98 坪
坪単価:12,000 円(坪)
-
御徒町グリーンプラザ
東京都台東区台東4-6-5
坪数:15.01 坪
坪単価:11,341 円(坪)