小泉ビル(物件No:31982183)
小泉ビル は、中央区日本橋本石町 にある地上5階建ての賃貸事務所です。最寄駅は東京メトロ銀座線 の三越前 駅から徒歩5分、JR線 の神田 駅から徒歩3分、JR総武線快速 の新日本橋 駅から徒歩2分です。1970年竣工の鉄筋コンクリート造 です。設備としては、トイレは室外男女別です。複数駅利用可能なアクセスの良い中央区日本橋本石町 の賃貸オフィスです。
| 階 | 面積 | 賃料 | 共益費 | 敷金 | 入居日 | お問合せ | お気に入り |
|---|---|---|---|---|---|---|---|
|
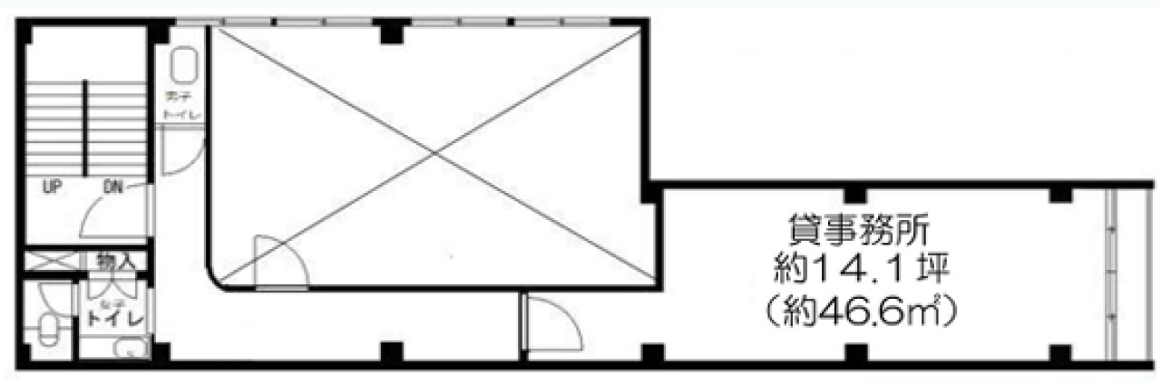
2F
(A区画) |
14.1 坪 46.61 ㎡ |
197,400 円 14,000 円(坪) |
無 |
1,579,200 円 8 ヶ月 |
2026/04 |
|
|
| 階 | 面積 | 賃料 | 共益費 | 敷金 | 入居日 | お問合せ | お気に入り |
|---|---|---|---|---|---|---|---|
|
2F
(A区画) |
14.1 坪 46.61 ㎡ |
197,400 円 14,000 円(坪) |
無 |
1,579,200 円 8 ヶ月 |
2026/04 |
|
|
-
物件情報
-
設備情報
- トイレ
- 室外男女別
- 床
- -
- 空調
- -
- セキュリティ
- -
- 駐車場
- -
- 会議室
- -
- エレベーター
- 0基
- 天井高
- -
-
間取り図
-
近隣相場情報
日本橋本石町4丁目(20坪以下)の相場
14030 円 (坪)
※ビルサク調べ
周辺施設情報
| コンビニ |
セブンイレブン/日本橋室町4丁目/220m(徒歩3分) NewDays/ミニ 新日本橋1号/350m(徒歩5分) |
|---|---|
| 郵便局/銀行 |
八十二銀行/東京営業部/[窓口]平日 9:00~15:00 土 - 日祝 -/59m(徒歩1分) 山口銀行/東京支店/[ATM]平日のみ 8:45~17:00/170m(徒歩2分) |
| 飲食店 |
一軒家イタリアン ジャパリア レグナ ~Japaria Legna~/16時00分~23時30分/8m(徒歩1分) 神田 日本酒 みなと屋/11時30分~14時00分 17時00分~22時00分/48m(徒歩1分) |
| カフェ |
ベローチェ/鍛冶町店/[営業時間]6:45~22:00 土・日・祝7:00~22:00/400m(徒歩6分) ドトール/日本橋本石町店/[営業時間]平日 6:30~21:00 土曜 8:00~20:00 日祝 8:00~19:00/150m(徒歩2分) |
| コインパーキング |
タイムズ駐車場/日本橋本石町第4 [料金] [全日]通常料金 / 0:00~0:00 15分 440円 [最大料金] [全日]駐車後5時間 最大料金2640円 [台数]1 タイムズ駐車場/日本橋本石町第3 [料金] [全日]通常料金 / 0:00~0:00 15分 440円 [最大料金] [全日]駐車後5時間 最大料金2750円 [台数]7 |
周辺地図
小泉ビル は、中央区日本橋本石町 にある地上5階建ての賃貸事務所です。最寄駅は東京メトロ銀座線 の三越前 駅から徒歩5分、JR線 の神田 駅から徒歩3分、JR総武線快速 の新日本橋 駅から徒歩2分です。1970年竣工の鉄筋コンクリート造 です。設備としては、トイレは室外男女別です。複数駅利用可能なアクセスの良い中央区日本橋本石町 の賃貸オフィスです。
全フロア情報
更新日:2026年3月18日
| 階 | 面積 | 賃料 | 共益費 | 敷金 | 入居日 | お問合せ | お気に入り | |
|---|---|---|---|---|---|---|---|---|
| 2F |
31 坪 102.48 ㎡ |
※現在空室情報はございません |
※現在空室情報は 確認する |
|||||
|
2F
(A区画) |
14.1 坪 46.61 ㎡ |
197,400 円 14,000 円(坪) |
無 |
1,579,200 円 8 ヶ月 |
2026/04 |
|
|
|
お問い合わせ
似た条件の物件はこちら
-
寺沢ビル
東京都中央区京橋2-12-9
坪数:15.96 坪
坪単価:20,000 円(坪)
-
日本橋滄浪閣ビル
東京都中央区日本橋本町1-8-13
坪数:13.17 坪
坪単価:22,000 円(坪)
-
八重洲境井ビル
東京都中央区八重洲1-4-6
坪数:15.48 坪
坪単価:26,000 円(坪)
-
土屋ビル
東京都中央区京橋1-14-5
坪数:12.1 坪
坪単価:16,000 円(坪)
-
川昌八重洲ビル
東京都中央区八重洲2-11-6
坪数:11.5 坪
坪単価:16,000 円(坪)
-
東和八重洲ビル
東京都中央区日本橋3-4-16
坪数:15.83 坪
坪単価:35,000 円(坪)
-
城辺橋ビル
東京都中央区八重洲2-11-2
坪数:12.76 坪
坪単価:13,000 円(坪)
-
For You東京駅前ビル
東京都中央区日本橋3-5-12
坪数:10.5 坪
坪単価:28,571 円(坪)
-
A・M京橋ビル
東京都中央区京橋2-5-2
坪数:13.23 坪
坪単価:25,000 円(坪)