いろは本郷ビル(物件No:31981197)
いろは本郷ビルは文京区本郷にある地下1階、地上7階建ての賃貸事務所です。最寄駅は都営大江戸線の本郷三丁目駅から徒歩2分、都営大江戸線の春日駅から徒歩8分、東京メトロ丸ノ内線の本郷三丁目駅から徒歩3分、都営三田線の春日駅から徒歩8分、都営三田線の水道橋駅から徒歩8分です。1986年9月竣工の基準階面積が71.55坪の鉄筋コンクリート造です。設備としては、エレベーターが1基あり、駐車場もあります。トイレは室内男女共用です。空調は個別空調です。床仕様はPタイルです。天高は2500mmです。耐震設計となっている、最寄駅から近くて便利な文京区本郷の賃貸オフィスです。
-
物件情報
-
設備情報
- トイレ
- 室内男女共用
- 床
- Pタイル
- 空調
- 個別空調
- セキュリティ
- -
- 駐車場
- 有
- 会議室
- -
- エレベーター
- 1基
- 天井高
- 2500mm
-
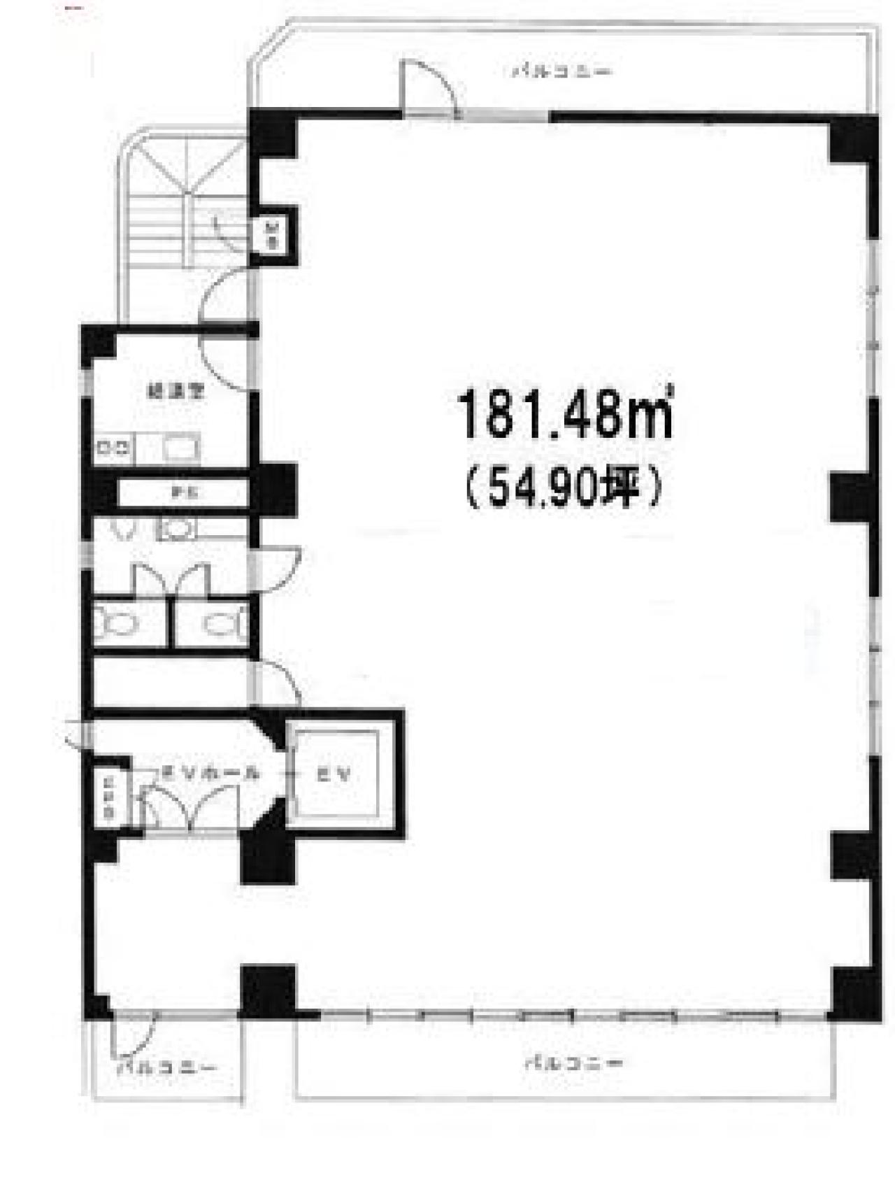
間取り図
-
近隣相場情報
本郷4丁目(50~100坪)の相場
21932 円 (坪)
※ビルサク調べ
周辺地図
いろは本郷ビルは文京区本郷にある地下1階、地上7階建ての賃貸事務所です。最寄駅は都営大江戸線の本郷三丁目駅から徒歩2分、都営大江戸線の春日駅から徒歩8分、東京メトロ丸ノ内線の本郷三丁目駅から徒歩3分、都営三田線の春日駅から徒歩8分、都営三田線の水道橋駅から徒歩8分です。1986年9月竣工の基準階面積が71.55坪の鉄筋コンクリート造です。設備としては、エレベーターが1基あり、駐車場もあります。トイレは室内男女共用です。空調は個別空調です。床仕様はPタイルです。天高は2500mmです。耐震設計となっている、最寄駅から近くて便利な文京区本郷の賃貸オフィスです。
全フロア情報
更新日:2026年3月9日
| 階 | 面積 | 賃料 | 共益費 | 敷金 | 入居日 | お問合せ | お気に入り | |
|---|---|---|---|---|---|---|---|---|
|
1F
(101区画) |
23.38 坪 77.29 ㎡ |
※現在空室情報はございません |
※現在空室情報は 確認する |
|||||
| 2F |
71.55 坪 236.53 ㎡ |
751,275 円 10,500 円(坪) |
214,650 円 3,000 円(坪) |
4,507,650 円 6 ヶ月 |
相談 |
|
|
|
| 3F |
71.55 坪 236.53 ㎡ |
※現在空室情報はございません |
※現在空室情報は 確認する |
|||||
| 6F |
54.9 坪 181.49 ㎡ |
※現在空室情報はございません |
※現在空室情報は 確認する |
|||||
お問い合わせ
似た条件の物件はこちら
-
後楽1丁目ビル
東京都文京区後楽1-2-8
坪数:39.32 坪
坪単価:22,000 円(坪)
-
御茶ノ水天神ビル
東京都文京区湯島3-2-12
坪数:49.41 坪
坪単価:12,500 円(坪)
-
南江堂ビル
東京都文京区本郷3-42-6
坪数:48.06 坪
坪単価:15,000 円(坪)
-
利根川第2ビル
東京都文京区湯島1-6-1
坪数:48.76 坪
坪単価:10,000 円(坪)
-
ITP本郷オフィス
東京都文京区湯島2-25-7
坪数:53.51 坪
坪単価:14,000 円(坪)
-
赤嶺ビル
東京都文京区水道1-8-8
坪数:39.83 坪
坪単価:12,553 円(坪)
-
美楽ガーデン
東京都文京区本郷5-25-18
坪数:40.9 坪
坪単価:13,000 円(坪)
-
本郷天理ビル
東京都文京区本郷3-16-4
坪数:53.03 坪
坪単価:10,500 円(坪)
-
タムラビル
東京都文京区本郷5-23-13
坪数:41.83 坪
坪単価:12,500 円(坪)
-
全水道会館
東京都文京区本郷1-4-1
坪数:65 坪
坪単価:14,091 円(坪)